EasyManua.ls Logo

Samsung MH040FXEA2A - Page 121

Samsung MH040FXEA2A
197 pages
Print Icon
To Next Page IconTo Next Page
To Next Page IconTo Next Page
To Previous Page IconTo Previous Page
To Previous Page IconTo Previous Page
Loading...
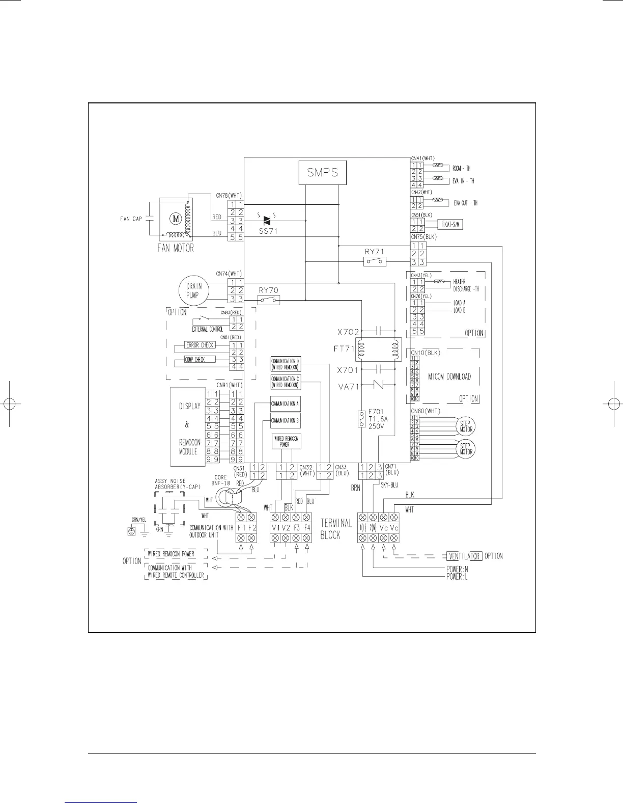
Wiring Diagram
Samsung Electronics6-5
MH✳✳✳FMEA
This Document can not be used without Samsung's authorization.

Other manuals for Samsung MH040FXEA2A

Related product manuals