EasyManua.ls Logo

Samsung UH052EAS - Wiring Diagram

Samsung UH052EAS
107 pages
Print Icon
To Next Page IconTo Next Page
To Next Page IconTo Next Page
To Previous Page IconTo Previous Page
To Previous Page IconTo Previous Page
Loading...

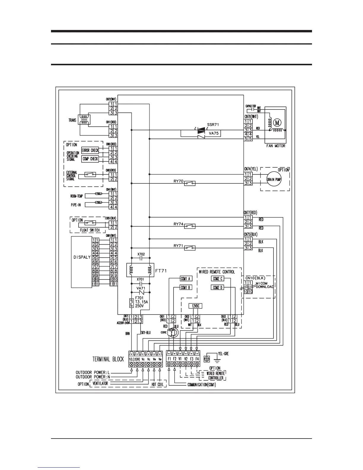
7. Wiring Diagram
7-1 Indoor Unit



Table of Contents

Related product manuals