EasyManua.ls Logo

Samsung US07A6MA - Indoor Assembly Control Diagrams

Samsung US07A6MA
47 pages
Print Icon
To Next Page IconTo Next Page
To Next Page IconTo Next Page
To Previous Page IconTo Previous Page
To Previous Page IconTo Previous Page
Loading...
28
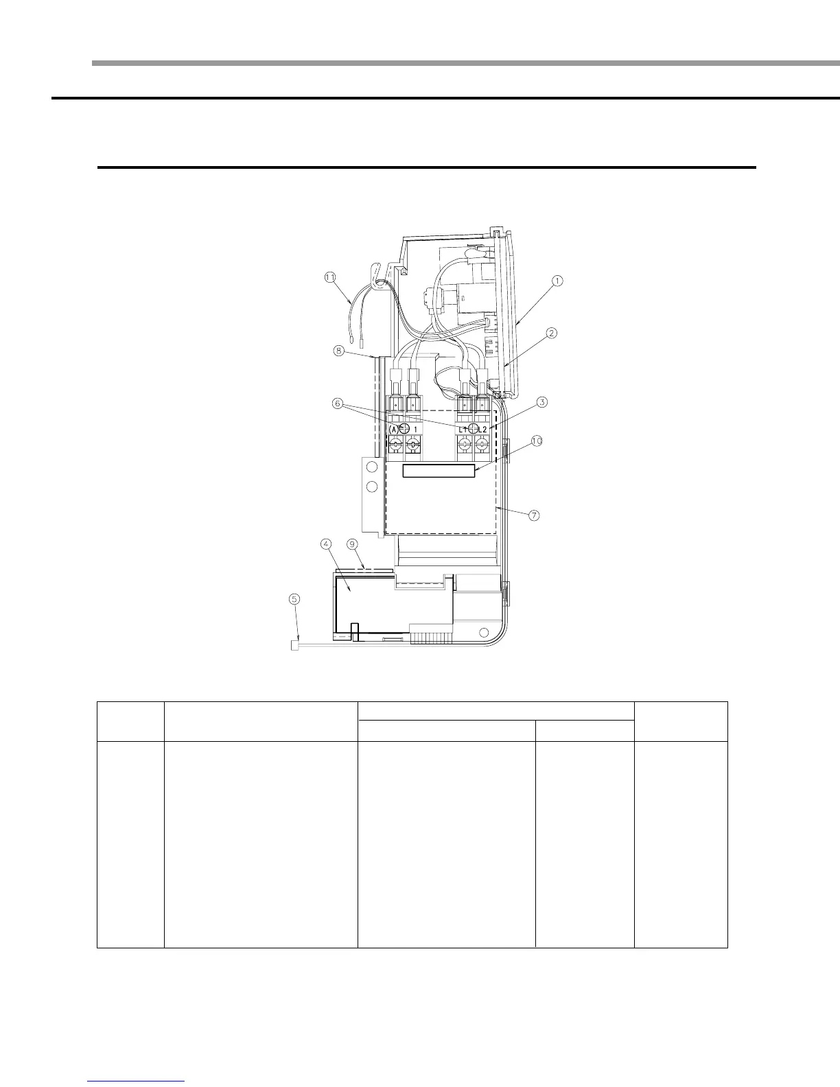
3 Assembly control in
Parts List
No.
1
2
3
4
5
6
7
8
9
10
11
Description
HOLDER CONTROL
ASSY MAIN PCB
ASSY TERMINAL BLOCK
ASSY DISPLAY PCB
CONNECTOR WIRE PCB U/D
SCREW
HOLDER CLAMP IN
SEAL-PANEL FRONT RH
SEAL- H/CONTROL FRONT
LABEL
ASSY THERMISTOR
Code No.
AS07A5(6)MA/AS09A5(6)MAF
AS12AA(B)MCF
DB61-00160B
DB93-01018B
DB65-00079B
DB93-00268A
DB39-00147A
-
DB61-00219B
DB72-10191T
DB62-02664A
DB68-01975A
DB32-00020A
DB61-00160B
DB93-01018A
DB65-00079B
DB93-00268A
DB39-00147A
-
DB61-00219B
DB72-10191T
DB62-02664A
DB68-01975A
DB32-00020A
-
-
-
-
-
SNA
-
SNA
SNA
SNA
-
Remark
Assembly drawing and part’s list (cont’d)
ΙΙΛΛ
AS07A5(6)MA/AS09A5(6)MAF/AS12AA(B)MCF
AS07AS(6)MA SM_E 1/7/04 6:07 PM Page 28

Other manuals for Samsung US07A6MA

Related product manuals