EasyManua.ls Logo

Samsung US09A6MAF - Outdoor Unit Wiring Diagrams

Samsung US09A6MAF
47 pages
Print Icon
To Next Page IconTo Next Page
To Next Page IconTo Next Page
To Previous Page IconTo Previous Page
To Previous Page IconTo Previous Page
Loading...
41
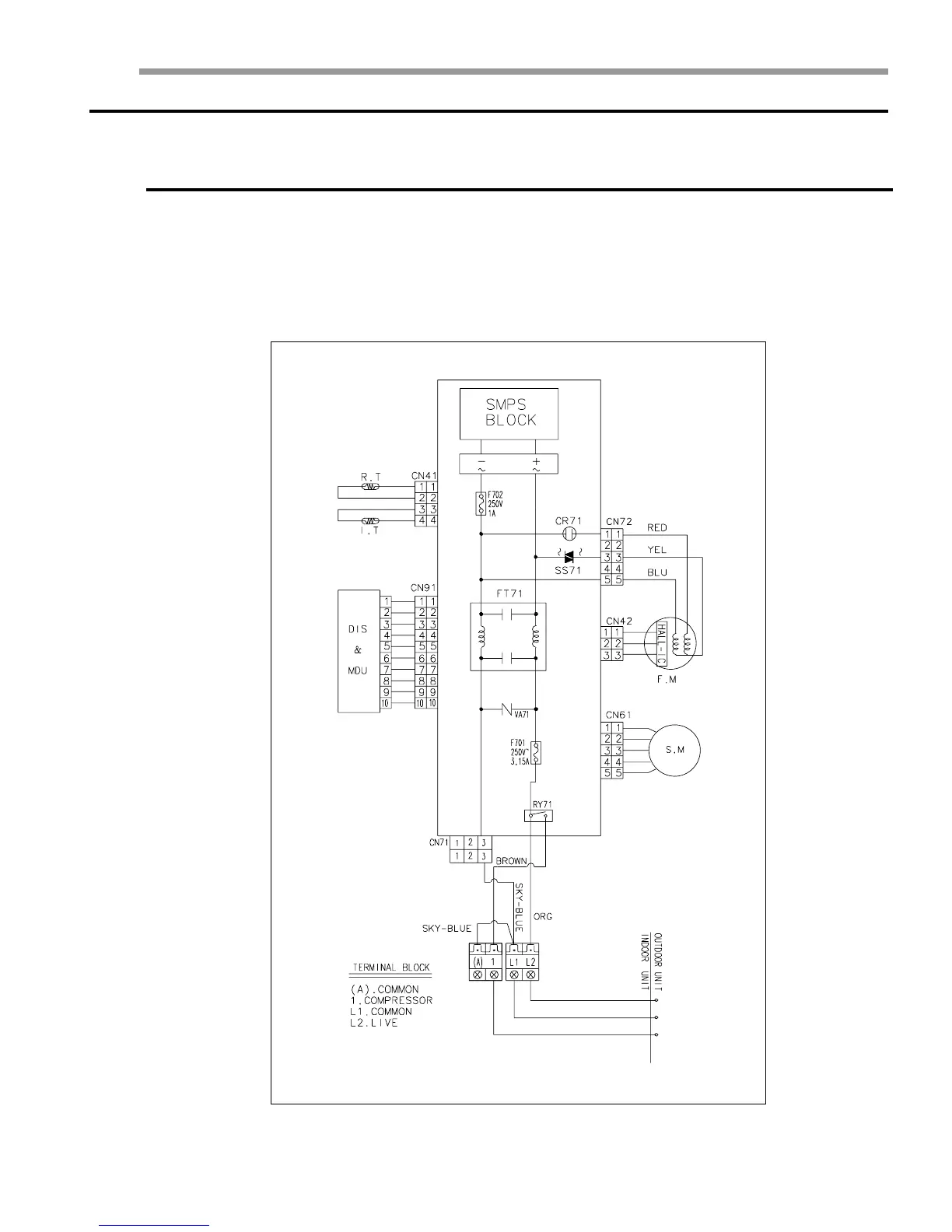
AS07A5(6)MA/AS09A5(6)MAF/AS12AA(B)MCF
Wiring diagrams
ΛΛ
ΙΙΙΙ
1 Indoor unit
This document can not be used without Samsungs authorization.
AS07AS(6)MA SM_E 1/7/04 6:07 PM Page 41

Other manuals for Samsung US09A6MAF

Related product manuals