EasyManua.ls Logo

Sanyo C1852 - Schematic Diagram

Sanyo C1852
45 pages
To Next Page IconTo Next Page
To Next Page IconTo Next Page
To Previous Page IconTo Previous Page
To Previous Page IconTo Previous Page
Loading...
– 24 –
SM830079
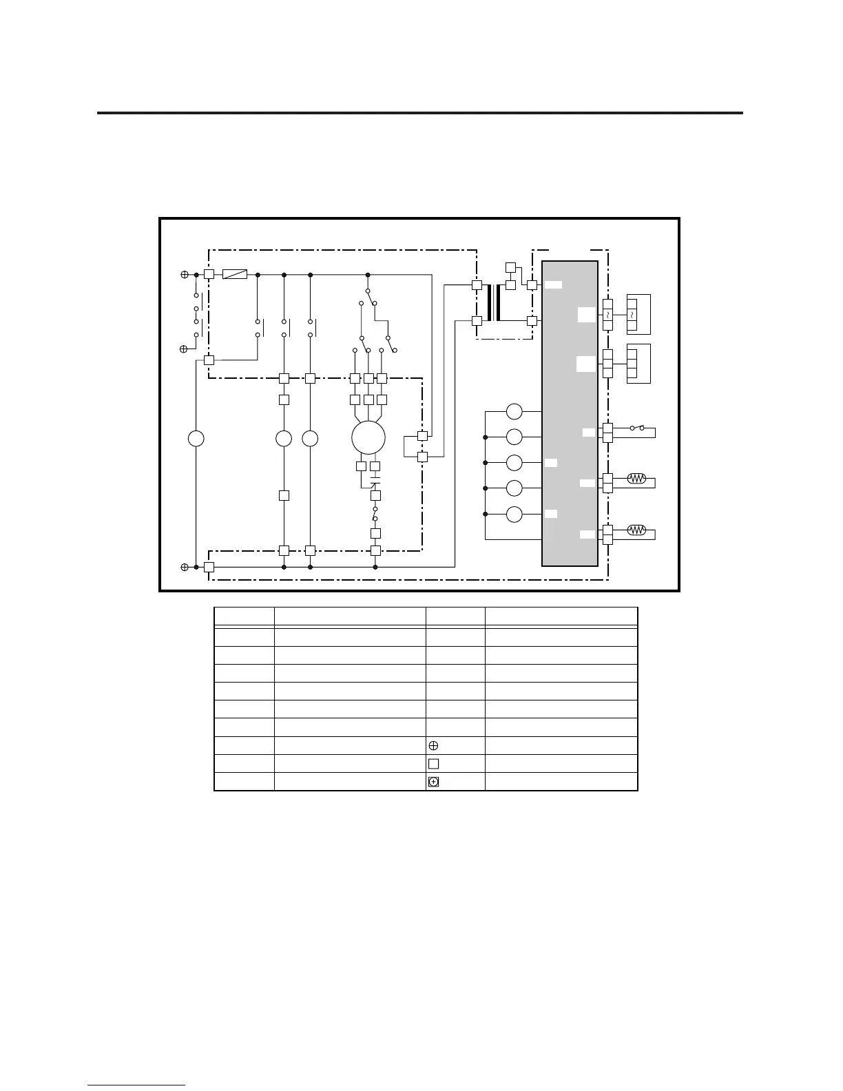
9. ELECTRICAL WIRING DIAGRAMS
(1) Indoor Unit
11
11
1 XS1852
• Schematic Diagram
S 854-2-5268-872-00-0 (XS1852)
2
1
3
1
3
1
2
IND
3
1
2
7
1
7
1
SW
TR1
PRY
Coil
TH1
2
1
Room
TH2
FS
CR-TS2432
Controller
1
3
5
F1
(3A)
1
2
1
3
DP
RY2
RY1
RY3
RY4
RY5
3
2
LMPR
1
1
RY5
4P-3
4P-2
4P-1
1
FMI
12
1
9
8
735
456
RY1
RY2
RY2
HLM
1
3
49FMI
RY3
RY4
PRPR
Symbols Description
FMI
49FI
RC1
F1
DP
LM
TR1
PR
RY1-RY5
Indoor Fan Motor
Indoor Motor Thermal Protector
Running Capacitor
Fuse
Drain Pump
Auto Louver Motor
Power Transformer
Power Relay
Auxiliary Relay
Symbols Description
FS
TH1
TH2
CR-TS2432
IND
SW
Float Switch
Thermistor (Indoor Coil)
Room Thermistor
Indoor Controller
Indicator Lamp Assy
Switch Assy
Terminal Plate
Connector
Terminal
SEC
LM
TH1
TH2
DP
49FI
RC1
1
2
2
FS
W/
LESS
SW
ASSY

Related product manuals