EasyManua.ls Logo

Sanyo C3082 - Page 17

Sanyo C3082
104 pages
Print Icon
To Next Page IconTo Next Page
To Next Page IconTo Next Page
To Previous Page IconTo Previous Page
To Previous Page IconTo Previous Page
Loading...
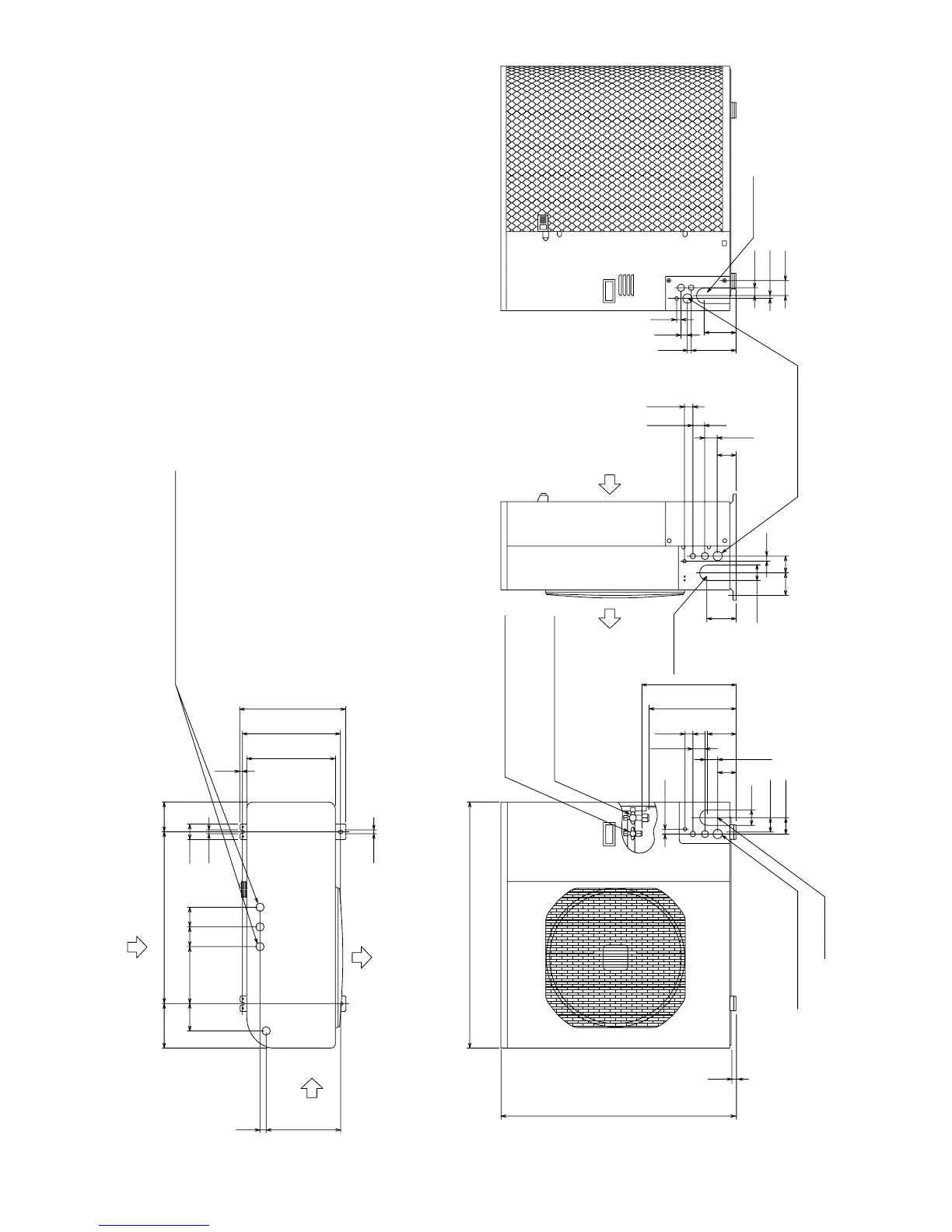
Outdoor Unit C3082
C3682
Unit: inch(mm)
(852-0-0010-19400-1)
6-11/6 25-31/32 4-11/32
2-15/16
2-3/8
2-ID:1-1/4 holes (holes for drain)
Of the 4-ID:1-1/4 holes, use 1 of 2 holes
specified for drain use to install the port.
Use rubber plugs to seal the remaining 3 holes.
1/2
1/2
2-15/168-5/84-1/8
37-1/32 (940)
Refrigerant tubing joint (Liquid tube)
Flare connection dia.3/8" (9.52)
Refrigerant tubing joint (Gas tube)
Flare connection dia.5/8" (15.88)
2-3/8
3/4
1-15/16
1-27/32
1-3/16
4-11/32
13-9/32
14-11/32
4-11/32
2-25/32
1-15/16
6-23/32 19/32
31/32
4-3/4
1-3/16
7/16
2-5/32
21/32
1-27/32
1-3/16
2-3/8
Tubing outlet
3/4
3-3/8
2-17/32
Wiring outlet
(knock-out holes
dia.1-3/8, 1-3/32, 7/8, 1/2)
Wiring outlet
(knock-out holes
dia.1-3/8, 1-3/32, 7/8, 1/2)
Tubing outlet
Tubing outlet
2-25/32
2-5/32
2-17/32
35-13/16 (910)
23/32
1-1/32
13/32
13-3/8 (340)
14-31/32
16-5/32
11-13/32
AIR INTAKE
AIR INTAKE
AIR DISCHARGE
AIR DISCHARGE
AIR INTAKE
17

Table of Contents

Related product manuals