EasyManua.ls Logo

Sanyo C3082 - 3 Dimensional Data

Sanyo C3082
104 pages
Print Icon
To Next Page IconTo Next Page
To Next Page IconTo Next Page
To Previous Page IconTo Previous Page
To Previous Page IconTo Previous Page
Loading...
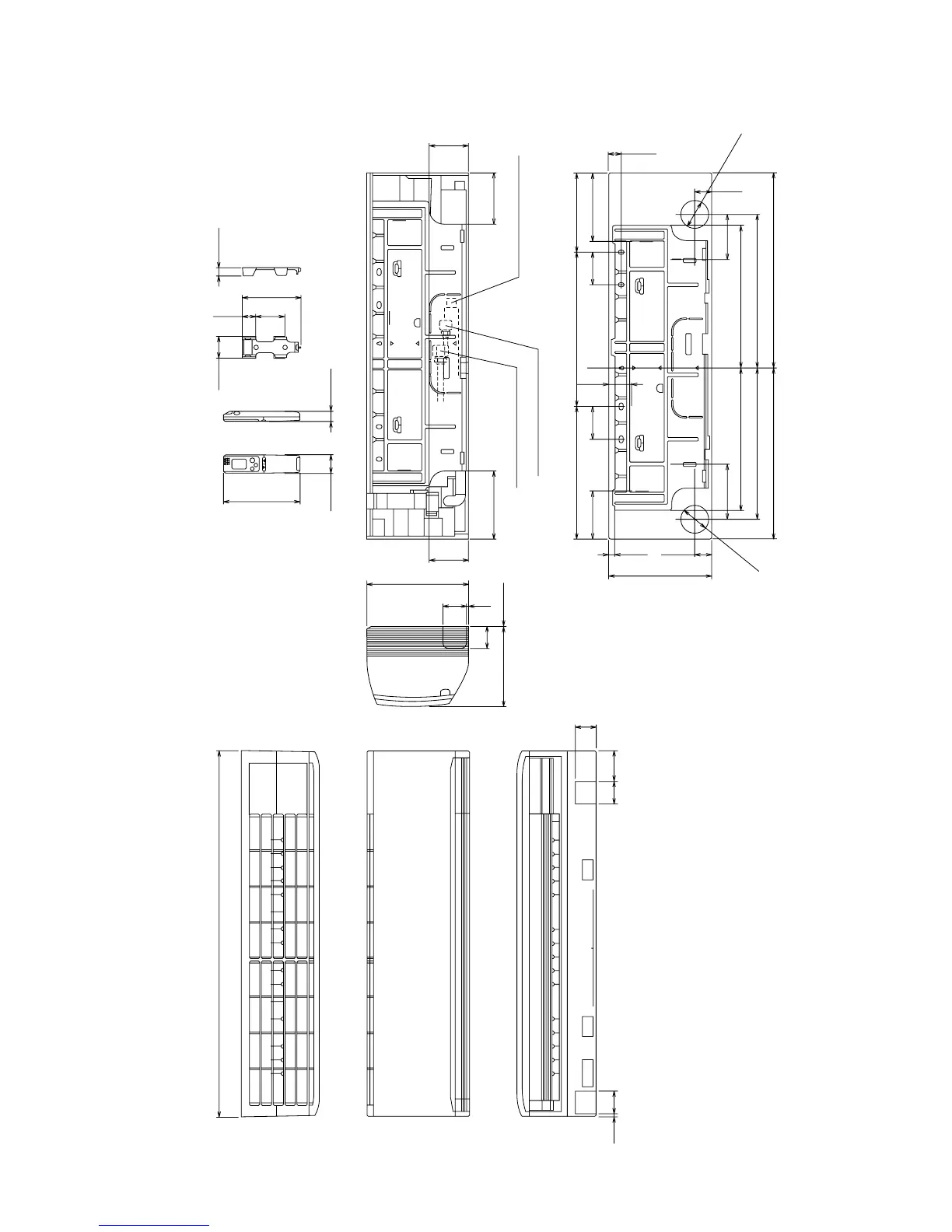
3. DIMENSIONAL DATA
Indoor Unit KS3082
KS3682
Unit: inch(mm)
(852-0-0010-19600-0)
41-15/16 (1065)
9-1/16 (230) (3/32)
7-25/32
Wide tube dia. 5/8" (15.88)
Narrow tube dia. 3/8" (9.52)
Drain hose dia. 23/32" (18)
1-27/32 1-3/32
2-3/32 25/32
5-1/2
6-7/32
16-11/32
17-5/16
19-9/16
16-11/32
17-21/32
22-3/8
5-3/16
3-3/4 3-3/4 7-7/8
15-1/8 17-23/32
2-11/16
11-13/16
1-7/8
dia. 3-5/32
23/32
1-15/32
1-7/8
9-3/32
5-27/32
2-3/8
5/16 2-3/4
4-9/16
4-9/16
11-13/16 (300)
7-23/32
2-3/4
5-9/16
1-9/32
7/16
2-5/8
2-3/8
3-3/8
2-5/8
dia. 3-5/32
16

Table of Contents

Related product manuals