EasyManua.ls Logo

Sanyo C3082 - Page 82

Sanyo C3082
104 pages
Print Icon
To Next Page IconTo Next Page
To Next Page IconTo Next Page
To Previous Page IconTo Previous Page
To Previous Page IconTo Previous Page
Loading...
9
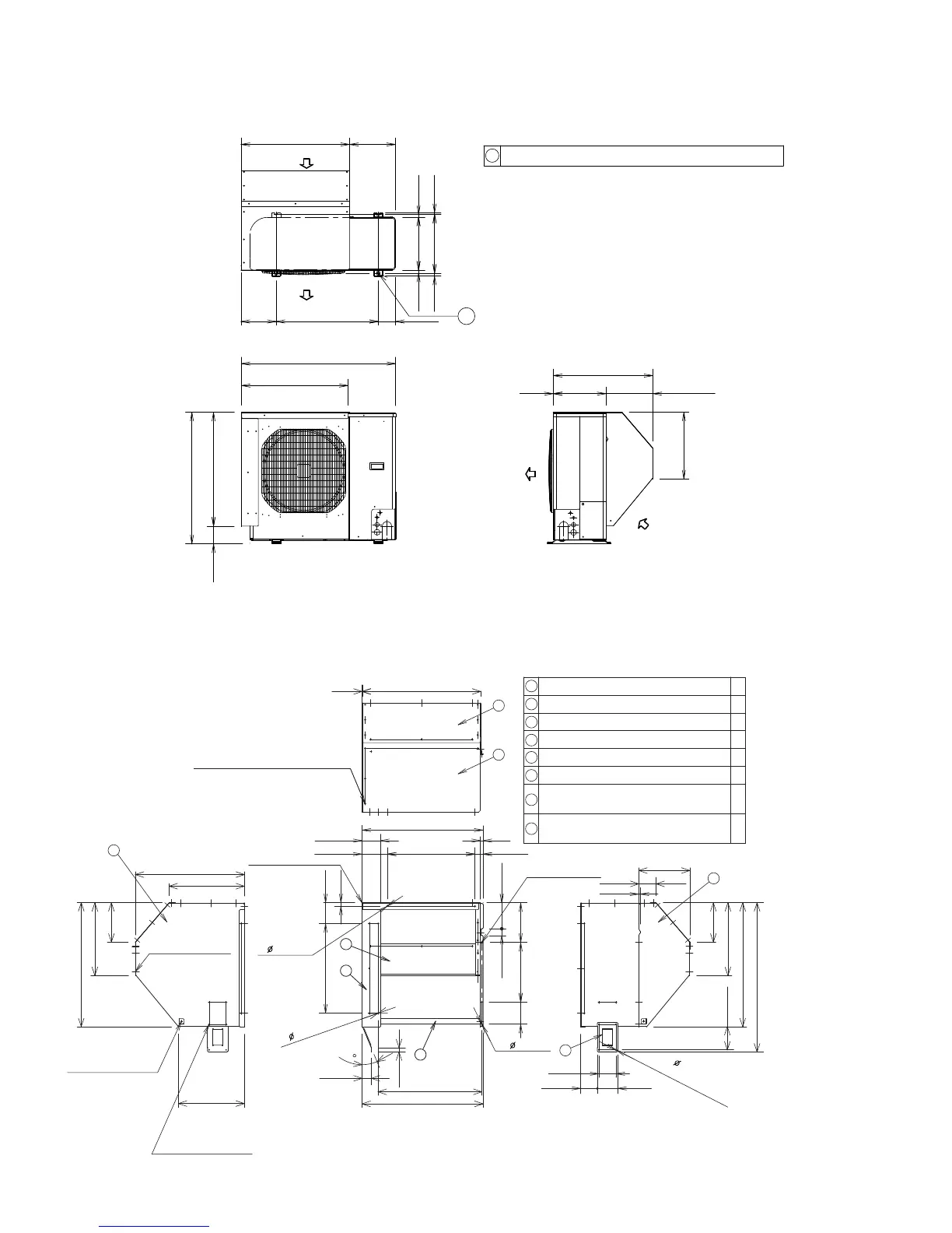
25-13/32"
3/32"
13-3/8"
(11-15/16")
16-15/16"
Air Intake
Air
discharge
39-1/4"
27-7/32"
7-1/32"
35-15/16"
28-15/16"
27-5/8" (11-5/8")
Air Intake
13/32"14-31/32"
25/32"
25/32"
25/32"
13-3/8"
4-11/32"
1
(8-15/16") 25-31/32"
Air discharge
1
Unit: inch
Hole for anchor bolt (4-R1/4") / Anchor bolt: 3/8" or M10
2-2-4. Dimensions of Snow-proof Duct
Reference diagram for C3082/3682
7
3
4
6
8
2
1
1
2
3
4
5
6
7
8
1
1
1
1
1
1
1
Unit: inch
Unit top, snow-proof duct
Unit right, snow-proof duct
Unit left, snow-proof duct
Unit front, snow-proof duct
Unit reverse side, snow-proof duct
Unit reverse side, snow-proof duct
Unit reverse side, reinforcement bracket
for snow-proof duct
Unit left, reinforcement bracket for snow-
proof duct
Fastened by screws at 14 locations
Fastened by screws
at 3 locations
Fixing with
front panel
2- 9/32"
hole
2- 9/32"
hole
2- 9/32"
hole
2- 9/32"
hole
9/32"
X13/32"hole
15-11/32"
Fastened by screws
(Same on the
reverse side)
Fastened by screws
at 2 locations
28-13/16"
16-15/16"
9-1/8"
31/32"
2-7/32"
24-3/16"
28-3/16"
23
Fixing with
rear panel
5/8"
6-1/32"
28-3/16"
1-15/16"20-13/32"
5/16"
5-13/32"
34-23/32"
11-7/8"
28-/13/16"
16-15/16"
9-1/8"
4-1/32"
Fixing with
rear panel
Unit anchor holes
(Unit fixed bottom plate)
9-7/32"
13-7/8"
5-1/8
"
4-11/32"
1-9/16"
5-7/8"
25/32"
4-27/32"
20-7/8"
3-27/32"
3-15/16"
4-23/32"
25-13/32"
17-9/16"
Fastened by screws
at 2 locations
(Same on the
reverse side)
Fixing with
top panel
1/16" 27-9/16"
5
1
Reference diagram for snow-proof duct (locally purchased): STK-BDV80E
10-018 C3082-3682 2/15/10 11:50 AM Page 9

Table of Contents

Related product manuals