EasyManua.ls Logo

Satec EM133 - Page 4

Satec EM133
10 pages
Print Icon
To Next Page IconTo Next Page
To Next Page IconTo Next Page
To Previous Page IconTo Previous Page
To Previous Page IconTo Previous Page
Loading...
EM132-133 QUICK START GUIDE
BG0504 REV.A2
4
NOTE:
Refer to the Installation and operation
manual for the wiring schematics
diagrams
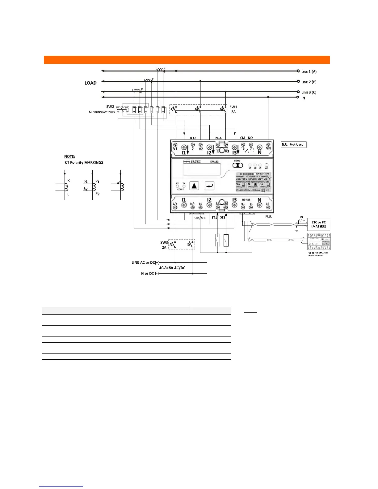
Typical Electrical Installation
Figure 3:Common Wiring Mode: 4LL3 or 4Ln3
Wiring Configuration
3-wire 2-element Direct connection using 2 CTs
4-wire Wye 3-element direct connection using 3 CTs
4-wire Wye 3-element connection using 3 PTs, 3 CTs
3-wire 2-element Open Delta connection using 2 PTs, 2 CTs
4-wire Wye 2½ -element connection using 2 PTs, 3 CTs
3-wire 2½ -element Open Delta connection using 2 PTs, 3 CTs
4-wire 3-element Delta direct connection using 3 CTs
3-wire 2½-element Broken Delta connection using 2 PTs, 3 CTs

Other manuals for Satec EM133

Related product manuals