EasyManua.ls Logo

Schartec 3 Series - P190 Steuerung Skizze

Schartec 3 Series
Print Icon
To Next Page IconTo Next Page
To Next Page IconTo Next Page
To Previous Page IconTo Previous Page
To Previous Page IconTo Previous Page
Loading...
4
mechanische Beschädigungen durch Unfall, Fall oder Stoß
fahrlässige oder mutwillige Zerstörung
normale Abnutzung, Verschleiß oder Wartungsmangel
Reparatur durch nicht qualizierte Personen
Verwendung von Teilen fremder Herkunft
Entfernen oder unkenntlich machen der Seriennummer
Ersetzte Teile werden Eigentum des Herstellers.
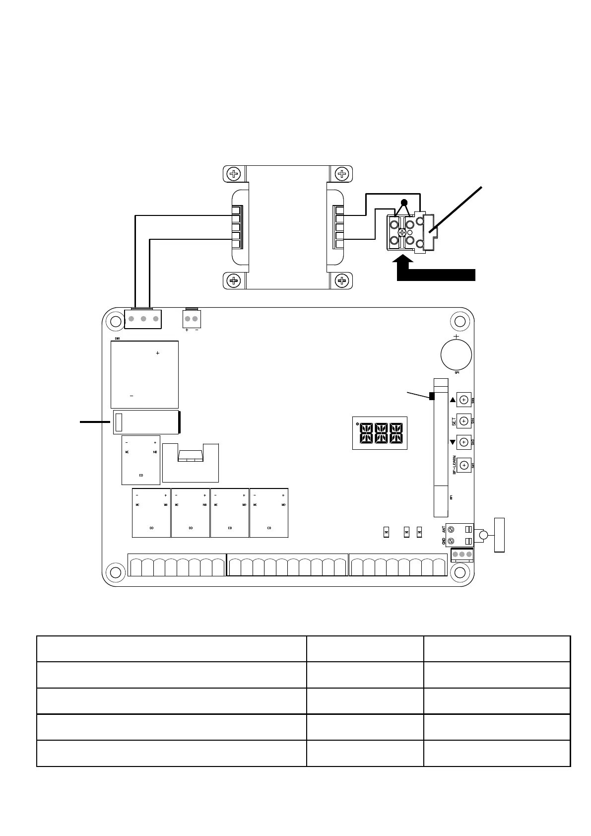
P190 Steuerung Skizze
Antenne
1 2 3 4 5 6 7 8
9 10 11 12 13 14 15 16 17 18
19 20 21 22 23 24 25 26
UP
SET
DOWN
RF-LEARN
11
Lit+ Lit- Lat+ Lat- M1+ M1- M2+ M2-
LED Display
5V S1 S2 GND Lmt1 Lmt2 GND Lmt3 Lmt4 GND DKey SKey GND Ph1 PhVccGND Ph2 PhVcc
LED2 LED3 LED4
Trafo-Sicherung
Nur Time-Lag
2A/250V, 5*20mm
verwenden!
Stromversorgung
230 V AC
brown = L1 (phase)
blue = N (neutral)
Bitte ein 16 AWG
(1,5 mm²) Kabel
verwenden.
blaue LED
leuchtet auf, wenn
RF-Learn gedrückt wird
Platine
Sicherung
Nur
Time-Lag
20A/250V,
5*20mm
verwenden!
Trafo
LED2: Taster / Schlüsselschalter
LED3: Lichtschranke 1
LED4: Lichtschranke 2
Spezifikationen für Kabel/Verkabelung
Anschluss
Stromversorgung
Motoranschlüsse
Signalleuchten, Lichtschranken, Taster, Schlüsselschalter
Elektroschloss
1x Kabel mit 3 x 1,5 mm²
(16 AWG)
1x Kabel mit 5 x 1,5 mm²
(16 AWG)
0,5 mm² (20 AWG)
1,0 mm² (17 AWG)
20 m (wenn länger dann 2,5 mm² /
14 AWG verwenden
10 meter
20 meter
10 meter
Kabelliste Maximal zulässige Länge

Related product manuals