EasyManua.ls Logo

Schartec Move 600 - Page 11

Schartec Move 600
Print Icon
To Next Page IconTo Next Page
To Next Page IconTo Next Page
To Previous Page IconTo Previous Page
To Previous Page IconTo Previous Page
Loading...
11
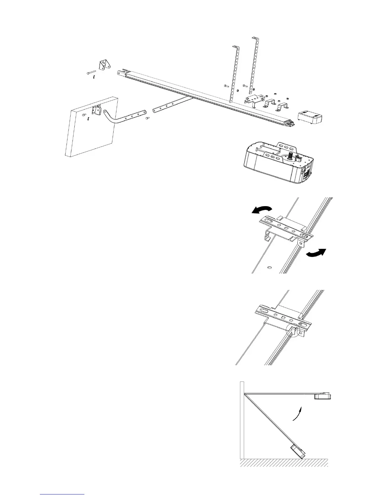
Installation der Antriebsschiene mit Antriebskopf
Schritt 1 (Bild 8)
Befestigen Sie den Antriebskopf an der Antriebsschiene. Die
Befestigung erfolgt anhand der beiden Haltebügel mit den
gelieferten 6 mm Muttern.
Schritt 2 (Bild 8)
Legen Sie die Antriebsschiene mit der Kopfeinheit zentral auf den
Garagenboden, mit der Kopfseite weg vom Garagentor. Heben Sie
die Vorderseite der Schiene bis zur Wandhalterung, schieben Sie
den Bolzen durch die die Löcher von Halterung und Schiene und
sichern Sie diesen anschließend mit dem mitgelieferten Splint.
Schritt 3 (Bild 9 und 10)
Positionieren Sie die Easy-Click Halterung an einer beliebigen Stelle
auf der Rückseite der Schiene. Drehen Sie die Easy-Click Halterung
auf die Schiene und biegen Sie anschließend die beiden Laschen
seitlich mit einer Zange nach unten.
Schritt 4 (Bild 11)
Heben Sie und stützen Sie den Antriebskopf (mit einer Leiter oder
Ähnlichem) in zentrierter Lage und und positionieren Sie die
Schiene in einem waagerechten Niveau.
WARNUNG: achten Sie darauf, dass sich keine Kinder in der Nähe
des Garagentores, des Antriebs oder der Stützleiter befinden.
Eine Nichtbeachtung dieser Warnung kann zu schweren
Schäden und Verletzungen führen.
Bild 11
Bild 9
Bild 10
Bild 8