EasyManua.ls Logo

Schartec Move 600 - Installing Boom Rail and Operator

Schartec Move 600
Print Icon
To Next Page IconTo Next Page
To Next Page IconTo Next Page
To Previous Page IconTo Previous Page
To Previous Page IconTo Previous Page
Loading...
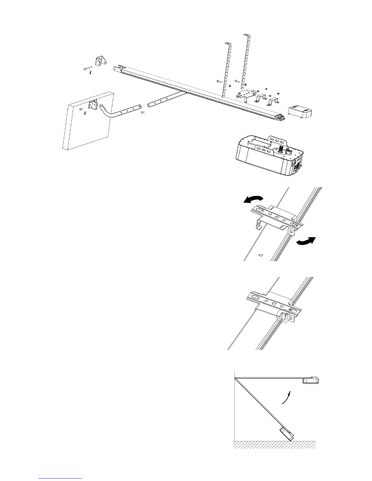
Installation of boom rail and operator
STEP 1 (Figure 8)
Attach the operator to the boom rail. Assemble the 2 “U” hanging
brackets with 6 mm nuts supplied.
STEP 2 (Figure 8)
Place the boom rail and operator assembly centrally on the garage
floor with the operator opposite the garage door. Lift the front of the
rail up to the door bracket. Insert the pivot pin and secure it with the
split pin supplied.
STEP 3 (Figure 9 and 10)
Attach the Easy-Click bracket anywhere along the rail. Position it
where you would like to mount the boom to the ceiling. Once the
bracket is in position, twist until a 'click' sound is heard and bend
the 2 side pieces under to secure the bracket to the boom.
STEP 4 (Figure 11)
Lift and support the operator with a ladder so it is positioned
centrally and level.
WARNING: Do not allow children around the door, opener or
supporting ladder -- serious injury and/or damage may result from
failure to follow this warning.
F
i
gure 11
35
Figure 9
Figure 10
Figure 8