EasyManua.ls Logo

Schweitzer Engineering Laboratories SEL-487V - Current Unbalance Protection; Overcurrent and Undercurrent Protection

Schweitzer Engineering Laboratories SEL-487V
32 pages
Print Icon
To Next Page IconTo Next Page
To Next Page IconTo Next Page
To Previous Page IconTo Previous Page
To Previous Page IconTo Previous Page
Loading...
Schweitzer Engineering Laboratories, Inc. SEL-487V Data Sheet
5
Phase-Current Unbalance
Elements
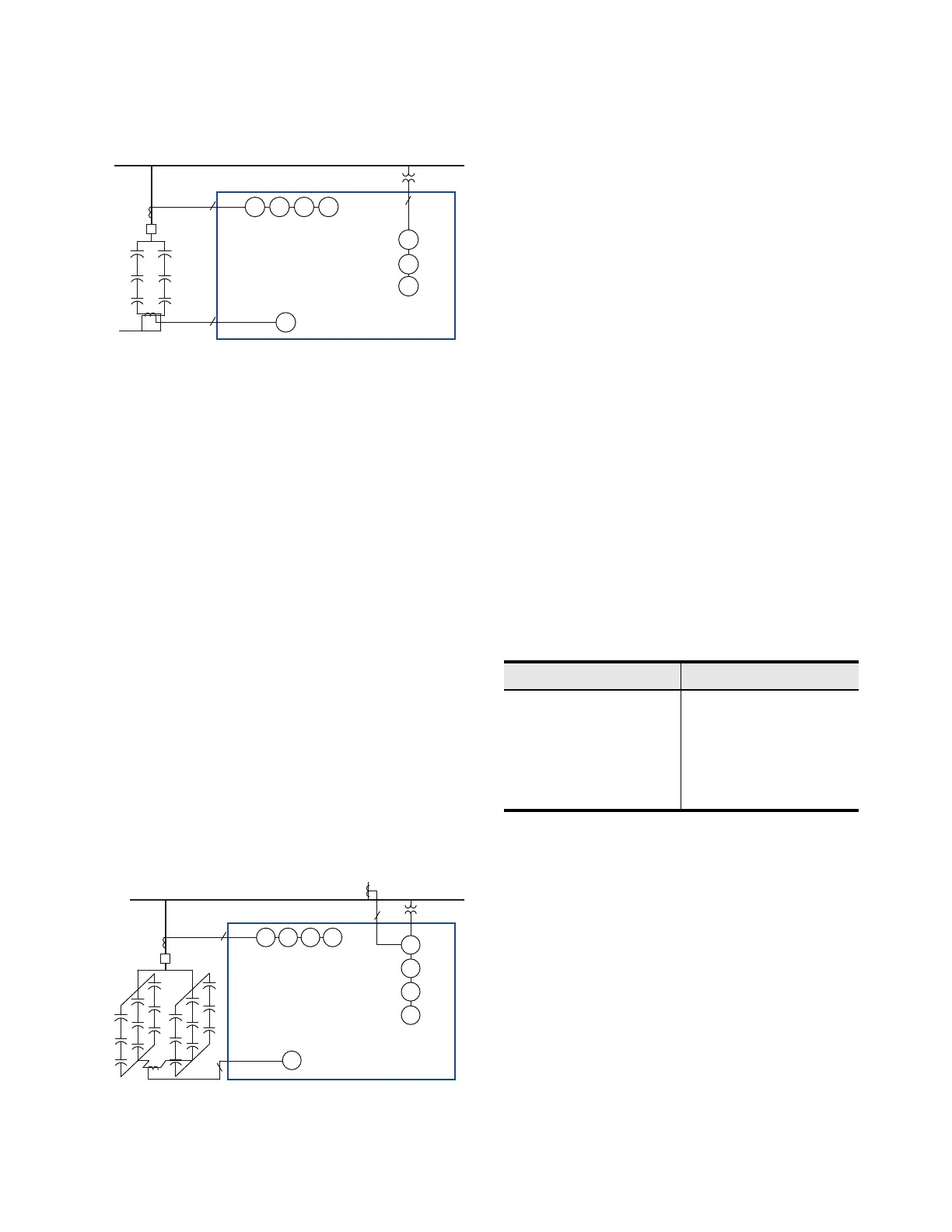
Figure 4 Phase-Current Unbalance One-Line Diagram
The SEL-487V protects grounded and ungrounded
double-wye capacitor bank applications with phase-
current unbalance detection. The SEL-487V provides
three independent phase-current unbalance elements
with KSET nulling functions. The phase unbalance
elements use the positive-sequence current as a reference
to enhance sensitivity and provide a directional
indication. Fault direction is indicated based upon the
polarity of the phase-current transformer connection to
the relay.
Each phase-current unbalance element is provided with
three pickup levels, with independent definite-time delay.
Neutral-Current Unbalance
Elements
Protect ungrounded capacitor bank configurations with
the SEL-487V neutral-current unbalance elements.
Three elements are provided for protection of up to three
parallel capacitor banks. Each element is provided with
three levels of pickup with definite-time delay.
KSET nulling is provided for each neutral-current
element, and is activated by issuing the KSET command
via relay serial port or through Telnet session with the
relay.
Figure 5 Neutral-Current Unbalance One-Line Diagram
Overcurrent Elements
The SEL-487V calculates instantaneous overcurrent
elements for phase, negative-sequence, and zero-
sequence currents. The relay offers three levels of phase,
negative-, and zero-sequence overcurrent protection for
the W terminal current inputs. Torque control is provided
for each element.
The SEL-487V also includes ten selectable operating
quantity inverse-time overcurrent elements. You can
select the operating quantities from the following:
IA
IB
IC
MAX (IA, IB, IC) (where IA, IB, IC can be funda-
mental or rms quantities from Terminal W)
I1
3I2
IG
Individual torque control settings are provided for each
time-overcurrent element.
The time-overcurrent curves (listed in Table 2) have two
reset characteristic choices for each time-overcurrent
element. One choice resets the elements if current drops
below pickup for one cycle. The other choice emulates
the reset characteristic of an electromechanical induction
disc relay.
Undercurrent Elements
The relay includes six undercurrent elements, each with
two levels, for a total of 12 undercurrent outputs for
detecting loss of load conditions. All 12 elements
provide both instantaneous and time-delayed outputs.
You can use SEL
OGIC control equations to switch the 12
elements in or out of service.
60
P
27
P,Q,G
59
P,Q,G
81
O,U
3
3
3
SEL-487V
IAW, IBW, ICW
VAY, VBY, VCY
IX1, IX2, IX3
46
50
P, Q, G
51
P, Q, G
50
BF,FO
Busbar
52
60
N
27
P,Q,G
32
P,F
59
P,Q,G
81
O,U
3
1
3
SEL-487V
IAW, IBW, ICW
VAY, VBY, VCY
IX2
46
50
P, Q, G
51
P, Q, G
50
BF,FO
1
IX1
Line
Busbar
52
Table 2 Time-Overcurrent Curves
US IEC
Moderately Inverse Standard Inverse
Inverse Very Inverse
Very Inverse Extremely Inverse
Extremely Inverse Long-Time Inverse
Short-Time Inverse Short-Time Inverse

Related product manuals