EasyManua.ls Logo

Scotsman ACM 25 - Page 17

Scotsman ACM 25
36 pages
Print Icon
To Next Page IconTo Next Page
To Next Page IconTo Next Page
To Previous Page IconTo Previous Page
To Previous Page IconTo Previous Page
Loading...
Page 17
Page 17
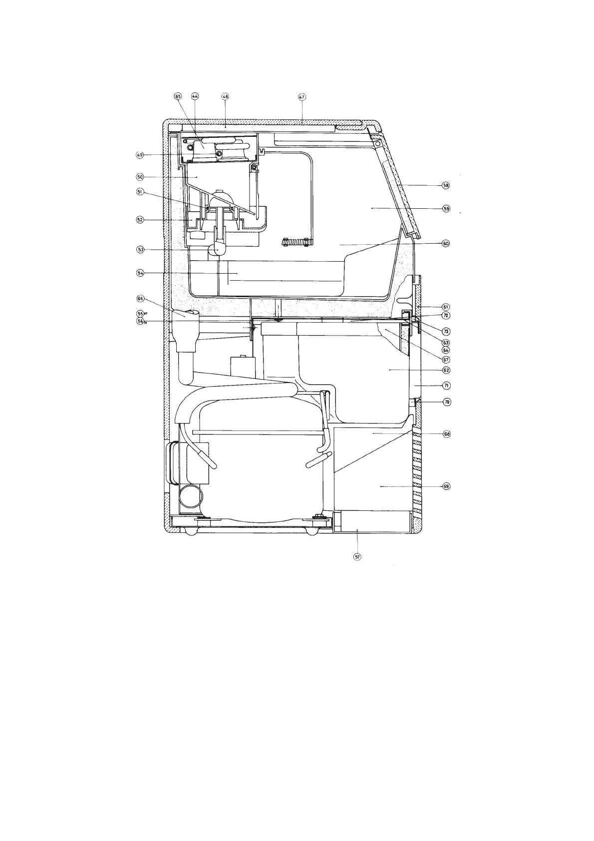
SIDE - VIEW
Pos. Part. N. Description
44 741049.02 Evaporator cover
46 650331.01 Insulation
47 660326.00 Cabinet assy
49 660340.02 Evap. bulb holder
660386.00 Clip
50 783130.00 Evap housing
51 640093.00 Seal ring
52 660320.00 Water spray tray
53 610139.00 Plastic hose
(pump to spray system)
54 660336.00 Cover
57 660325.00 Water drip tray
58 781284.00 Bin door
59 782053.00 Ice storage bin
60 660339.00 Bulb holder
* Not shown
Pos. Part. N. Description
61 781285.00 Front lower panel
62 793114.00 Water reservoir assy
63 781335.00 Reservoir holder
65 784234.00 Evaporator platen assy
66 784252.02 Suction accumulator
67* 660359.00 Funnel insert
68 660335.00 Upper separator
69 660343.00 Lower separator
70 660338.00 Rubber fitting
71 660337.00 Sight glass
72* 783141.00 Reservoir cover
660424.00 Reservoir cover - Pump
73 660341.00 Rubber plug

Related product manuals