EasyManua.ls Logo

Scotsman CME256 - Pre-Installation Guide

Scotsman CME256
36 pages
Print Icon
To Next Page IconTo Next Page
To Next Page IconTo Next Page
To Previous Page IconTo Previous Page
To Previous Page IconTo Previous Page
Loading...
Pre-Installation
Other Applications:
Models CME256 or CME506 may be placed on
certain Ice Dispensers, including Scotsman
models: HD30, ID200 and ID250.
Check with other dispenser manufacturers for
recommendations regarding application.
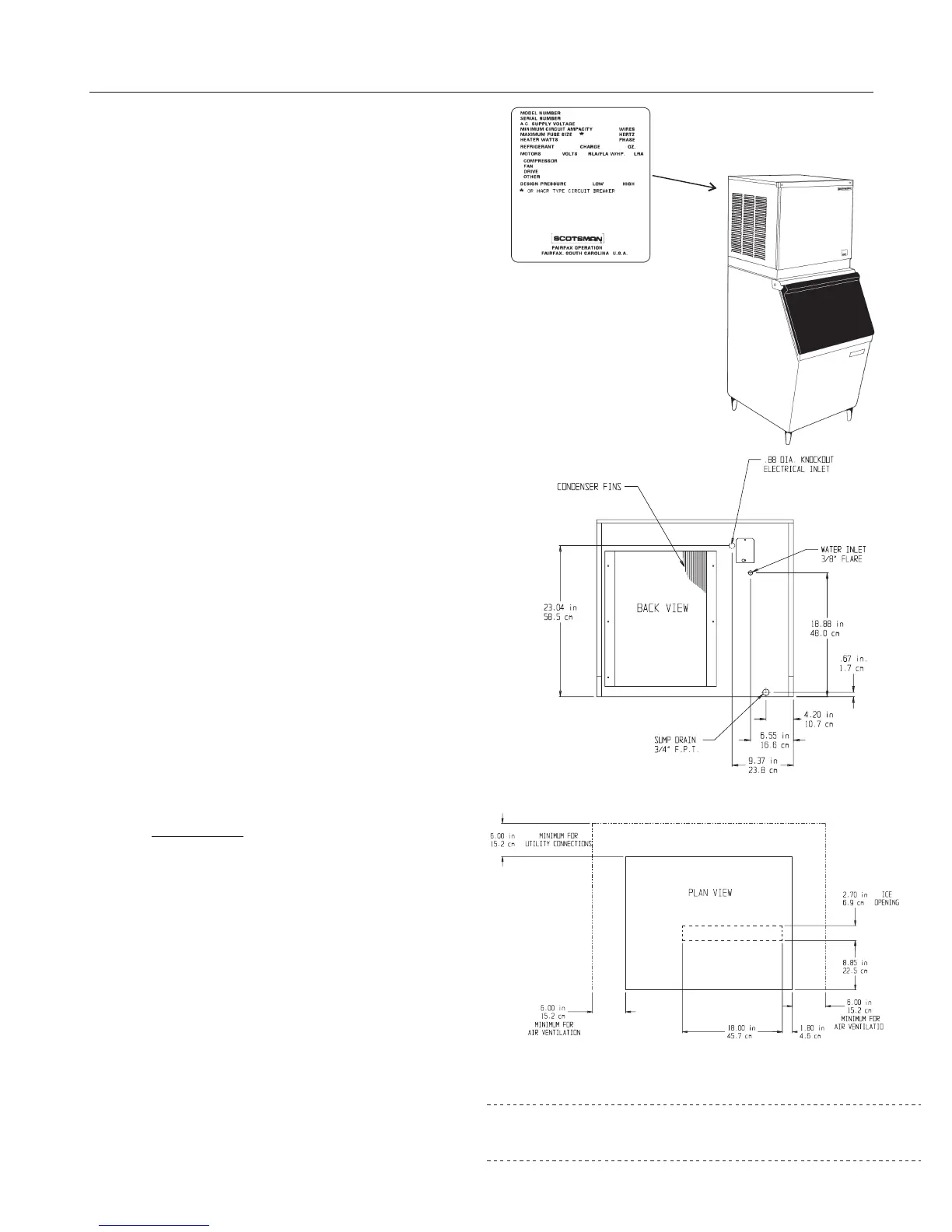
Check the nameplate for electrical requirements.
The nameplate is located on the back of the ice
machine. While the model and serial number are
on the nameplate, a serial number plate is located
at the front of the machine, below the metal control
box.
Water:
There is no such thing as pure water. There are
two ways water can contain impurities: in
suspension or in solution. Suspended solids can
be filtered out. In solution or dissolved solids must
be diluted or treated. Water filters are
recommended to remove suspended solids. Some
filters have treatment in them for suspended
solids. Check with a water treatment service for a
recommendation.
Cube Ice machines use more water than what
ends up in the bin as ice. While most water is used
during ice making, a portion is designed to “rinse”
out the water system to keep hard water scale
from clogging up the machine. That water rinse,
combined with water filters, prolongs the times
between needed water system cleaning.
Note: All Scotsman CM
3
models, like those
described in this manual, feature Scotsman’s
AutoIQ™ control system and ReliaClean™ water
system cleaning process.
Service Technicians
: All models are set by the
factory at a “standard” water rinse, which is
compatible with typical water conditions. The
ReliaClean™ water system provides an
adjustment method so to the amount of water
rinsed per cycle can be changed. If the prior ice
machine worked acceptably well with the local
water conditions, leave the machine at the factory
setting. If severe water conditions are present, and
water filters do not solve the problem acceptably,
adjust the machine to use more water. If water
conditions are excellent, adjust the machine to use
less water. See the Adjustments section.
Note: Water use adjustments are customer
convenience adjustments; they are NOT factory
defects and are NOT covered by warranty.
CME256, 506, 656, 806: AutoIQ™ Cubers
July 2004
Page 3
Nameplate
Location of Nameplate
(on the back, plus a serial plate
is behind the front panel)
Top View Diagram
Back View Diagram (air cooled)
Note: Although the machine will function, ice capacity of
air cooled machines will be significantly reduced with
only 6 inches of clearance at the sides, back and top.

Other manuals for Scotsman CME256

Related product manuals