EasyManua.ls Logo

Scotsman CU50PA-1 - Cabinet Layout

Scotsman CU50PA-1
17 pages
Print Icon
To Next Page IconTo Next Page
To Next Page IconTo Next Page
To Previous Page IconTo Previous Page
To Previous Page IconTo Previous Page
Loading...
March 2010
Page 3
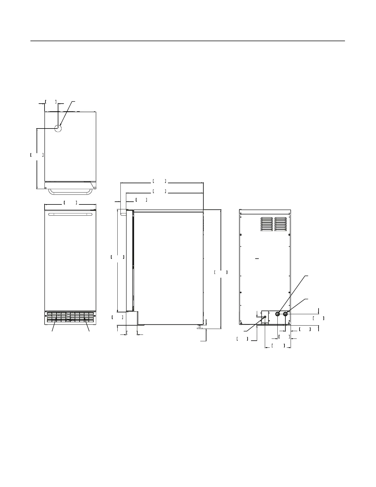
Cabinet Layout
1.00
LEG
ADJUSTMENT
[25.40]
14.88
377.95
AIR OUT
AIR IN
3.88
98.55
17.45
443.23
FLOOR DRAIN
ACCESS HOLE
34.38
873.25
3.85
97.79
29.66
753.24
22.29
566.17
23.89
606.68
1.60
40.51
3.20
81.28
3.27
82.99
2.44
62.04
1.57
39.75
7.44
188.98
3.83
97.16
115 V
POWER CORD
POTABLE WATER INLET
1/4" COMPRESSION FITTING
DRAIN
FLEXIBLE TUBING
3/8 I.D. PUMP MODEL (INCLUDED)
5/8 I.D. GRAVITY MODEL (NOT INCLUDED)

Related product manuals