EasyManua.ls Logo

Scotsman MCS 46 A - Page 14

Scotsman MCS 46 A
34 pages
Print Icon
To Next Page IconTo Next Page
To Next Page IconTo Next Page
To Previous Page IconTo Previous Page
To Previous Page IconTo Previous Page
Loading...
Page 13
Page 13
16
15
14
13
2
1
7
8
9
10
3
4
5
6
11
12
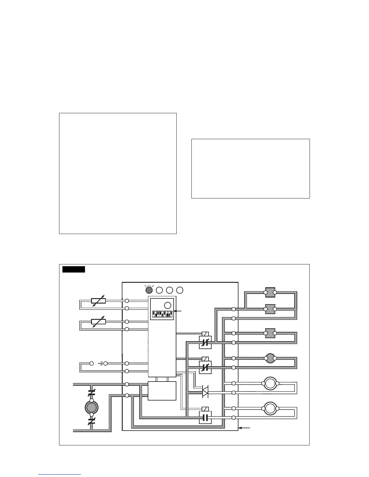
Rx Tx
WATER IN VALVE
HOT GAS VALVE
CONTACTOR COIL
FAN MOTOR
WATER PUMP
- EVAPORATOR
- AMBIENT
- CONDENSER
TEMPERATURE SENSORSBINCOMPRESSOR
TRANSF.
DATA
PROCESSOR
ELECTR.
TIMER
DIP
SWITCH
ELECTRONIC CARD
L
N
RELAYS
RELAY
TRIAC
WATER DRAIN VALVE
FIG. 5
During the freezing process, when the evaporator
temperature falls below an established value, to
the evaporator temperature sensor supplies a
low voltage power signal to the electronic control
device (P.C.BOARD) in order to activate an
electronic timer.
This one takes over the control of the freezing
cycle up to the complete formation of the ice
cubes (Fig.4).
NOTE.
The length of the entire freezing cycle
is governed by the evaporator temperature
sensor which has its brobe placed in contact
with the evaporator serpentine (Non
adjustable) in combination with the electronic
timer (Adjustable) incorporated in the P.C.
BOARD).
The timer adjustment is factory set in
consideration of the ice maker model, cooling
version and ice cube size (Small, Medium,
Large).
It is possible, however, to modify the timed
length of the freezing cycle, by changing the
DIP SWITCH keys setting.
In Table B of PRINCIPLE OF OPERATION
are shown the various time extensions of the
freezing cycle second phase, in relation with
the different DIP SWITCH keys settings.
G. After about 17-20 minutes from the
beginning of the freezing cycle, in an hypothetic
ambient temperature of 21°C , the defrost cycle
takes place with the hot gas and the water inlet
valves being simoultaneously activated (Fig.5).
The electrical components in operation are:
COMPRESSOR
WATER PUMP
WATER INLET SOLENOID VALVE
HOT GAS VALVE
WATER DRAIN SOLENOID VALVE/S
for the first 30 seconds.
NOTE. The length of the defrost cycle is
related to the length of the second phase of
freezing cycle T2. (Time to drop the
evaporating temperature from 0
°
C (32
°
F) -
small Red LED blinking-to-15
°
C (5
°
F) small
Red LED ON steady.
It is possible to extend the length of the defrost
cycle by changing the setting of DIP SWITCH
7 and 8 as shown on table at page 24.
H. Check, during the defrost cycle, that the
incoming water flows correctly into sump reservoir
in order to refill it and that the surplus overflows
through the overflow drain tube.

Related product manuals