EasyManua.ls Logo

Scotsman MCS 46 A - General Information and Installation; Location and Levelling

Scotsman MCS 46 A
34 pages
Print Icon
To Next Page IconTo Next Page
To Next Page IconTo Next Page
To Previous Page IconTo Previous Page
To Previous Page IconTo Previous Page
Loading...
Page 4
Page 4
MC 46 AS 6 Air Stainless steel
MC 46 WS 6 Water Stainless steel
2.5
Model Cond. unit Finish Comp. HP Water req. - lt/24 HR
SPECIFICATIONS
660
3700*
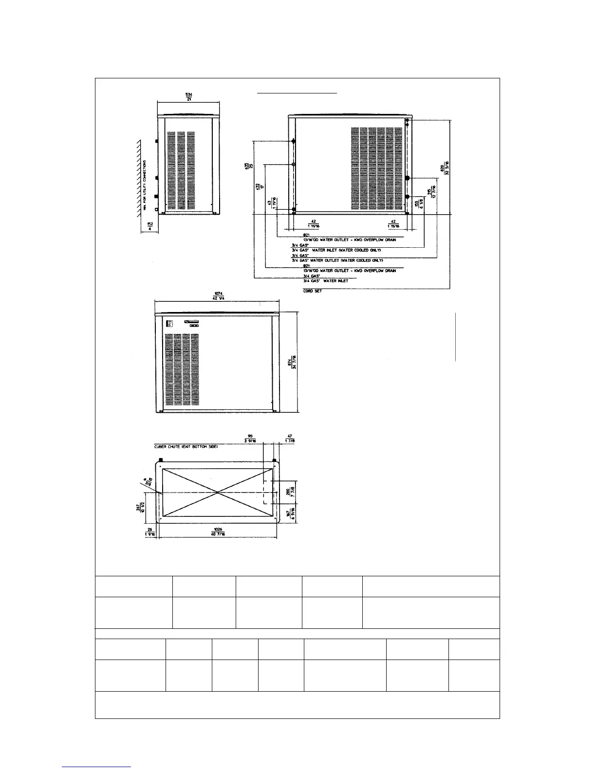
MC 46 - MACHINE SPECIFICATIONS
DIMENSIONS:
HEIGHT 874 mm.
WIDTH 1074 mm.
DEPTH 534 mm.
WEIGHT 185 Kgs.
ACCESSORIES
KSC 11: Cube stacking kit
220-230/50/1 7 2400 50 3 x
Basic electr. Amps Watts N. of wires Amps. fuse
230/50/1N 10 66 3 x 1.5 m/m
2
20
400/50/3N 5.5 14 5 x 1.5 m/m
2
10
Starts Electric power cons.
amps. Kwh x 24 HR
Cubes per harvest: MCL-46 144 large - MCM-46 204 medium - MCS 46 396 small
* At 15°C (60°F) water temperature

Related product manuals