EasyManua.ls Logo

Scotsman MV21 - MV 21 Machine Details

Scotsman MV21
30 pages
Print Icon
To Next Page IconTo Next Page
To Next Page IconTo Next Page
To Previous Page IconTo Previous Page
To Previous Page IconTo Previous Page
Loading...
Page 6
Page 6
SPECIFICATIONS (CONT'D)
Accessoires
KSC 18 - Cube stacking kit
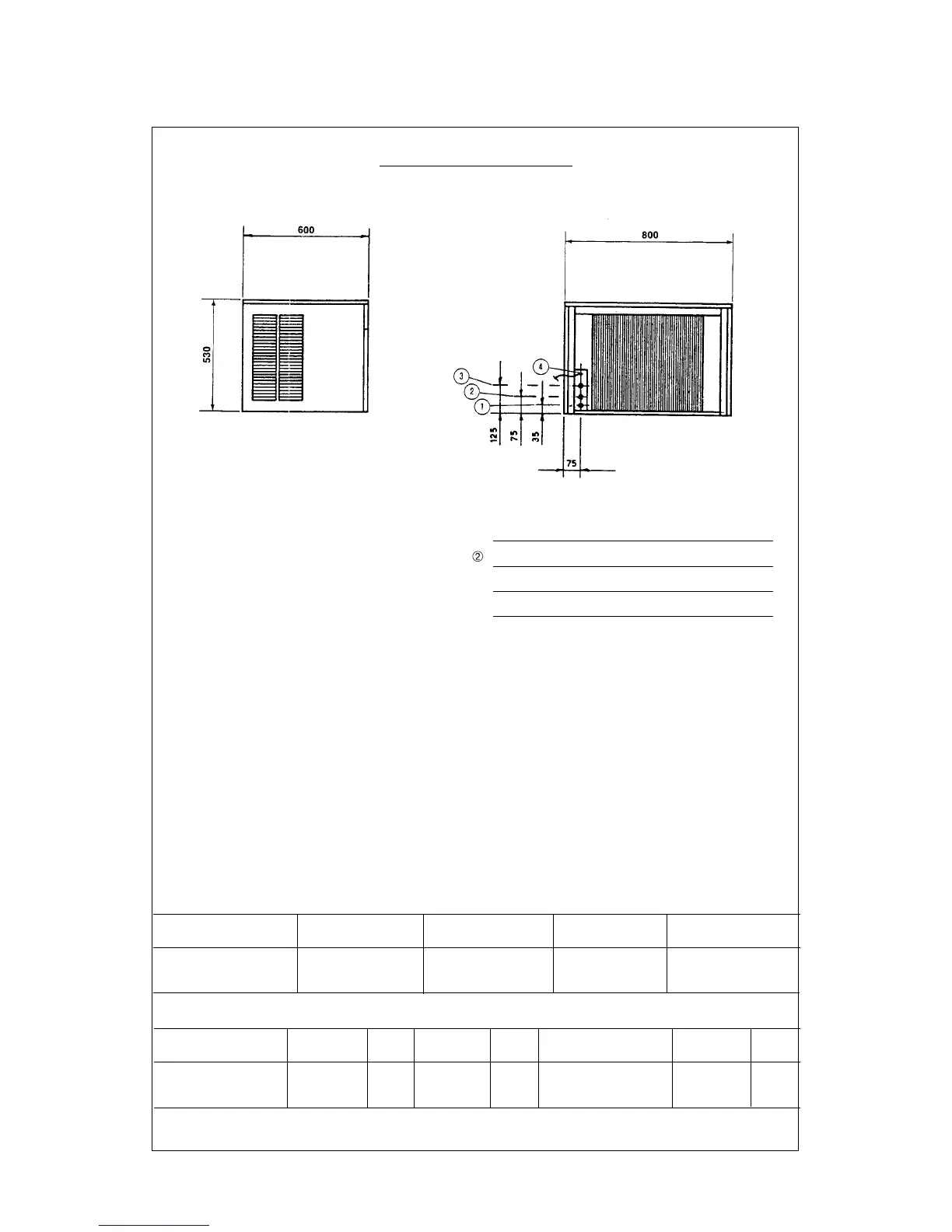
Dimensions:
HEIGHT 530 mm. (20" 7/8)
WIDTH 800 mm. (31" 1/2)
DEPTH 600 mm. (25" 3/8)
WEIGHT 77 Kgs.
Model Cond. unit Finish Comp. HP
MV 21 - MACHINE SPECIFICATIONS
Water req.
lt/24 HR
Model
Basic
electr.
amps
Start
amps
watts
Electric power cons.
Kwhx24 HR.
N. of wires
Amps
Fuse
220-240/50/1
MV 21 - AS Air 380*
MV 21 - WS Water 1800*
MV 21 - AS
MV 21 - WS
6
5.5
30
30
1100
1050
26.4
25.2
3x1,5 mm
2
16
Cubes per harvest: 204 Full - 408 Half
* With water at 15°C
Stainless Steel 1 1/4
20 mm - WATER OUTLET
20 mm - WATER OUTLET - WATER COOLED ONLY
3/4" GAS WATER INLET
CORD SET

Related product manuals