EasyManua.ls Logo

Scotsman MXG 328 - Page 6

Scotsman MXG 328
40 pages
Print Icon
To Next Page IconTo Next Page
To Next Page IconTo Next Page
To Previous Page IconTo Previous Page
To Previous Page IconTo Previous Page
Loading...
Page 6
Page 6
220-230/50/1 7 1850 36.7 3 x
Basic electr. Amps Watts N. of wires Amps. fuse
230/50/1N 9.9 31 3 x 1.5 m/m
2
16
400/50/3N 5 x 1.5 m/m
2
MXG 428 AS 6 Air Stainless steel
MXG 428 WS 6 Water Stainless steel
Model Cond. unit Finish Water req. - lt/24 HR
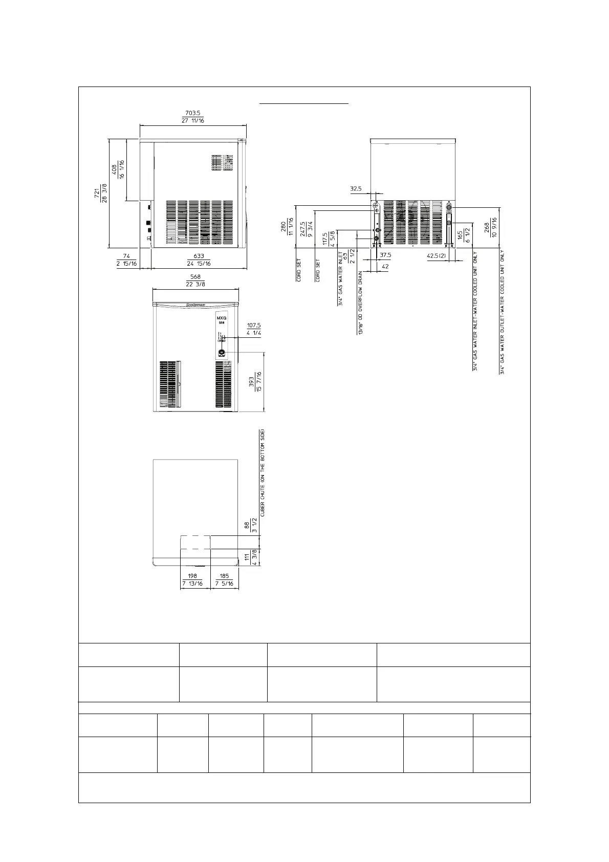
SPECIFICATIONS
370
MXG 428 - MACHINE SPECIFICATIONS
DIMENSIONS:
HEIGHT 720 mm.
WIDTH 568 mm.
DEPTH 703.5 mm.
WEIGHT 66 Kgs.
Starts Electric power cons.
amps. Kwh x 24 HR
Cubes per harvest: 72 Large - 106 Medium - 198 Small
* At 15°C (60°F) water temperature

Related product manuals