EasyManua.ls Logo

Scotsman N0622 - Remote Condenser Installation; Remote Condenser Components; Condenser Model Compatibility; Contamination and Headmaster Warnings

Scotsman N0622
24 pages
Print Icon
To Next Page IconTo Next Page
To Next Page IconTo Next Page
To Previous Page IconTo Previous Page
To Previous Page IconTo Previous Page
Loading...
Refrigeration - Remote Condenser Models
Remote condenser models have additional
installation needs.
The correct remote condenser fan and coil must be
connected to the ice making head. Liquid and
discharge tubing connections are on the back of
the ice machine cabinet. Pre-charged tubing kits
are available in several lengths to accommodate
most installations. Order the one that just exceeds
the length needed for the installation.
The kit numbers are:
RTE10
RTE25
RTE40
RTE75
There are limits as to how far away from the ice
machine and where the remote condenser can be
located. See page 10 for those limits.
The correct condenser must be used.
Ice Machine
Model
Voltage
Condenser
Model
F0822R,
N0622R
115 ERC111-1
F1222R,
N0922R
208-230 ERC311-32
N1322R 208-230 ERC311-32
Do not reuse condenser coils contaminated with
mineral oil (used with R-502 for example). They will
cause compressor failure and will void the
warranty.
A headmaster is required for all remote condenser
systems. Prior condensers did not have a
headmaster. New head / prior condenser retrofits
can use headmaster kit KPFHM.
Use of non-Scotsman condensers requires
pre-approval from Scotsman Engineering.
July 2009
Page 9
N0422, F0522, N0622, F0822, N0922, F1222, N1322, F1522
Air, Water or Remote User Manual
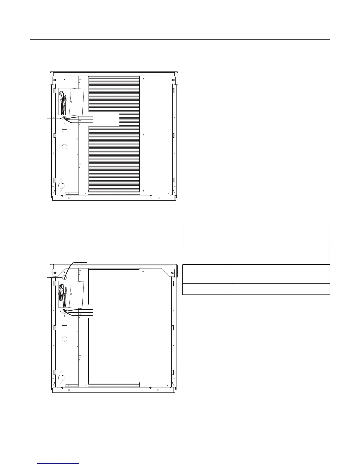
To Remote
Condenser
Fan Motor
Blue
Ground
Wire
Connection
Black
White
Ground
Power
Supply
Wires
Install
Strain
Relief
Install
Strain
Relief
Junction
Box
Cover
Reference: Electrical Detail - Remote
Ground
Wire
Connection
Black
White
Ground
Power
Supply
Wires
Install
Strain
Relief
Junction
Box
Cover
Reference: Electrical Detail, air or water cooled.

Other manuals for Scotsman N0622

Related product manuals