EasyManua.ls Logo

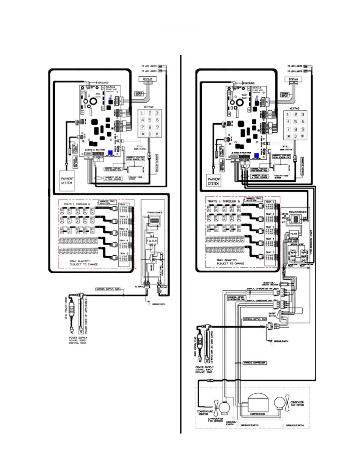
Seaga INF4S - Wiring Diagrams

Seaga INF4S
77 pages
Print Icon
To Next Page IconTo Next Page
To Next Page IconTo Next Page
To Previous Page IconTo Previous Page
To Previous Page IconTo Previous Page
Loading...
57Revision 2.EL950 1.3.1074C 18.6



Related product manuals