EasyManua.ls Logo

Seagate Barracuda - Drive Mounting

Seagate Barracuda
44 pages
Print Icon
To Next Page IconTo Next Page
To Next Page IconTo Next Page
To Previous Page IconTo Previous Page
To Previous Page IconTo Previous Page
Loading...
26 Barracuda SATA Product Manual, Rev. G
Configuring and Mounting the Drive www.seagate.com
Figure 1 Attaching SATA cabling
Each cable is keyed to ensure correct orientation. Barracuda drives support latching SATA connectors.
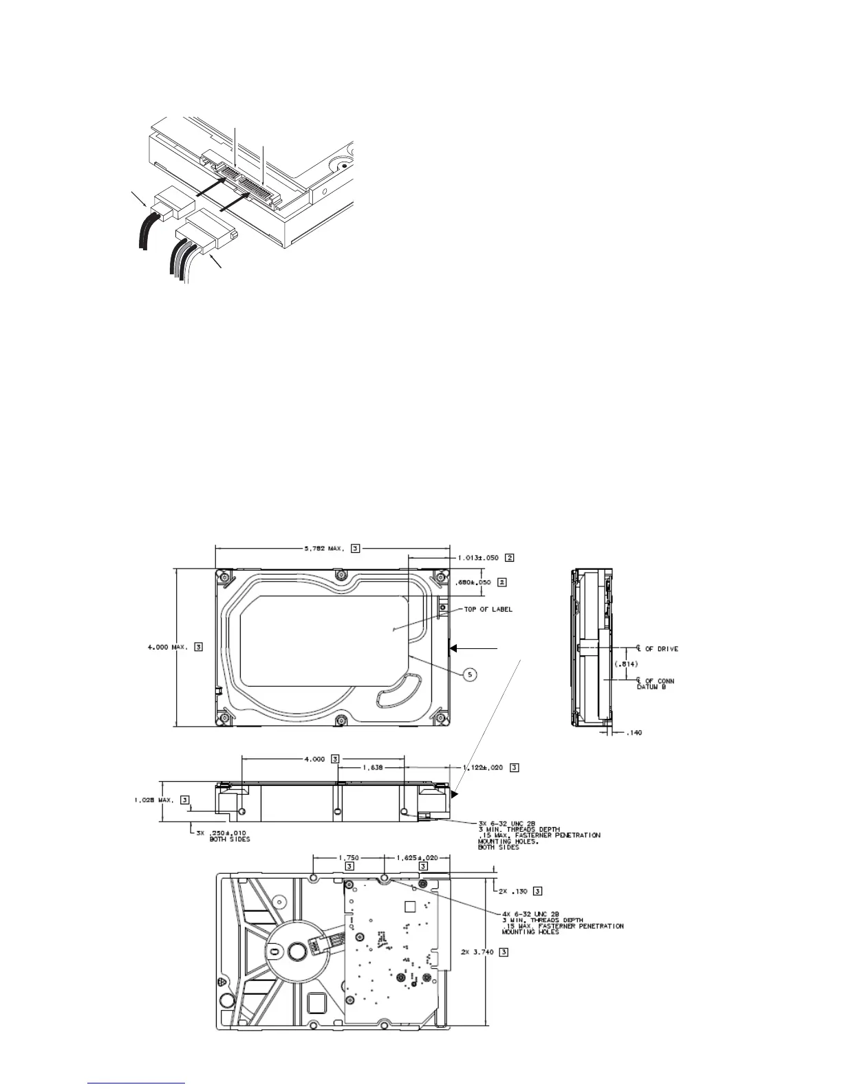
3.4 Drive mounting
You can mount the drive in any orientation using four screws in the side-mounting holes or four screws in the
bottom-mounting holes. Refer to Figure 2, Figure 3, and Figure 4 for drive mounting dimensions. Follow these
important mounting precautions when mounting the drive:
Allow a minimum clearance of 0.030 inches (0.76mm) around the entire perimeter of the drive for cooling.
Use only 6-32 UNC mounting screws.
The screws should be inserted no more than 0.150 inch (3.81mm) into the bottom or side mounting holes.
Do not overtighten the mounting screws (maximum torque: 6 inch-lb).
Figure 2 Mounting dimensions (3-disk: 3TB, 2TB; 2-disk: 2TB, 1.5TB models)
Power cable
Signal cable
Signal connector
Power connector
Temperature
Check Point

Other manuals for Seagate Barracuda

Related product manuals