EasyManua.ls Logo

Select Audio 8 - Digital System Basic Overview; Cable Requirements

Default Icon
34 pages
Print Icon
To Next Page IconTo Next Page
To Next Page IconTo Next Page
To Previous Page IconTo Previous Page
To Previous Page IconTo Previous Page
Loading...
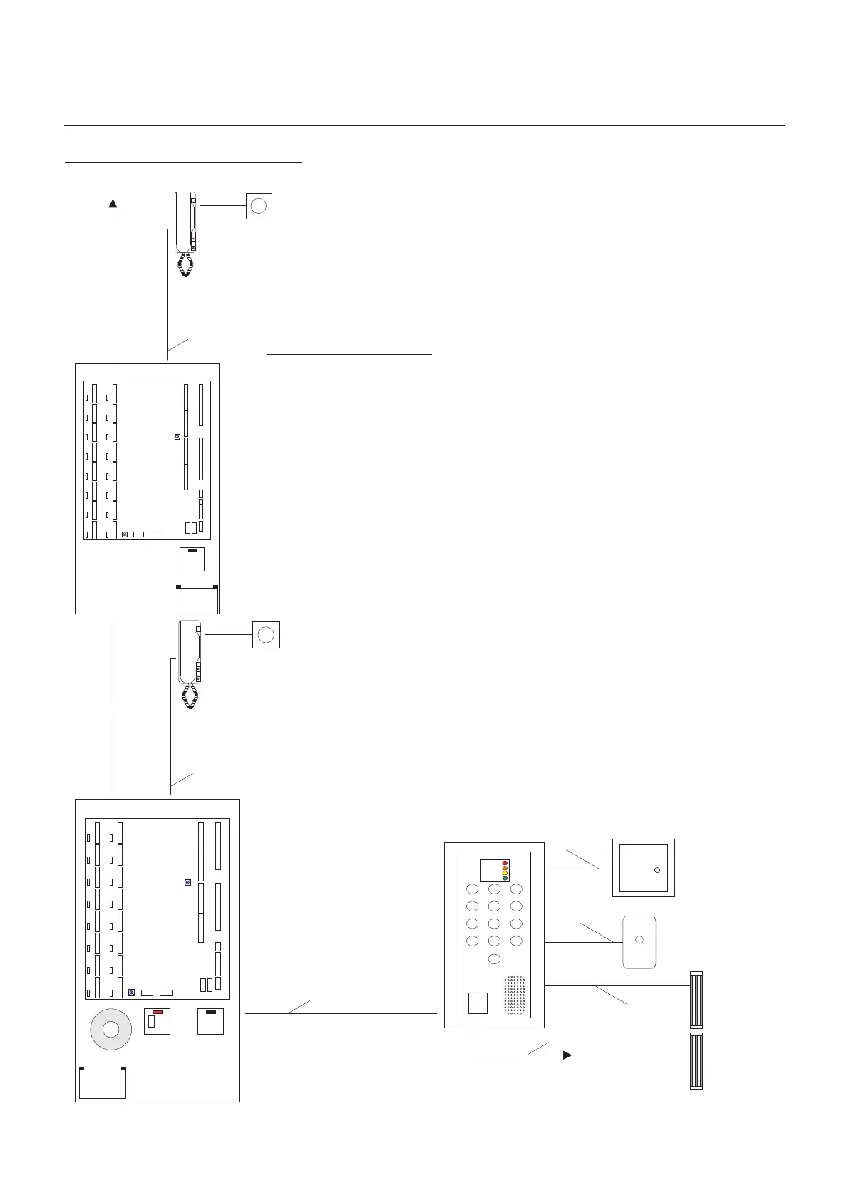
Digital System Basic Overview
Telephone Handset
Strobe/Sounder
PANEL 1
PANEL 2
3
4
5
6
7
8
9
10
11
12
13
14
15
16
1
2
3
4
5
6
7
8
9
10
11
12
13
14
15
16
1
2
1
1,C
2
6
9
PS
PL
DL
1,C
2
6
9
PS
PL
DL
1,C
2
6
9
PS
PL
DL
1,C
2
6
9
PS
PL
DL
1,C
2
6
9
PS
PL
DL
1,C
2
6
9
PS
PL
DL
1,C
2
6
9
PS
PL
DL
1,C
2
6
9
PS
PL
DL
1,C
2
6
9
PS
PL
DL
1,C
2
6
9
PS
PL
DL
1,C
2
6
9
PS
PL
DL
1,C
2
6
9
PS
PL
DL
1,C
2
6
9
PS
PL
DL
1,C
2
6
9
PS
PL
DL
1,C
2
6
9
PS
PL
DL
1,C
2
6
9
PS
PL
DL
CC
DML
SBL
RTE
RTE
FS
FS
SA
SE
LC
LAC
LAC
RTE T
PAC
DMS
TR
2
+
--
Tx
Rx
OV
OV
OV
OV
TX
TX
B+
B--
ENTER FUNCTION
Riser/Landing Controller
DATA
TC
TC
12V
12V
12V
1
CC
DML
SBL
RTE
RTE
FS
FS
SA
SE
LC
LAC
LAC
RTE T
PAC
DMS
TR
2
+
--
LINE 9
LINE 1
LINE 2
LINE 10
LINE 3
LINE 11
LINE 4
LINE 12
LINE 5
LINE 13
LINE 6
LINE 14
LINE 7
LINE 15
LINE 8
LINE 16
RESET
A+D+H
D
C
Battery
2 Amp Fuses
Telephone Handset
A+D+H
Digital Interface
Strobe/Sounder
C
A -Single Earth 2.5mm Mains Type Cable (Continuity)
Cable Requirements
B - 2 Wire (1 Pair) 1mm Mains Type Cable (Lock Release)
D - 8 Wire (4 Pair) CW1308 0.5mm dia Multipair Cable (Minimum)
C - 2 Wire (1 Pair) CW1308 0.5mm dia Multipair Cable (Minimum)
H - 2 Wire (1 Pair) 2.5mm Mains Type Cable (50V Power Rail)
PANEL 1
PANEL 2
3
4
5
6
7
8
9
10
11
12
13
14
15
16
1
2
3
4
5
6
7
8
9
10
11
12
13
14
15
16
1
2
1
1,C
2
6
9
PS
PL
DL
1,C
2
6
9
PS
PL
DL
1,C
2
6
9
PS
PL
DL
1,C
2
6
9
PS
PL
DL
1,C
2
6
9
PS
PL
DL
1,C
2
6
9
PS
PL
DL
1,C
2
6
9
PS
PL
DL
1,C
2
6
9
PS
PL
DL
1,C
2
6
9
PS
PL
DL
1,C
2
6
9
PS
PL
DL
1,C
2
6
9
PS
PL
DL
1,C
2
6
9
PS
PL
DL
1,C
2
6
9
PS
PL
DL
1,C
2
6
9
PS
PL
DL
1,C
2
6
9
PS
PL
DL
1,C
2
6
9
PS
PL
DL
CC
DML
SBL
RTE
RTE
FS
FS
SA
SE
LC
LAC
LAC
RTE T
PAC
DMS
TR
2
+
--
Tx
Rx
OV
OV
OV
OV
TX
TX
B+
B--
ENTER FUNCTION
Main Controller
DATA
TC
TC
12V
12V
12V
1
CC
DML
SBL
RTE
RTE
FS
FS
SA
SE
LC
LAC
LAC
RTE T
PAC
DMS
TR
2
+
--
LINE 9
LINE 1
LINE 2
LINE 10
LINE 3
LINE 11
LINE 4
LINE 12
LINE 5
LINE 13
LINE 6
LINE 14
LINE 7
LINE 15
LINE 8
LINE 16
RESET
D
Fused Spur
Digital Interface
Battery
2 Amp Fuses
A+B+D
- 3-
Digital Audio
Installation Manual
D
TRADES
Digital Audio
Magnetic Locks
with Door Contact
To PAC
Controller
A+B+C
Emergency
Override
Emergency
Override
A+B+C
PUSH
TO EXIT
B+C
Revision 1.09 Date: 05/12/2011