EasyManua.ls Logo

Sharp AR-6020NV - Page 64

Sharp AR-6020NV
151 pages
Print Icon
To Next Page IconTo Next Page
To Next Page IconTo Next Page
To Previous Page IconTo Previous Page
To Previous Page IconTo Previous Page
Loading...
AR-6020V SIMULATIONS 6-25
50
10 Paper off-center adjustment
Used to adjust the positions of copy images on copy paper and the center offset position when scanning the
document.
(Operating procedure)
When this simulation is executed, the current set value is displayed. Enter the adjustment value with the Numeric
keys and press the [START] key, and the entered value is stored and a copy is made.
When the [Interrupt] key is pressed, the entered value is saved and the machine goes into the sub code entry
standby mode. When the [CA] key is pressed, the entered value is saved and the simulation is terminated.
(When the set value is increased by 1, the position is shifted by 0.1mm.)
(Adjustment range: 1 - 99)
<Supplement>
When the adjustment value is increased, the image is shifted to the left. When the adjustment value is decreased,
the image is shifted to the right.
Supported for the installed models only. Skipped for the models without installation.
Note: When the adjustment value is too great, the outside area of shading may be scanned, resulting in black
streaks on copy paper.
When printing is made with bypass tray, use A3 paper.
When a document is scanned in the OC mode in the back surface center off-set adjustment and printing is
made in the S-D mode, the first document is scanned and then the second document is scanned
automatically.
12 Document off-center adjustment
Used to make the document scan off-center adjustment.
(Adjustment range: 1 - 99)
* When the adjustment value is increased by 1, the print image is shifted by 0.1mm to the left when the scan
start position is put on the upper side.
Switching can be made with [AUTO/TEXT/PHOTO] key, and the set value of the selected mode is displayed on
the number of copies display.
<Adjustment item>
18
Duplex copy memory reverse position
adjustment
(Only when the RSPF is installed or in
the duplex mode)
Used to adjust the memory reverse position in duplex copy. When this simulation is executed, the current correction
value is displayed.
Enter a correction value with the Numeric keys and press the [START] key, and the entered value will be saved.
(Adjustment range: 1 ~ 99)
Printing of the front surface in the S-D mode and printing of the even pages in the D-S mode are performed as
reverse memory copying from the rear edge of the document.
When, therefore, the printing position adjustment of output image is required, perform the adjustment as follows:
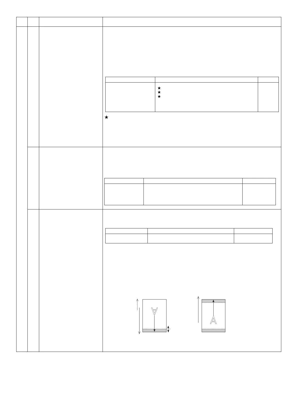
The image direction in reverse memory copying is shown in the figure below. That is, when the document scan
direction is as shown with the arrow, the output image is printed from the rear edge of scanning. If, therefore, the
print edge section is shifted, set the reference chart with the reference position at the rear edge and use this
simulation to change the set value in order to adjust the print lead edge position.
Since printing is started at the print start position and performed from the last, saved data in the memory to the head
data, the lead edge position of an image is adjusted by changing the last data position saved in the memory.
Note:A document is scanned in the OC mode. When printing is made in the S-D mode, the first document is
scanned and then the second document is automatically scanned.
Main
code
Sub
code
Contents Details of operation
LED Adjustment mode Default
AUTO, 1st tray indicator
AUTO, 2nd tray indicator
AUTO, 3rd tray indicator
AUTO, 4th tray indicator
AUTO, Bypass tray indicator
TEXT, 1st tray indicator
Print center offset (1st tray paper feed)
Print center offset (2nd tray paper feed)
Print center offset (3rd tray paper feed)
Print center offset (4th tray paper feed)
Print center offset (Bypass tray)
2nd print center offset (1st tray paper feed)
When this mode is selected, the S-D mode is automatically set.
51
58
55
55
53
55
LED Item Default
AUTO indicator
TEXT indicator
PHOTO indicator
Platen document scan
RSPF document front scan
(Only when the RSPF is installed)
RSPF document back scan
(Only when the RSPF is installed)
56
51
51
LED Item Default
AUTO indicator
TEXT indicator
OC memory reverse output position
RSPF memory reverse output position
34
45
Document
transport
direction
Scanning lead edge
Scanning
direction
Scanning
rear edge
Scanning end position
(Scanning cut by void
(1) as default)
Paper
transport
direction
Print lead edge
Lead edge void (1)
Print start position
Rear edge void
Print rear edge

Related product manuals