EasyManua.ls Logo

Sharp CD-DK2600V - Page 30

Sharp CD-DK2600V
76 pages
Print Icon
To Next Page IconTo Next Page
To Next Page IconTo Next Page
To Previous Page IconTo Previous Page
To Previous Page IconTo Previous Page
Loading...
CD-DK2600V
– 30 –
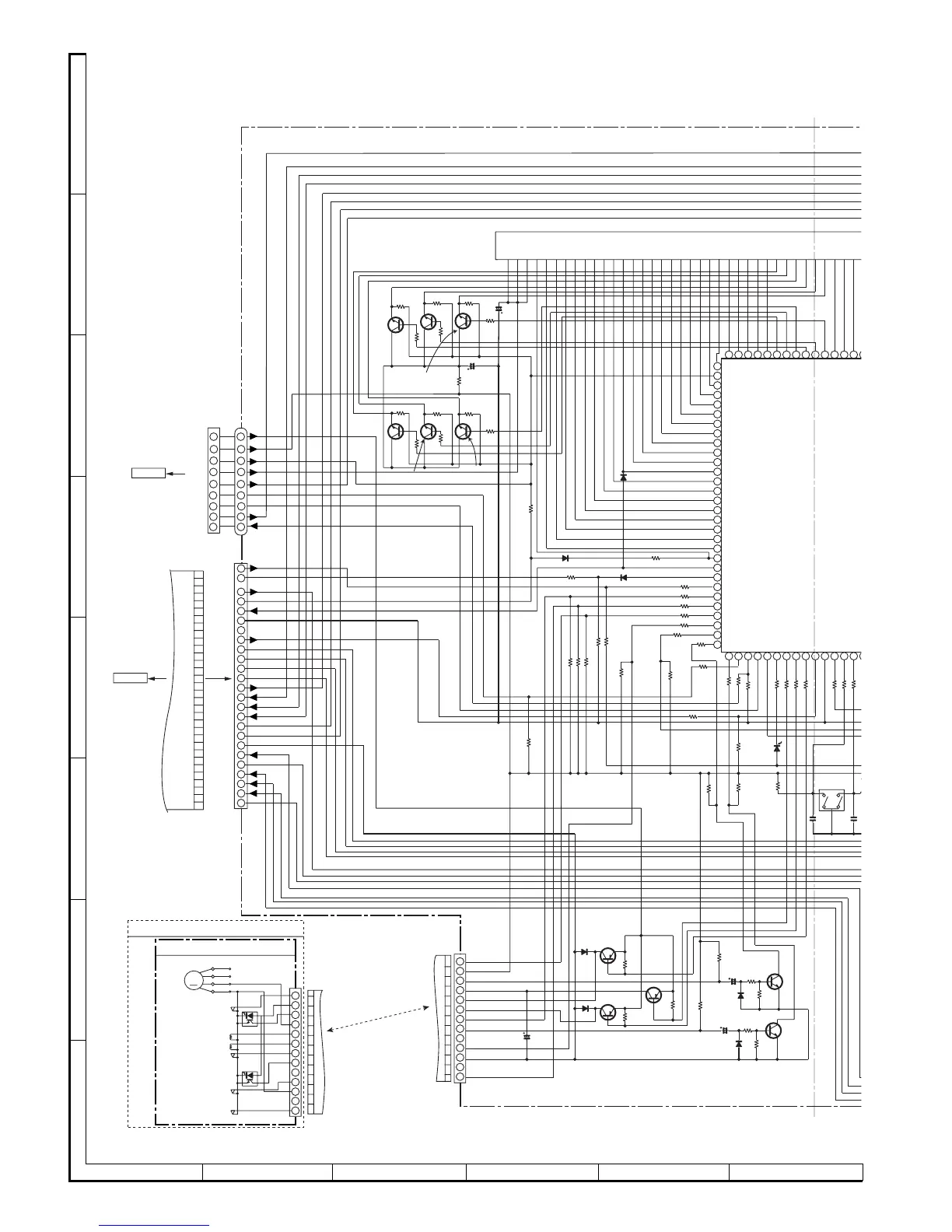
Figure 30 SCHEMATIC DIAGRAM (11/15)
A
B
C
D
E
F
G
H
1
23456
• NOTES ON SCHEMATIC DIAGRAM can be found on page 16.
TAPE MECHANISM ASS'Y(210)
D706
DS1SS133
IC701
IX0360AW
SYSTEM
MICROCOMPUT
E
R739
R738
1K
R737
1K
R736
1K
R734
2.2K
R733
2.2K
R732
2.2K
R731
1.8K
LED700
4204SRT7
TIMER LED
R746
10K
VR701
VOLUME
R
7
1
C
0
C709
0.001
Q708
KTC3199 GR
R787
470K
R786
1K
D718
DS1SS133
C708
2.2/50
R782
68K
D717
DS1SS133
R785
470K
R784
1K
C707
2.2/50
Q707
KTC3199 GR
R783
68K
R781
10K
Q706
KTA1273 Y
R776
10K
R744
10K
R743
10K
R788
4.7K
R726
10K
R727
1K
R789 10K
R729
1K
R719
1K
R718
1K
R735
1K
R717
1K
R716
1K
R715
1K
R713
1K
R712
1K
R714
1K
R710
1K
R709
10K
D705
DS1SS133
D702
DS1SS133
FL701
BJ744GNK
C701
47/50
R703
100K
R706
1K
Q703
KTC3199 GR
C702
47/50
R707
33
Q702
KTC3199 GR
R705
1K
R702
100K
R704
1K
R701
100K
Q701
KTC3199 GR
RM712
100K
RM715
1K
Q712
KTC3199 GR
RM714
1K
RM711
100K
RM713
1K
RM710
100K
Q711
KTC3199 GR
Q710
KTC3199 GR
CNP702
C706
47/25
D714
DS1SS133
R779
10K
Q705
KTA1271 Y
Q704
KTA1271 Y
D713
DSISS133
R745
10K
R725
10K
R722
10K
R721
10K
R720
10K
R724
1K
R723
10K
CNP701
BI702
CNS702
FC702
FC702
9
9493
92
91
90
89
88
87
86
85
8483
82
81
80
79
78
77
76
75
74
73
72
71
70
69
68
67
66
65
64
63
62
61
60
59
58
57
56
55
54
53
52
51
50
49
48
47
46
45
44
43
42
41
40
39
38
37
3
KARAOKE LATCH
MIC_IN
SP RLY
OUT
FPB
FPA
T_SOL B
G7
G8
G9
G10
G11
VLOAD
P12
P13
P14
DIST0/P15
DIST1/P16
DIST2/P17
DIST3/P18
P19
P20
P21
P22
P23
MOVE VOL CTRL SW/P24
SPAN/P25
PLAY SW_B
PLAY SW_A
T1_RUN
SP_DET
AC RLY
VDD
TIMER LED
T_MOTOR
T_SOL A
SMUTE
VSS
REMOCON
JOY 0
JOG 1
DIS_OUT/SW_OUT
P11
P10
P9
P8
P7
P6
P5
P4
P3
P2
P1
G15
G14
G13
G12
M _10V
D_GND
M_GND
SP_DET
SW_OUT
T_BIAS
T_T1/T2
T_REC/PLAY
VIDEO2
C_MUTE
SR_MUTE
SPRLY
+5V
+B
+B
+B
+B
+B
+B
+B
+B
+B
+B +B
+B
+B +B
+B
+B
+B
+B
P25
P24
P23
P22
P21
P20
P19
SPEANA0
T1_RUN
M_GND
SPEANA1
T_SOL A
T_SOL B
+12V(M)
T2_RUN
PLAY SW_A
PLAY SW_B
FPA
FPB
SW_5V
T2_RUN
M_GND
F
UN SW_5V
SPEANA2
SPEANA3
D_GND
VLOAD
SW_5V
MIC IN
KARAOKE LATCH
M_10V
AC.RLY-CON
SPN
S_MUTE
-20dB BATT
VF2
VF1
DP_REQ
DO
CLK
CE
DI
F
F
G11
G10
G09
G08
G07
G12
G13
G14
G15
P1
P2
P3
P4
P5
P6
P7
P8
P9
P10
P11
P12
P13
P14
P15
P16
P17
P18
CD CLAM SW
8
9
7
5
4
3
2
3
6
5
2
1
6
4
8
9
7
1
3
25
25
24
23
20
4
1
2
22
21
19
18
17
16
15
14
13
12
11
10
9
8
7
6
5
56
55
54
53
52
51
50
49
48
47
44
43
42
41
40
39
38
37
36
35
34
33
32
31
30
29
28
27
26
25
24
23
16
15
14
13
12
11
4
6
3
2
1
1
13
1
13
5
7
8
9
10
11
12
13
1
CNP602
TO MAIN PWB
P27 9 - A
CNP804
TO POWER
PWB
P32 1 - G
2
4
1
3
5
6
7
8
9
10
11
12
13
- -
B
A
+
M
TAPE MECHANISM PWB-E
MM1
TAPE
MOTOR
SOLM1
SOLENOID
SOLM2
SOLENOID
SWM2
T2 PLAY
SWM4
R.PLAY
SWM1
T1 PLAY
SWM3
F.PLAY
PH1
PH2
R728
1K
FC701

Related product manuals