EasyManua.ls Logo

Sharp CD-G10000 - Page 61

Sharp CD-G10000
140 pages
Print Icon
To Next Page IconTo Next Page
To Next Page IconTo Next Page
To Previous Page IconTo Previous Page
To Previous Page IconTo Previous Page
Loading...
CD-G10000/CP-G10000S
6 – 2
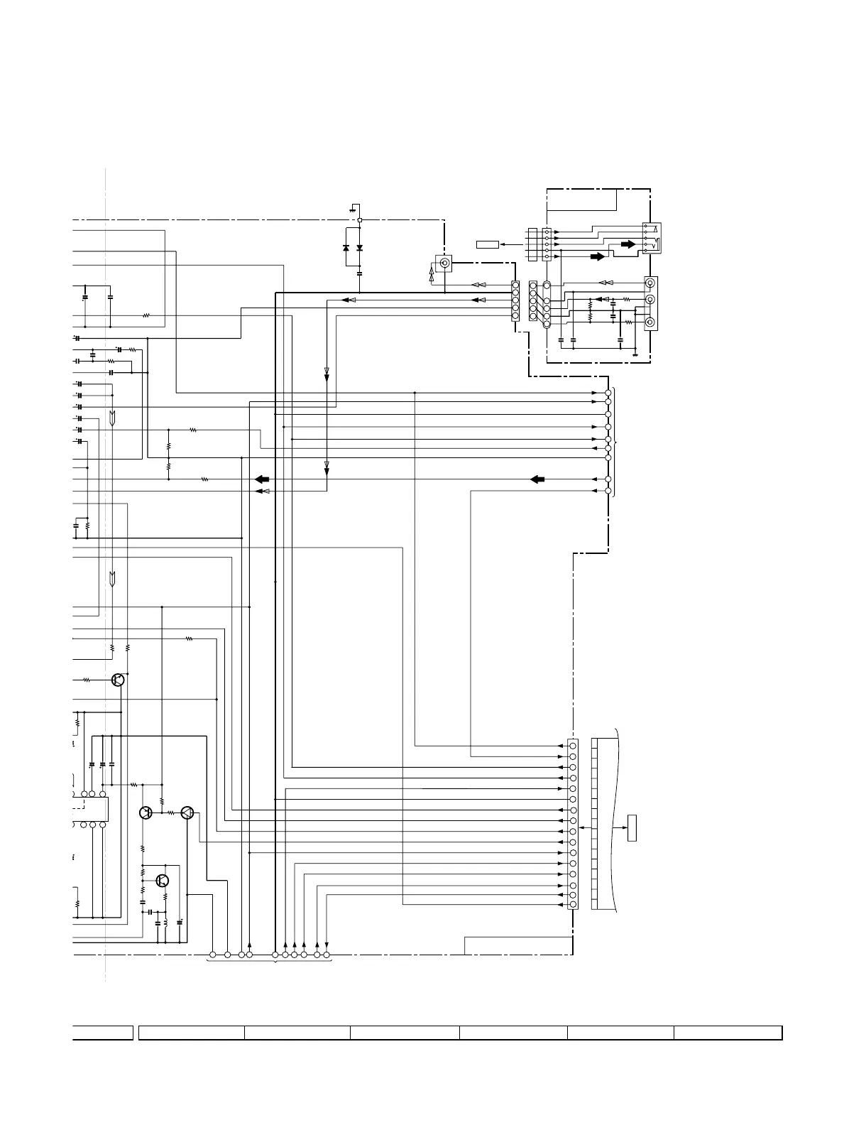
Figure 6-2 SCHEMATIC DIAGRAM (2/12)
0V
0V
0V
0V
11.6V
0V
0.7V
C691
JK690
220K
0
220K
KTC3875 GR
10K
KTA1504 Y
10K
820K
KRC104 S
47/25
330 µH
R145
4.7
KTC3203 Y
0.039(ML)
0.0082
0.047(ML)
22K
47K
82(1/2W)
220
4.7K
8.2K
8.2K
10K
10K
22/25
220/10
220/10
0.0027
4.7K
0.022
220/16 0.022
1K
47K
47/25
47/25
10K
10K
1/50
1/50
1/50
1/50
4.7/50
1/50
0.18
0.22
1/50
13
14
15
6
12
11
10
TAPE_A_GND
A+10V
REC_R
CE
TUN_R
AGND
SW_5V
AGND
CLK
DGND
A+10V
TUN_L
SP_RLY
SP_DET
M_+13
+B_PROTECT
DI
DO
+B
+B
A+10V
REC_L
D_GND
M_GND
SW_5V
S_MUTE
M_+13V
P6-4 10-H
TO TUNER SECTION
K
K
Nor/CrO2
RIPPLE
ALC
ALC
Vcc
+B_PROTECT
- 20dB
SP_DET
D_GND
SP_RLY
REC/PLAY
T_T1/T2
T_BIAS
CLK
DI
CE
DO
2
1
4
5
3
5
12
7
10
15
14
13
11
6
P6-5 1-D~H
TO POWER SECTION
16
8
9
4
1
2
3
MAIN PWB-A1 (1/3)
MUTING
1
23
SWITCHING
BIAS
BIAS OSC
15
19 14
16 10 13
9745
CNP701A
P6-7 2-F
TO DISPLAY PWB
1
16
24
26
14
25
23
22
16
21
9
DS1SS133DS1SS133
1
2
3
4
5
1
3
4
5
6
P6-6 11-B
TO POWER PWB
CNP901
GAME INPUT
PWB-B2
5
1
M_+13V
SP_RLY
R-CH
GND
L-CH
6.8K
390P
6.8K
390P
33K
33K
VIDEO IN
CHASSIS
AUX/VIDEO
R-CH
L-CH
0.0010.001
0.01
+B
+B
+B
+B
+B
+B
+B
+B
R135
C131
C140
L103
Q111
C139
C137
R144
R143
CNP603
C693
0.01
R142
Q109
R141
R140
Q110
R158
C133
C134
C135
R134
C132
R641
R643
R644
R642
C624
C622
C620
C618
C616
C614
C606
C612
R606
C608
R604
C610
R603
C603
C601 C602
R608
Q107
R137
R136
JP608
R139
C138
CNP701B
FFC701
JK691
VIDEO OUT
D691D690
GAME
INPUT
WTM901
FW901
CNS603
BI603
R690 C690
R691
R693
R692
HEADPHONES
JK692
C694C695
C696
6
7
8 9 10 11 12
jomi

Related product manuals