EasyManua.ls Logo

Sharp KH-6V08FT00-EU - Page 88

Sharp KH-6V08FT00-EU
98 pages
Print Icon
To Next Page IconTo Next Page
To Next Page IconTo Next Page
To Previous Page IconTo Previous Page
To Previous Page IconTo Previous Page
Loading...
CZ -8-
Elektrické zapojení desky
Než budete s elektrickým zapojením
pokračovat, zkontrolujte, zda přípust-
zatížení systému a zásuvky odpo-
vídá maximálním hodnotám na varné
desce.
Elektrická instalace a napájecí konek-
tor musí být uzemněny a musí splňo-
vat bezpečnostní směrnice.
Není-li k dispozici žádný okruh a spí-
nač s pojistkou, je třeba, aby je zku-
šený elektrikář nainstalovat ještě před
zapojením varné desky.
Spínač s pojistkou musí být po insta-
laci varné desky snadno dostupný.
Nepoužívejte adaptéry, rozdvojky a/
nebo prodlužovací kabely.
Tento spotřebič splňuje požadavky
následujících směrnic EEC:
1. Sklokeramická deska - EEC/73/23
a 93/68, EEC/89/336 související s in-
terferencemi,
2. EEC/89/109 týkající se kontaktu s po-
travinami.
Do napájecího okruhu je třeba nain-
stalovat jistič okruhu s mezerou mezi
kontakty minimálně 3 mm, výkonem
20 A.
V případě sklokeramické desky s do-
tykovým ovládáním musí být kabel
H05VV-F 3X1,5 mm² / 60227 IEC 53.
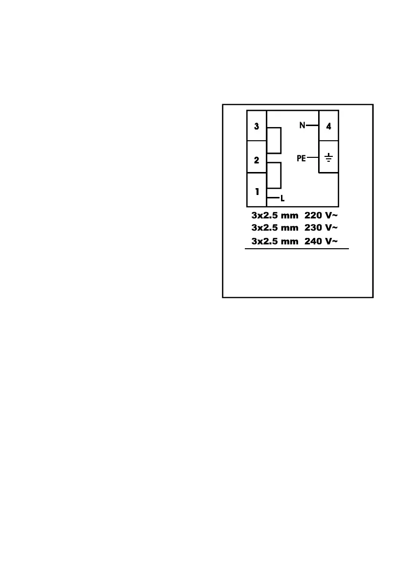
Nákres zapojení naleznete v zadní
části spotřebiče.
Během instalace používejte izolova-
kabely. Nesprávné zapojení může
váš spotřebič poškodit. Na takové
škody se nevztahuje záruka.
Všechny opravy na zařízení musí
provést zaměstnanci autorizovaného
servisu nebo kvalikovaný elektrikář.
Před každou údržbou spotřebič od-
pojte. Chcete-li provést opakované
zapojení, postupujte podle nákresu
zapojení.
* This appliance must be earthed.
* For this connetion a power lead
of wire type H05V V-F should be
used.
2
2
2
* Tento spotřebič musí být
uzemněný.
* Pro toto připojení je třeba použít
kabel typu H05VV-F.

Related product manuals