EasyManua.ls Logo

Sharp LC-20E1H - Page 10

Sharp LC-20E1H
72 pages
Print Icon
To Next Page IconTo Next Page
To Next Page IconTo Next Page
To Previous Page IconTo Previous Page
To Previous Page IconTo Previous Page
Loading...
10
LC-20E1H
LC-20E1M
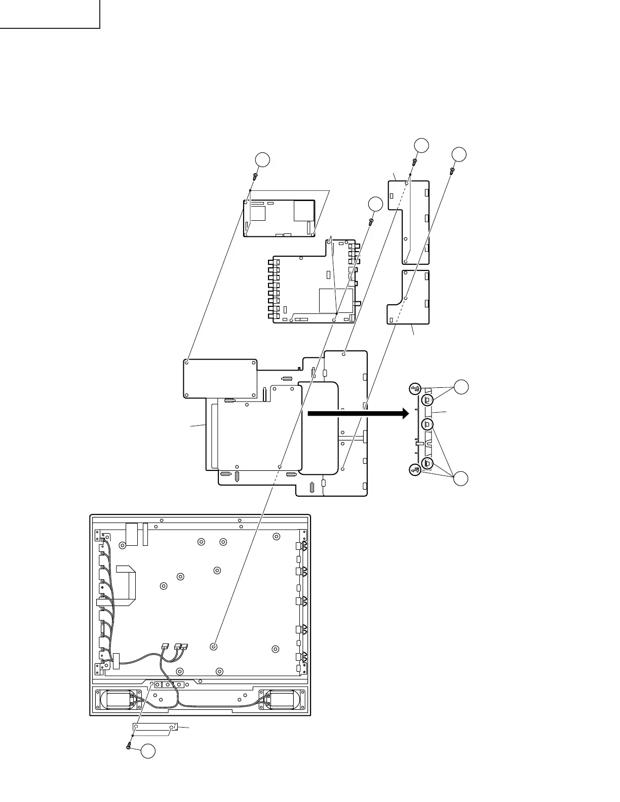
10. Remove the inverter-A PWB fixing screws (2 pcs.).
11. Remove the inverter-B PWB fixing screws (1 pc.).
12. Remove the digital PWB fixing screws (3 pcs.).
13. Remove the analog PWB fixing screws (3 pcs.) and detatch the chassis frame cover fixing
hooks.
14. Remove the R/C, LED PWB fixing screws (2 pcs.).
R/C, LED PWB
13
13
Chassis
Frame Cover
Chassis Frame
Inverter-A
PWB
Inverter-B
PWB
Digital PWB
Analog PWB
10
11
13
12
14

Related product manuals