EasyManua.ls Logo

Sharp LC-60LE650U - Main Unit Schematic Diagrams

Sharp LC-60LE650U
206 pages
Print Icon
To Next Page IconTo Next Page
To Next Page IconTo Next Page
To Previous Page IconTo Previous Page
To Previous Page IconTo Previous Page
Loading...
LC-60/70LE650U/C6500U/LE657U, LC-60/70LE755U/LE757U/LE857U/C7500U
2 – 2
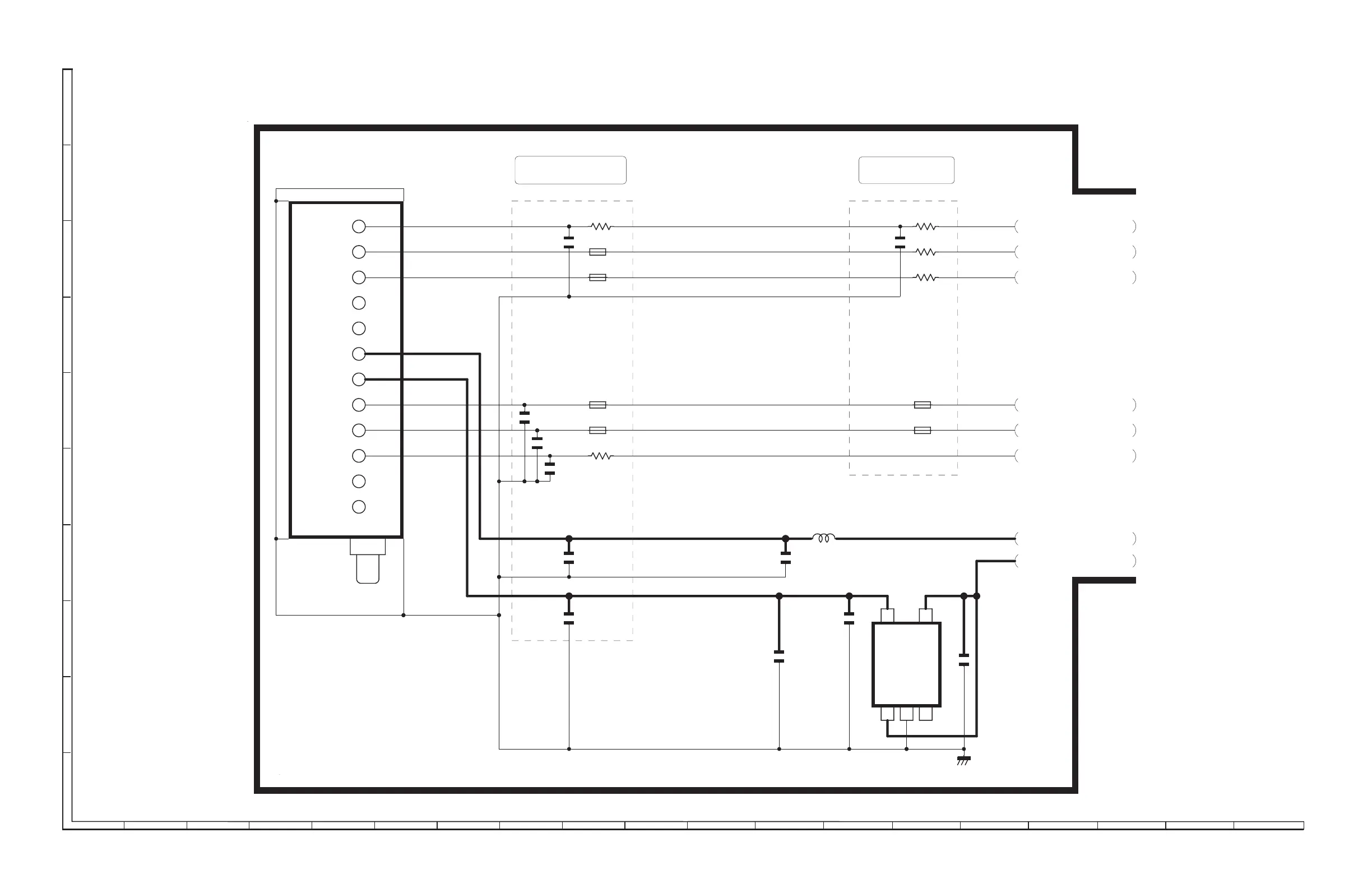
[2] SCHEMATIC DIAGRAM
1
23
1097654
8
J
A
B
C
D
E
F
G
H
I
1311 191816151412 17
D+3.3V
IF+3. 3V
TU_SCLK
D__IF -
D__IF +
IF___AG C
D_IF +
D_IF -
N_T UN_R ST
SDA2__TUNER
S CL 2__TU NE R
IF__ AG C
IF+1. 8V
T U_SDAT A
N_TU_RESET
TUN_IFN
004
C1124
0.1u
*R 1150
0
*C 1106
10P
C1196
4.7u
10V
KZA761WJQZ
10uH
L1107
VP
3479A18P
1
ON
2
GND
3
N.C
4
Vin
5
Vout
SCL2_TUNER
004
D+3.3V
010
TUN_IFP
004
R1101
1K
*C 1108
10P
*R 1151
10K
SDA2_TUNER
004
N_T UN_R ST
004
CPU_IF_AGC
004
*C 1123
0.047u
C1127
10u
16V
KZA510WJPZ
C1110
0.01u
25V
C1195
4.7u
10V
KZA761WJQZ
*R 1149
0
*C 1109
0.047u
10V
C1185
0.01u
25V
*C 1129
10u
16V
KZA510WJPZ
*R 1104
10K
M+2.3V
010
*T U1104
AA083WJ QZ
123456789
10
11 12
*F B 1 1 0 5
0241TA
*F B 1 1 0 6
0241TA
*F B 1 1 0 9
0241TA
*F B 1 1 1 0
0241TA
*F B 1 1 1 2
0241TA
*F B 1 1 1 1
0241TA
DUNTK F953WE 06
IC1109
US
ATS C-HNIM
MAIN1(T UN E R )
NearTuner NearSOC
TOMAIN4(CPU)
TOMAIN4(CPU)
TOMAIN10(POWER )
MAIN Unit-1

Table of Contents

Related product manuals