EasyManua.ls Logo

Sharp MX-2610N - Page 155

Sharp MX-2610N
191 pages
Print Icon
To Next Page IconTo Next Page
To Next Page IconTo Next Page
To Previous Page IconTo Previous Page
To Previous Page IconTo Previous Page
Loading...
MX-3610N ADJUSTMENTS AND SETTINGS 4 – 79
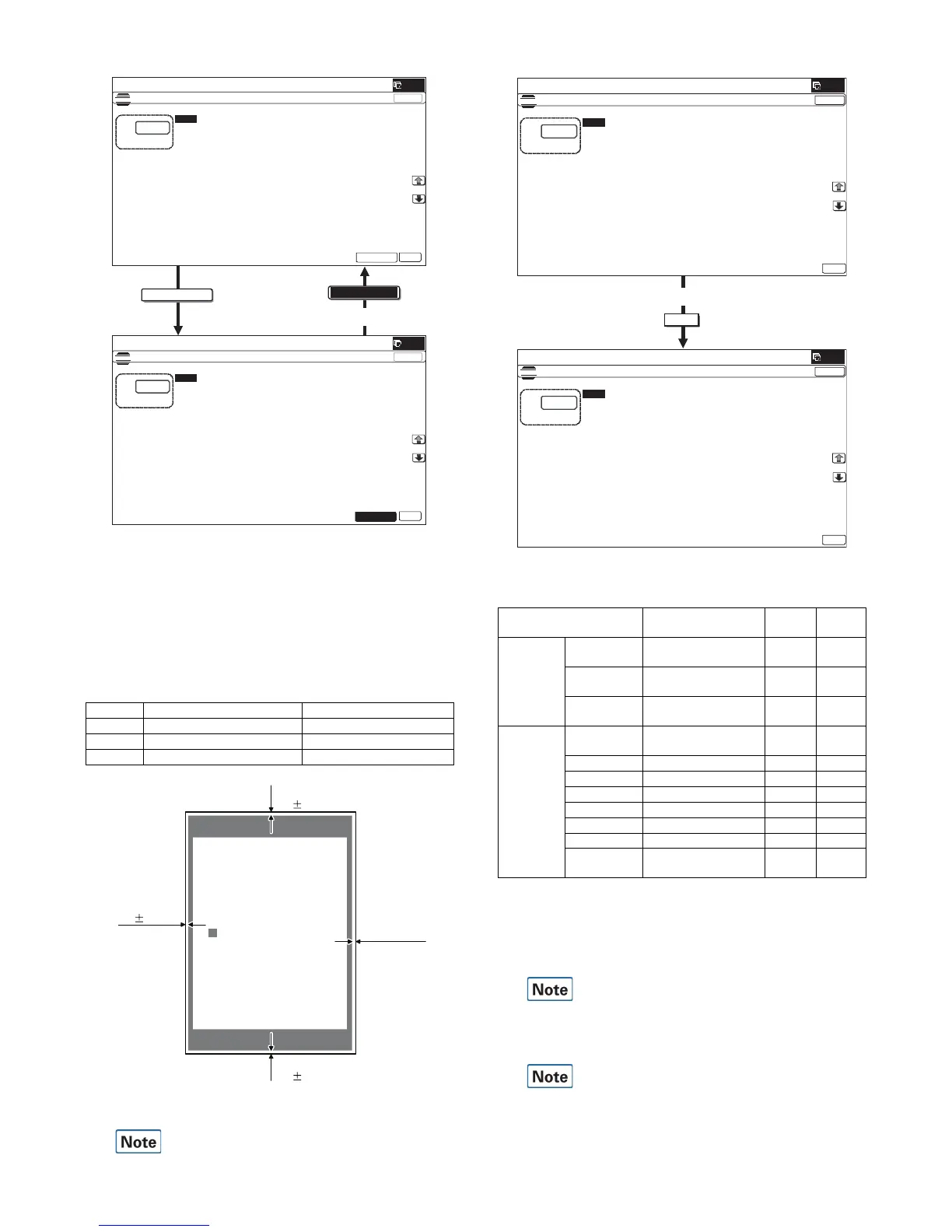
1) Enter the SIM 50-10 mode.
2) Set A4 (11 x 8.5") paper to all the paper feed trays. Select an
adjustment item of the target paper feed tray among items B -
N and enter the adjustment value. Then select item "O" to
select the paper feed tray which is to be used for executing
test printing.
3) Press [EXECUTE] key.
The adjustment pattern is printed.
4) Check the adjustment pattern to confirm that the items below
are in the range of the standard values.
If the above condition is not satisfied, or if it is set to a desired
condition, execute the simulation 50-1.
Feed paper from all the paper feed trays to confirm.
5) Enter the SIM 50-1 mode.
6) Select an adjustment item (DENA, DENB, FRONT/REAR) with
the scroll key, enter the adjustment value, and press [OK] key.
When the adjustment value is increased, the void area is
increased. When the adjustment value is decreased, the void
area is decreased.
When the adjustment value is changed by 1, the void area is
changed by 0.1mm.
The adjustment value and the actual void area are related as
follows:
Adjustment value/10 = Actual void area
When the amount of the rear edge void is different between
each paper feed tray, change the adjustment value of item
(DENB-XXX) in SIM50-1 and adjust.
The adjustment item (DENB) have a effect on the paper of all
paper feed tray.
Content Standard adjustment value
X Lead edge void area 4.0 1.0mm
Y Rear edge void area 2.0 - 5.0mm
Z1/Z2 FRONT/REAR void area 2.0 2.0mm
EXECUTE
End of print
EXECUTE
ǂǂǂ6,08/$7,21ǂǂ12
7(67
3$3(5&(17(52))6(76(783

˷˹
˖%.0$*
$˖
˖0$,10)7
%˖
˖0$,1&6
&˖
˖0$,1&6
'˖
˖0$,1&6
)˖
˖0$,1&6
(˖
˖0$,1/&&
*˖
˖0$,1$'8
+˖
˖68%0)7
,˖
˖68%&6
-˖
˖68%&6
.˖
˖68%/&&
/˖
2.

&/26(
(;(&87(
ǂǂǂ6,08/$7,21ǂǂ12
7(67
3$3(5&(17(52))6(76(783

˷˹
˖%.0$*
$˖
˖0$,10)7
%˖
˖0$,1&6
&˖
˖0$,1&6
'˖
˖0$,1&6
)˖
˖0$,1&6
(˖
˖0$,1/&&
*˖
˖0$,1$'8
+˖
˖68%0)7
,˖
˖68%&6
-˖
˖68%&6
.˖
˖68%/&&
/˖
2.

&/26(
(;(&87(
X
Y
Z2
2.0
4.0 1.0mm
2.0 - 5.0mm
Z1
2.0
2.0mm
2.0mm
Item/Display Content
Setting
range
Default
value
Void area
adjustment
DENA Lead edge void area
adjustment
1 - 99 40
DENB Rear edge void area
adjustment
1 - 99 30
FRONT/
REAR
FRONT/REAR void
area adjustment
1 - 99 20
Sub
scanning
direction
print area
correction
value
DENB-MFT Manual feed
correction value
1 - 99 50
DENB-CS1 Tray 1 correction value 1 - 99 50
DENB-CS2 Tray 2 correction value 1 - 99 50
DENB-CS3 Tray 3 correction value 1 - 99 50
DENB-CS4 Tray 4 correction value 1 - 99 50
DENB-LCC LCC correction value 1 - 99 50
DENB-ADU ADU correction value 1 - 99 50
DENB-HV Heavy paper
correction value
1 - 99 50
OK
10-key
ǂǂǂ6,08/$7,21ǂǂ12
&/26(
7(67
/($'('*($'-8670(179$/8(


˷˹
˖55&$
$˖
˖55&%&6
%˖
˖55&%&6
&˖
˖55&%/&&
'˖
˖55&%$'8
)˖
˖55&%0)7
(˖
˖/($'
*˖
˖6,'(
+˖
˖'(1$
,˖
˖'(1%
-˖
˖)52175($5
.˖
˖2))6(7B2&
/˖
2.
ǂǂǂ6,08/$7,21ǂǂ12
&/26(
7(67
/($'('*($'-8670(179$/8(


˷˹
˖55&$
$˖
˖55&%&6
%˖
˖55&%&6
&˖
˖55&%/&&
'˖
˖55&%$'8
)˖
˖55&%0)7
(˖
˖/($'
*˖
˖6,'(
+˖
˖'(1$
,˖
˖'(1%
-˖
˖)52175($5
.˖
˖2))6(7B2&
/˖
2.

Table of Contents

Other manuals for Sharp MX-2610N

Related product manuals