EasyManua.ls Logo

Sharp SJ-420S - Üzembe Helyezés

Sharp SJ-420S
98 pages
Print Icon
To Next Page IconTo Next Page
To Next Page IconTo Next Page
To Previous Page IconTo Previous Page
To Previous Page IconTo Previous Page
Loading...
48
H
LEÍRÁS
ÜZEMBE HELYEZÉS
FIGYELMEZTETÉS
Ne állítsa a hűtőszekrényt nyirkos vagy nedves
helyre, mivel ez a szigetelőanyag károsodását
eredményezheti, és ennek nyomán szivárgás
léphet fel. Ezenkívül páralecsapódás következhet
be a hűtőszekrény külső részén, ami
rozsdásodáshoz vezethet.
1. Biztosítson megfelelő szellőzési teret a hűtőgép körül!
Az ábrán a hűtőgép beszereléséhez szükséges
minimális helyigény látható. Ez nem ugyanaz, mint a
teljesítményfelvétel megállapítására használt
helyigény.
Ha nagyobb helyet hagy, akkor a hűtőszekrény
használata kisebb energiafogyasztással történhet.
Ha az ábrán jelzetteknél kisebb méretű helyen
használja a hűtőgépet, akkor benne a hőmérséklet
megemelkedhet, hangos zaj jelentkezhet, és
működési problémák következhetnek be.
2. Az elülső állítható magasságú láb segítségével
biztosítsa, hogy a hűtőszekrény stabilan és
vízszintesen álljon a padlón.
MEGJEGYZÉS:
Úgy helyezze el a hűtőszekrényt, hogy a dugasz elérhető
legyen.
Gondoskodjon róla, hogy a hűtőszekrény ne legyen kitéve
közvetlen napfénynek.
Ne helyezze a hűtőszekrényt hőtermelő készülék közelébe!
Ne közvetlenül a talajon helyezze el. Gondoskodjon
megfelelő talapzatról.
A hűtőszekrény használatbavétele előtt
Tisztítsa meg a belső felületeket langyos vízzel
benedvesített ruhával. Ha szappanos vizet használ,
gondosan törölje le vizes ruhával.
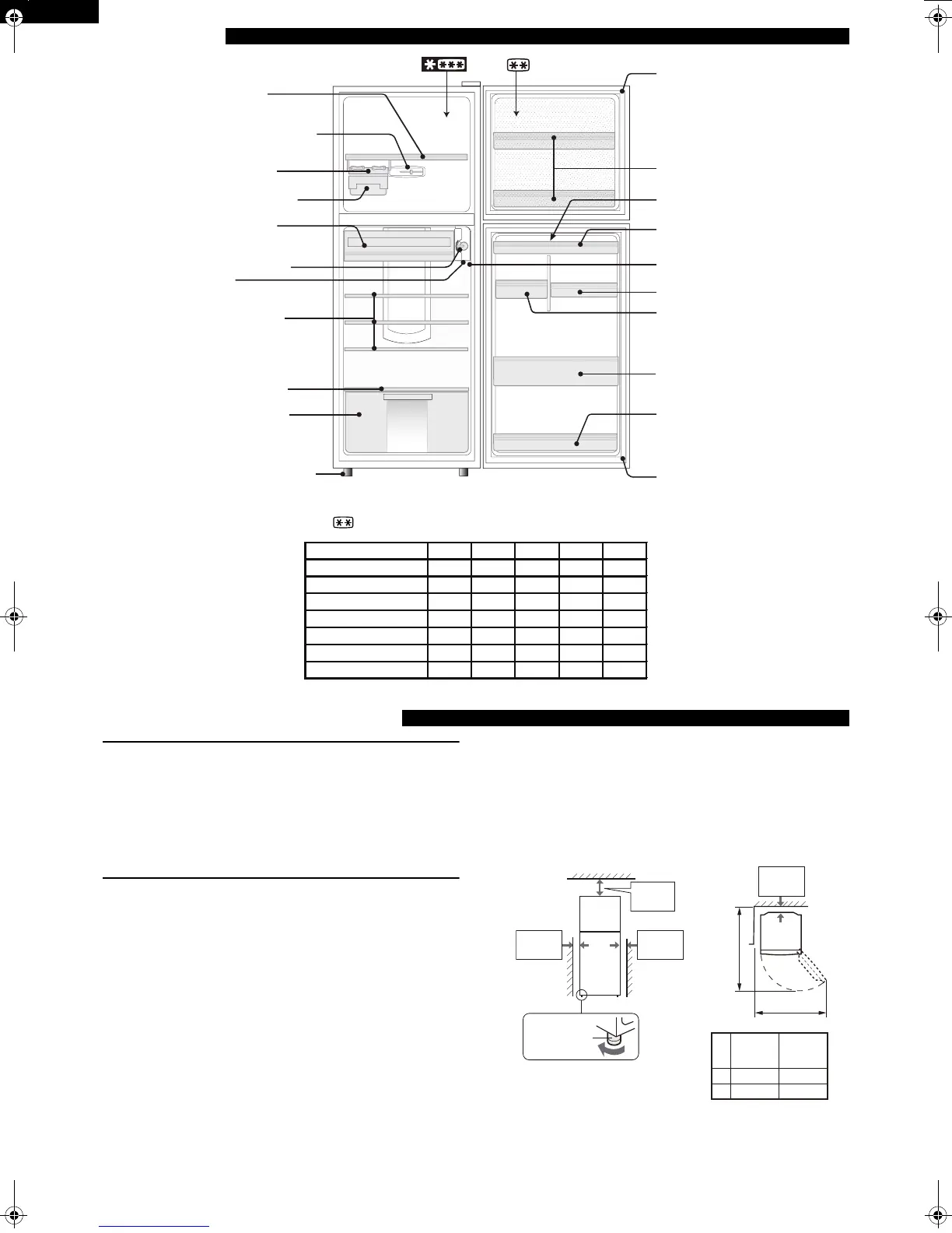
FagyasztópolcFagyasztópolc
Mágneses ajtózárMágneses ajtózár
AjtórekeszAjtórekesz*
AjtórekeszAjtórekesz*
Mágneses ajtózárMágneses ajtózár
TojástartóTojástartó*
Tojástartó rekeszTojástartó rekesz
Világítás kapcsolójaVilágítás kapcsolója
Kis rekesz (jobb)Kis rekesz (jobb)
*
< SJ-380S >< SJ-380S >
Kis rekesz (bal)Kis rekesz (bal)
Palacktartó rekeszPalacktartó rekesz
Fagyasztó hőmérséklet-Fagyasztó hőmérséklet-
szabályozó gombjaszabályozó gombja
Hűtőszekrény hőmérséklet-Hűtőszekrény hőmérséklet-
szabályozó gombjaszabályozó gombja
VilágításVilágítás
HűtőszekrénypolcHűtőszekrénypolc
Zöldségtároló polcZöldségtároló polc
ZöldségfrissentartóZöldségfrissentartó
Állítható magasságú lábÁllítható magasságú láb
JégkockakészítőJégkockakészítő
Jégkockatartó dobozJégkockatartó doboz
Frissentartó részFrissentartó rész
*
*
A két csillaggal jelölt rész csak fagyasztott élelmiszerek tárolására szolgál.
Modell megnevezése 260S 300S 340S 380S 420S
Hűtőszekrénypolc (üveg) - 3 3 3 3
Hűtőszekrénypolc (műanyag) 2 - - - -
Zöldségtároló polc (üveg) - 1 1 1 1
Zöldségtároló polc (műanyag) 1 - - - -
Ajtórekesz 2 3 3 3 3
Tojástartó - - - 1 1
Kis rekesz (jobb) 1 1 1 1 2
a
b
90mm90mm
legalább
60mm60mm
legalább
60mm60mm
legalább
60mm60mm
legalább
SJ-380S
SJ-420S
SJ-260S
SJ-300S
SJ-340S
a
b
970mm970mm
1145mm1145mm
1065mm1065mm
1221mm1221mm
Állítható
magasságú
láb
(A991)47-51_HUN.fm Page 48 Tuesday, April 14, 2009 9:31 AM

Table of Contents

Related product manuals