EasyManua.ls Logo

Sharp SJ-420S - Enne Külmiku Kasutamist

Sharp SJ-420S
98 pages
Print Icon
To Next Page IconTo Next Page
To Next Page IconTo Next Page
To Previous Page IconTo Previous Page
To Previous Page IconTo Previous Page
Loading...
78
EST
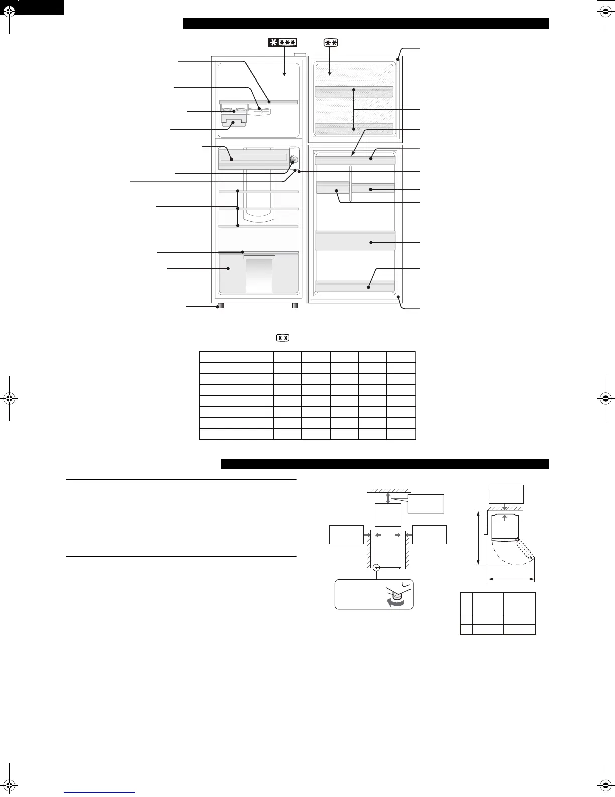
KIRJELDUS
PAIGALDAMINE
ETTEVAATUST
Ärge paigutage külmikut niiskesse või märga
kohta, kuna see võib kahjustada seadme
isolatsiooni ja põhjustada leket. Samuti võib
külmiku väliskorpusele sadestuda kondensaat,
mis põhjustab roostetamist.
1. Jätke külmiku ümber piisavalt ventilatsiooniruumi.
Joonisel on näidatud minimaalsed külmiku
paigaldamiseks vajalikud vahekaugused. Need
vahekaugused on erinevad, sõltudes külmiku
tarbitavast võimsusest.
Jättes rohkem ruumi on külmikut võimalik kasutada
väiksema energiakuluga.
Külmiku ümber joonisel näidatust väiksema ruumi
jätmine võib põhjustada temperatuuri tõusu seadmes,
tugeva müra ja rikke.
2. Reguleeritavate jalgade abil saate külmiku kindlalt ja
stabiilselt põrandale paigutada.
MÄRKUS:
Asetage külmik selliselt, et teil oleks võimalik ligi pääseda
toitepistikule.
Ärge asetage külmikut otsese päikesevalguse kätte.
Ärge paigutage külmikut kuumust kiirgava seadme kõrvale.
Ärge asetage külmikut otse maapinnale. Leidke külmikule
sobiv alus.
Enne külmiku kasutamist
Peske külmiku sisemust soojas vees niisutatud lapiga.
Seebivee kasutamisel pühkige selle jäljed veega hoolikalt
maha.
Sügavkülmiku riiulSügavkülmiku riiul
Magnetiline uksesulgurMagnetiline uksesulgur
UksetaskuUksetasku*
UksetaskuUksetasku*
Magnetiline uksesulgurMagnetiline uksesulgur
MunahoidikMunahoidik*
MunataskuMunatasku
Valgusti lülitiValgusti lüliti
Väike tasku (parem)Väike tasku (parem)
*
< SJ-380S >< SJ-380S >
Väike tasku (vasak)Väike tasku (vasak)
PudelitaskuPudelitasku
Sügavkülmiku temperatuuri Sügavkülmiku temperatuuri
reguleerimisnuppreguleerimisnupp
Külmiku temperatuuri Külmiku temperatuuri
reguleerimisnuppreguleerimisnupp
TuliTuli
KülmikuriiulKülmikuriiul
JuurviljariiulJuurviljariiul
JuurviljalaegasJuurviljalaegas
Reguleeritavad jaladReguleeritavad jalad
JääkuubikuvalmistajaJääkuubikuvalmistaja
JääkuubikukarpJääkuubikukarp
Toorproduktide sektsioonToorproduktide sektsioon
*
*
2 tärniga tähistatud sektsioon ainult külmunud toiduainete hoidmiseks.
Mudeli nimetus 260S 300S 340S 380S 420S
Külmikuriiul (klaas) - 3 3 3 3
Külmikuriiul (plast) 2 - - - -
Juurviljariiul (klaas) - 1 1 1 1
Juurviljariiul (plast) 1 - - - -
Uksetasku 2 3 3 3 3
Munahoidik - - - 1 1
Väike tasku (parem) 1 1 1 1 2
a
b
90mm
90mm
või rohkem
või rohkem
60mm
60mm
või rohkem
või rohkem
60mm
60mm
või rohkem
või rohkem
60mm
60mm
või rohkem
või rohkem
SJ-380S
SJ-420S
SJ-260S
SJ-300S
SJ-340S
a
b
970mm
970mm
1145mm
1145mm
1065mm
1065mm
1221mm
1221mm
Reguleeritavad
jalad
(A991)77-81_EST.fm Page 78 Tuesday, April 14, 2009 10:42 AM

Table of Contents

Related product manuals