EasyManua.ls Logo

Sharp SJ-420S - Antes de Utilizar el Frigorífico

Sharp SJ-420S
98 pages
Print Icon
To Next Page IconTo Next Page
To Next Page IconTo Next Page
To Previous Page IconTo Previous Page
To Previous Page IconTo Previous Page
Loading...
8
E
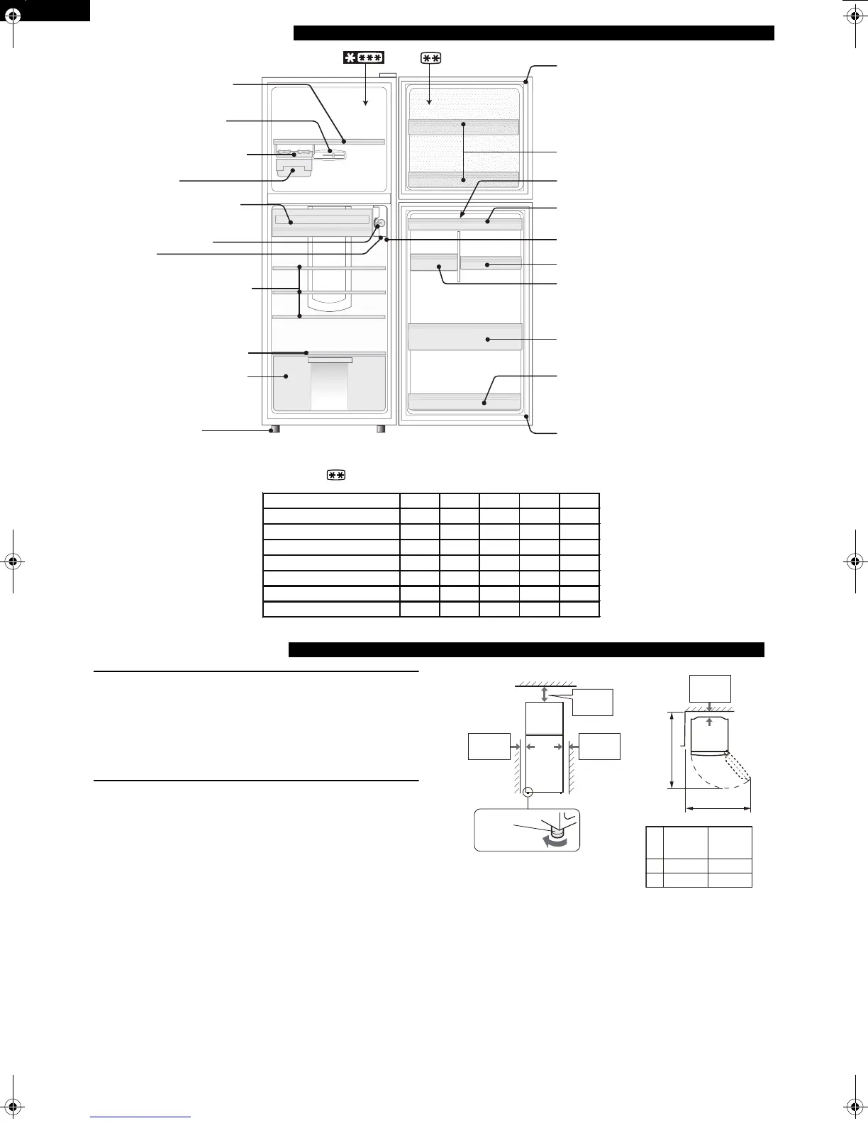
DESCRIPCION
INSTALACION
ADVERTENCIA
No instale este frigorífico en un sitio húmedo o
mojado ya que puede deteriorarse el aislante
eléctrico y se pueden producir descargas
eléctricas. Además, se puede formar condensado
en el exterior del frigorífico.
1. Mantenga un espacio de ventilación adecuado
alrededor del frigorífico.
La figura muestra el espacio mínimo requerido para la
instalación del frigorífico. Difiere del espacio en la
condición de medición de la cantidad de consumo de
energía.
Es posible utilizar el frigorífico con un menor consumo
de energía eléctrica manteniendo un espacio mayor.
Si utiliza un espacio para el frigorífico por debajo del
tamaño de la figura, podría ocasionar que la
temperatura en la unidad se eleve, ruido y fallos.
2. Utilizando la para frontale ajustable, asegúrese de que
el frigorífico quede firmemente colocado y nivelado en
el suelo.
NOTAS:
Coloque el frigorífico de modo que el enchufe sea
accesible.
Mantenga el frigorífico alejado de la luz solar directa.
No lo coloque junto a aparatos generadores de calor.
No coloque directamente en el suelo. Coloque un soporte
adecuado.
Antes de utilizar el frigorífico
Limpie las partes del interior con un paño humedecido en
agua tibia. Si emplea agua con jabón, frótelo bien con
agua para que no queden residuos de jabón.
Estante congelador
Estante congelador
Cierre magnético de la puerta
Cierre magnético de la puerta
Compartimiento de la puerta
Compartimiento de la puerta
*
Compartimiento de la puerta
Compartimiento de la puerta
*
Cierre magnético de la puerta
Cierre magnético de la puerta
Huevera
Huevera
*
Bandeja huevera
Bandeja huevera
Interruptor de la luz
Interruptor de la luz
Compartimiento pequeño (derecho)
Compartimiento pequeño (derecho)
*
< SJ-380S >
< SJ-380S >
Compartimiento pequeño (izquierdo)
Compartimiento pequeño (izquierdo)
Botellero
Botellero
Botón para control
Botón para control
temp. congelador
temp. congelador
Botón para control
Botón para control
temp. frigorífico
temp. frigorífico
Luz
Luz
Estantería del frigorífico
Estantería del frigorífico
Estante para vegetales
Estante para vegetales
Gaveta para vegetales
Gaveta para vegetales
Pie ajustable
Pie ajustable
Dispositivo para hacer
Dispositivo para hacer
cubitos de hielo
cubitos de hielo
Cubitera
Cubitera
Espacio para frescos
Espacio para frescos
*
*
La sección de 2 estrellas para almacenamiento de alimentos congelados únicamente.
Nombre de modelo 260S 300S 340S 380S 420S
Estantería del frigorífico (de vidrio) - 3 3 3 3
Estantería del frigorífico (de plástico)
2-- --
Estante para vegetales (de vidrio) - 1 1 1 1
Estante para vegetales (de plástico) 1 - - - -
Compartimiento de la puerta 2 3 3 3 3
Huevera - - - 1 1
Compartimiento pequeño (derecho) 1 1 1 1 2
Pie
ajustable
a
b
90m
90mm
o más
60m
60mm
o más
60m
60mm
o más
60m
60mm
o más
SJ-380S
SJ-420S
SJ-260S
SJ-300S
SJ-340S
a
b
970mm
970mm
1
145mm
145mm
1065mm
1065mm
1221mm
1221mm
(A991)7-11_SPA.fm Page 8 Monday, April 13, 2009 10:53 AM

Table of Contents

Related product manuals