EasyManua.ls Logo

Sharp SJ-420S - Page 53

Sharp SJ-420S
98 pages
Print Icon
To Next Page IconTo Next Page
To Next Page IconTo Next Page
To Previous Page IconTo Previous Page
To Previous Page IconTo Previous Page
Loading...
53
POLSKI
MAGYAR
ROMĐÇN
?ĺESK
SLOVENSKY
LietuviÝđ
kalb
Latvian
Eesti keel
Slovensko
RO
DESCRIERE
INSTALARE
AVERTISMENT
Nu pozitionaţi acest frigider în locuri umede,
deoarece izolaţia se poate defecta. De asemenea,
este posibil să se formeze condens pe exteriorul
frigiderului.
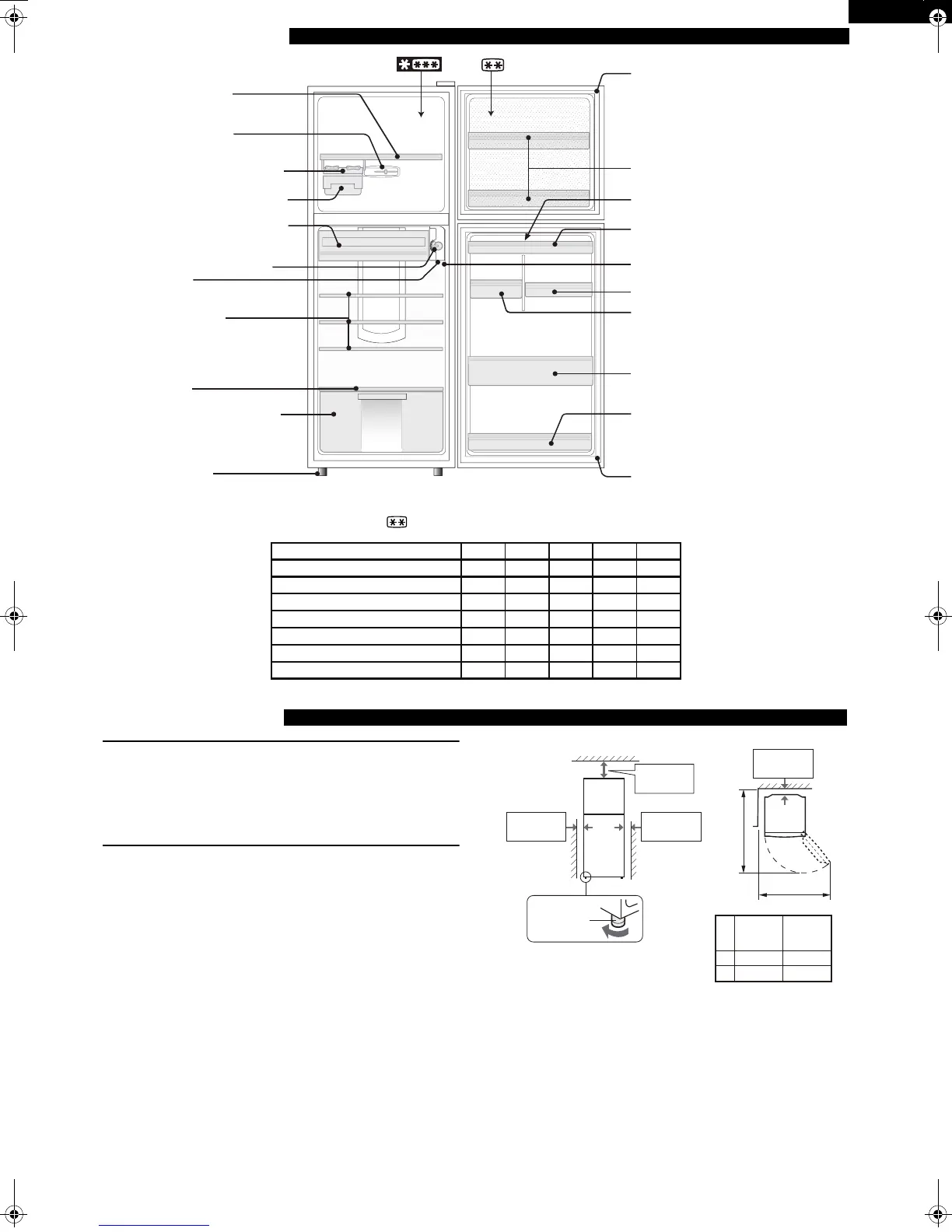
1. Asiguraţi spaţiu de ventilare adecvat în jurul frigiderului.
Imaginea arată spaţiul minim necesar pentru
instalarea frigiderului. Acesta diferă de spaţiul utilizat
la măsurarea consumului de energie electrică.
Frigiderul poate să aibă un consum de energie mai
mic dacă i se oferă un spaţiu mai mare.
Dacă folosiţi frigiderul într-un spaţiu cu dimensiuni sub
valorile din imagine, acest fapt poate să ducă la
creşterea temperaturii în produs, zgomot mare şi
defectare.
2. Folosind piciorul ajustabil din faţă, asiguraţi aşezarea
fermă şi uniform nivelată a frigiderului pe podea.
NOTĂ:
Amplasaţi frigiderul astfel încăt ştecherul să fie accesibil.
Păstraţi frigiderul în afara razelor directe de soare.
Nu aşezaţi frigiderul în apropierea surselor de căldură.
Nu aşezaţi direct pe podea. Folosiţi un stativ potrivit.
Inainte de a folosi frigiderul
Curăţaţi părţile interioare cu o cârpă înmuiată în apă
caldă. Dacă se foloseşte apă cu săpun, ştergeţi bine cu
apă.
Raft de congelatorRaft de congelator
Izolare magnetică a uşiiIzolare magnetică a uşii
Compartiment uşăCompartiment uşă
*
Compartiment uşăCompartiment uşă
*
Izolare magnetică a uşiiIzolare magnetică a uşii
Dispozitiv pentru păstrarea de ouăDispozitiv pentru păstrarea de ouă
*
Buzunar pentru ouăBuzunar pentru ouă
Întrerupător de luminăÎntrerupător de lumină
Compartimentul pentru alimente Compartimentul pentru alimente
mici (dreapta)mici (dreapta)
*
< SJ-380S >< SJ-380S >
Compartimentul pentru alimente Compartimentul pentru alimente
mici (stânga)mici (stânga)
Buzunar pentru sticleBuzunar pentru sticle
Buton de reglare a Buton de reglare a
temperaturii congelatoruluitemperaturii congelatorului
Buton de reglare a Buton de reglare a
temperaturii congelatoruluitemperaturii congelatorului
IluminareaIluminarea
Raftul frigideruluiRaftul frigiderului
Raft pentru legume Raft pentru legume
proaspeteproaspete
Sertar de legume proaspeteSertar de legume proaspete
Picior ajustabilPicior ajustabil
Dispozitiv pentru prepararea Dispozitiv pentru prepararea
cuburilor de gheaţăcuburilor de gheaţă
Cutie pentru cuburi de gheaţăCutie pentru cuburi de gheaţă
Camerã menþinere proaspãtãCamerã menþinere proaspãtã
*
*
Secţiune cu 2 stele numai pentru păstrarea alimentelor îngheţate.
Numele modelului 260S 300S 340S 380S 420S
Raftul frigiderului (din sticlă) - 3 3 3 3
Raftul frigiderului (din plastic) 2 - - - -
Raft pentru legume proaspete (din sticlă) - 1 1 1 1
Raft pentru legume proaspete (din plastic) 1 - - - -
Compartiment uşă 2 3 3 3 3
Dispozitiv pentru păstrarea de ouă - - - 1 1
Compartimentul pentru alimente mici (dreapta) 1 1 1 1 2
a
b
90mm90mm
sau mai mulsau mai mult
60mm60mm
sau mai mulsau mai mult
60mm60mm
sau mai mulsau mai mult
60mm60mm
sau mai mulsau mai mult
SJ-380S
SJ-420S
SJ-260S
SJ-300S
SJ-340S
a
b
970mm970mm
1145mm1145mm
1065mm1065mm
1221mm1221mm
Picior
ajustabil
(A991)52-56_RUM.fm Page 53 Monday, April 13, 2009 4:47 PM

Table of Contents

Related product manuals