EasyManua.ls Logo

Sharp SJ-420S - Page 68

Sharp SJ-420S
98 pages
Print Icon
To Next Page IconTo Next Page
To Next Page IconTo Next Page
To Previous Page IconTo Previous Page
To Previous Page IconTo Previous Page
Loading...
68
LT
APRAŠYMAS
INSTALIAVIMAS
ĮSPĖJIMAS
Neinstaliuokite šaldytuvo drėgnoje arba šlapioje
vietoje, nes gali sugęsti izoliacija ir atsirasti
nutekėjimai. Taip pat ant išorinės įrenginio pusės
gali susidaryti kondensatas, sukelsiantis
rūdijimą.
1. Pasirūpinkite, kad aplink šaldytuvą būtų pakankamai
vietos vėdinimui.
Paveikslėlyje parodyta, kiek minimaliai turi būti vietos
šaldytuvui instaliuoti. Nuo paliktos erdvės priklauso
elektros sunaudojimo kiekis.
Jei vietos bus daugiau, šaldytuvas naudos mažiau
energijos.
Jei šaldytuvą naudosite nepaisydami paveikslėlyje
nurodytų minimalių atstumų, šaldytuve gali pakilti
temperatūra, kilti garsus triukšmas ir įvykti gedimai.
2. Priekinė reguliuojama kojelė padės pastatyti šaldytuvą
tvirtoje ir lygiagrečioje žemei pozicijoje.
PASTABA:
Pastatykite šaldytuvą taip, kad kištukas būtų pasiekiamas.
Laikykite šaldytuvą toliau nuo tiesioginių saulės spindulių.
Nestatykite netoli šilumą generuojančių prietaisų.
Nestatykite tiesiai ant grindų. Parinkite tinkamą pagrindą.
Prieš pradedant šaldytuvą eksploatuoti
Nuvalykite vidines dalis audiniu, sudrėkintu šiltame
vandenyje. Jeigu naudojamas muilinas vanduo,
kruopščiai jį nuplaukite vandeniu.
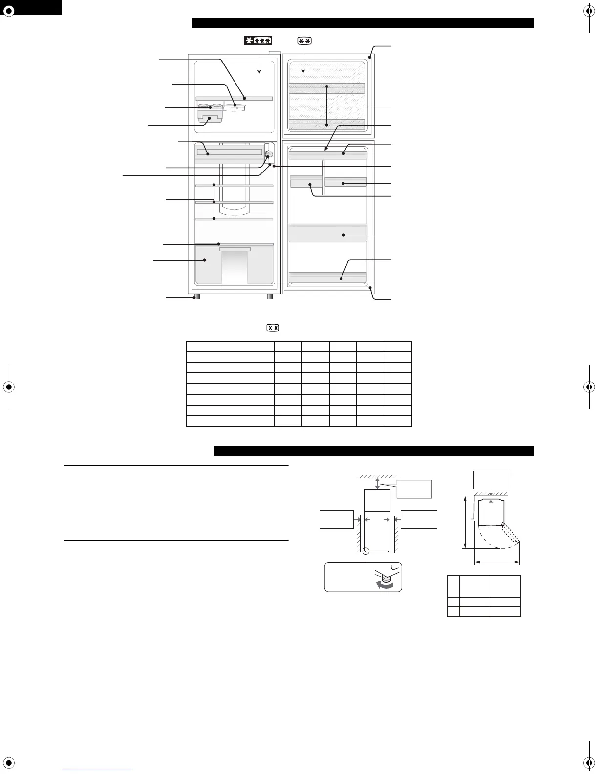
Šaldiklio lentynėlėŠaldiklio lentynėlė
Magnetinių durų tarpikliaiMagnetinių durų tarpikliai
Durų dėklasDurų dėklas
*
Durų dėklasDurų dėklas
*
Magnetinių durų tarpikliaiMagnetinių durų tarpikliai
Kiaušinių laikiklyjeKiaušinių laikiklyje
*
Kiaušinių dėklasKiaušinių dėklas
Šviesos jungiklisŠviesos jungiklis
Mažas dėklas (dešinėje pusėje)Mažas dėklas (dešinėje pusėje)
*
< SJ-380S >< SJ-380S >
Mažas dėklas (kairėje pusėje)Mažas dėklas (kairėje pusėje)
Butelių lentynaButelių lentyna
Šaldiklio temperatūros Šaldiklio temperatūros
reguliavimo jungiklisreguliavimo jungiklis
Šaldytuvo temperatūros Šaldytuvo temperatūros
reguliavimo jungiklisreguliavimo jungiklis
ŠviesaŠviesa
Šaldytuvo lentynėlėŠaldytuvo lentynėlė
Daržovių lentynėlėDaržovių lentynėlė
Daržovių dėžutėDaržovių dėžutė
Reguliuojama kojelėReguliuojama kojelė
Ledukų gamintuvasLedukų gamintuvas
Ledukų dėžutėLedukų dėžutė
Šviežių produktų skyriusŠviežių produktų skyrius
*
*
2 žvaigždučių padala skirta tik užšaldyto maisto laikymui.
Modelio pavadinimas 260S 300S 340S 380S 420S
Šaldytuvo lentynėlė (stiklinė) - 3 3 3 3
Šaldytuvo lentynėlė (plastmasinė) 2 - - - -
Daržovių lentynėlė (stiklinė) - 1 1 1 1
Daržovių lentynėlė (plastmasinė) 1 - - - -
Durų dėklas 2 3 3 3 3
Kiaušinių laikiklyje - - - 1 1
Mažas dėklas (dešinėje pusėje) 1 1 1 1 2
a
b
90mm
90mm
arba daugiau
arba daugiau
60mm
60mm
arba daugiau
arba daugiau
60mm
60mm
arba daugiau
arba daugiau
60mm
60mm
arba daugiau
arba daugiau
SJ-380S
SJ-420S
SJ-260S
SJ-300S
SJ-340S
a
b
970mm
970mm
1145mm
1145mm
1065mm
1065mm
1221mm
1221mm
Reguliuojama
kojelė
(A991)67-71_LIT.fm Page 68 Tuesday, April 14, 2009 10:16 AM

Table of Contents

Related product manuals