EasyManua.ls Logo

Siemens 3VF93 - Page 6

Siemens 3VF93
8 pages
Print Icon
To Next Page IconTo Next Page
To Next Page IconTo Next Page
To Previous Page IconTo Previous Page
To Previous Page IconTo Previous Page
Loading...
6
43,5
30821,5
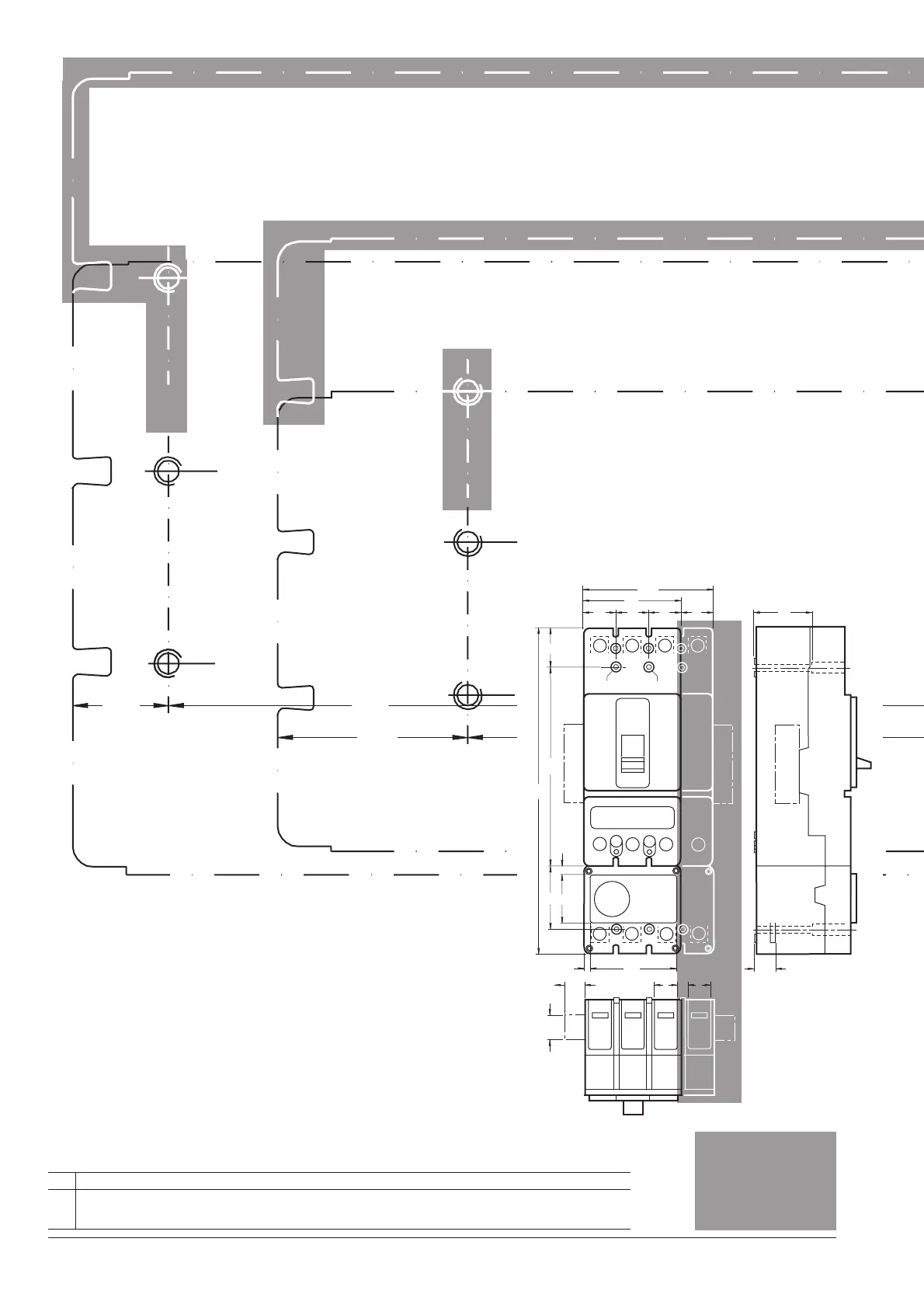
aa1bcd efghijklmno
3VF3 105 140 238,5 Ø 5 Ø 8,5 19 133,5 66,5 52,8 8,7 95 5 32 21 19 35
3VF4 105 140 348 Ø 7,5 Ø 12,5 43,5 210,5 68 52,8 8,5 95 5 60,5 21 25,5 35
3VF5 140 183 351,5 Ø 7,1 Ø 12,7 21,5 236 72 52,8 8,5 95 22 30,5 24 27 44
- 4polige Ausführung
- 4-pole version
- version tétrapolaire
- ejecución tetrapolar
- esecuzione a 4 poli
- 4-poligt utförande
bt
NS1-3065
a1
a
o
o
o
o
N
c
d
e
b
f
i
N
h
g
k
j
N
n
n
m
20,5
25,5
l