EasyManua.ls Logo

Siemens LME21.350A2 - LME22...;LME23... Connection Diagram and Control Sequence

Siemens LME21.350A2
25 pages
To Next Page IconTo Next Page
To Next Page IconTo Next Page
To Previous Page IconTo Previous Page
To Previous Page IconTo Previous Page
Loading...
19/25
Building Technologies CC1N7101en
HVAC Products 27.11.2008
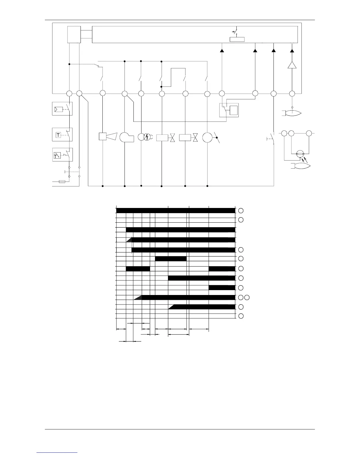
Connection diagram and control sequence LME22… / LME23…
NT
RESET
EK
FSV
ION
1
2
3
M
4
BV1
5
BV2
7
Z
10
AL
T
12
R / W
GP
STB
9
7101a02e/0708
p
a
6
LP
8
EK2
11
K1
K2/1
K3
K4
K2/2
H
Si
SA
L
N
QRC
br
bl
sw
12
12
Nur LME23...
K5
μ
C control
SB / R
W / GP
AL
LP
SA
BV1
(LR) BV2
Z
FS
tw
t1
t3n
TSA
t4
7101d02/0606
t11
t12
EK2
12
10
3
7
4
5
6
1
8
A
B
C
D
9
t3
t10
LK
M
I
11

Related product manuals