EasyManua.ls Logo

Siemens LMG21.330A27 - Internal Diagram

Siemens LMG21.330A27
16 pages
To Next Page IconTo Next Page
To Next Page IconTo Next Page
To Previous Page IconTo Previous Page
To Previous Page IconTo Previous Page
Loading...
Landis & Staefa Division CC1N7421E December 04, 1998 15/16
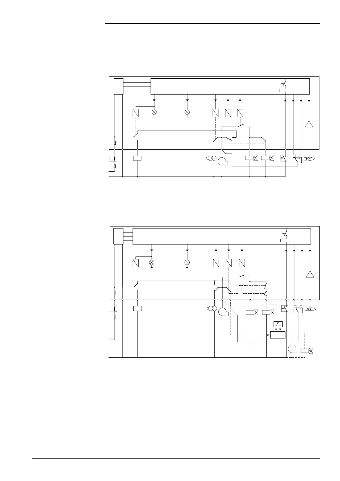
EK Lockout reset button (internal) NT Power section
FSV Flame signal amplifier Si Fuse
Internal diagram
LMG21... / LMG25...
NT
12 2
R/W/GP/SB
N
AL
K1
10
K2
7
Z
3
K3
K4
4
5
BV1
BV2
EK2
8
6
LP
11
FSV
1
FE
Control of microcontroller
7421a01e/1298
L
Si
M
RESET
EK
FS green
AL red
LMG22...
NT
12
2
R/W/GP/SB
N
AL
K1
10
K2
7
Z
3
K3
K4
4
5
BV1
BV2
EK2
8
6
LP
11
FSV
1
FE
Control of microcontroller
RESET
7421a02e/1298
9
M
LR
SA
L
EK
Si
M
BV2
FS green
AL red
Legend

Related product manuals