EasyManua.ls Logo

Siemens SED2-4/32B - 4.3.4 Power and motor terminals: Frame sizes A to F

Siemens SED2-4/32B
126 pages
Print Icon
To Next Page IconTo Next Page
To Next Page IconTo Next Page
To Previous Page IconTo Previous Page
To Previous Page IconTo Previous Page
Loading...
30/126
Siemens Building Technologies SED2 variable speed drives CM1U5192en
HVAC Products Electrical installation 01.2002
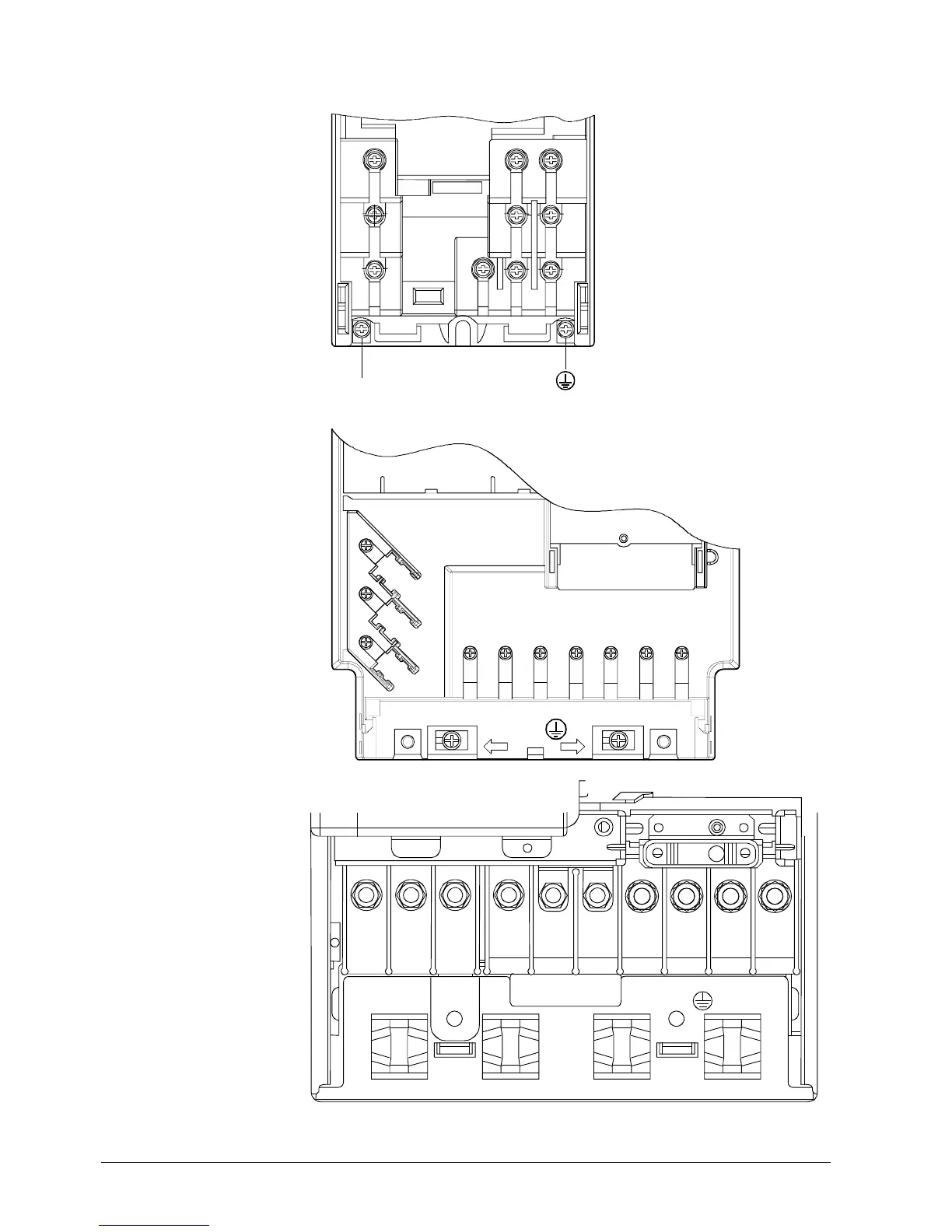
4.3.4 Power and motor terminals: Frame sizes A to F
(Ground)
PE
(Ground)
L1
L2
L3
DC+ DC-
UVW
5192Z05
DC
R+
B-
UV WDC- DC+
B+
DC
R+
B-
L3
L2
L1
PE
5192Z06
L1 L2 L3 DC- DC+
B+
DC
R+
B- U V W
PE
5192Z07
Terminal layout: Frame
size A
Terminal layout:
Frame sizes B and C
Terminal layout:
Frame sizes D and E

Table of Contents

Related product manuals