EasyManua.ls Logo

Siemens SIMATIC Rack PC IL 40 - Page 19

Siemens SIMATIC Rack PC IL 40
40 pages
Print Icon
To Next Page IconTo Next Page
To Next Page IconTo Next Page
To Previous Page IconTo Previous Page
To Previous Page IconTo Previous Page
Loading...
Commissioning
SIMATIC Rack PC IL 40, Getting Started
A5E00171493-02
2-3
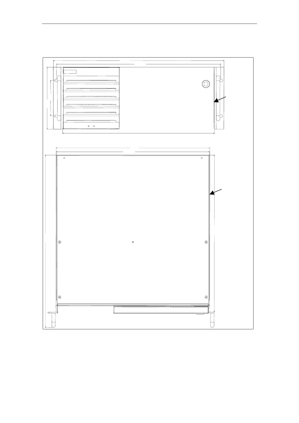
Dimensioned Drawing for installation in cabinet 19"
465
483
101
177
430
433,6
436
446
490
Upwards for
vertical
installation
Upwards for
vertical
installation

Related product manuals