EasyManua.ls Logo

Siemens SIMOTION C240 PN - Page 95

Siemens SIMOTION C240 PN
196 pages
To Next Page IconTo Next Page
To Next Page IconTo Next Page
To Previous Page IconTo Previous Page
To Previous Page IconTo Previous Page
Loading...
Connecting
5.1 Wiring
SIMOTION C
Operating Instructions, 02/2012
95
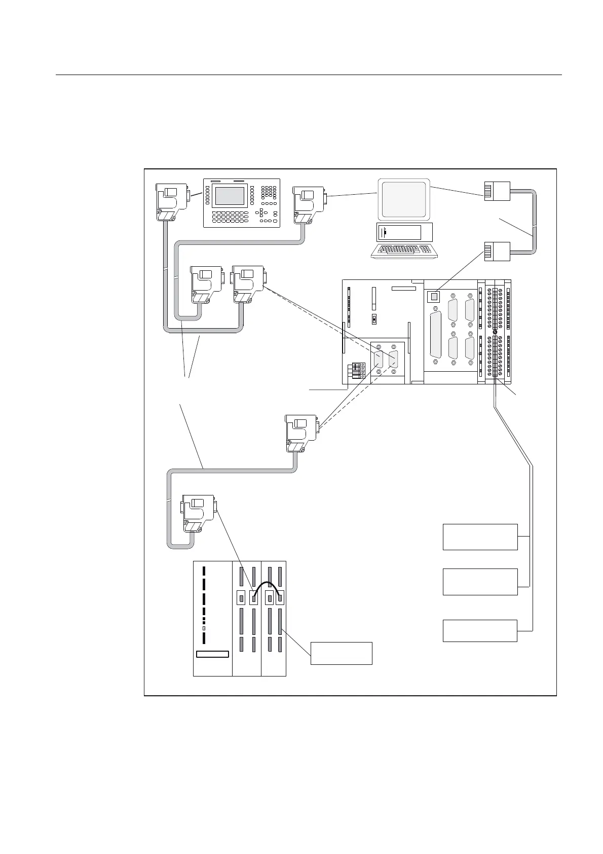
SIMOTION C with servo drive (digital connection) via PROFIBUS DP
The figure below shows how the individual components are connected to the SIMOTION C
and the servo drive (digital connection).
)'' )''
'LJLWDOLQSXWV
HJSUREH
([W9
SRZHUVXSSO\
,5
HJ6,02'5,9(XQLYHUVDO
3*3&
5($'<FRQWDFW
03
)URQW
FRQQHFWRU
352),%86'3
FRQQHFWLQJFDEOH
'LJLWDORXWSXWV
3UREH
(WKHUQHWFRQQHFWLQJ
FDEOH
;
6,02'5,9(
6,(0(16
6,027,21&
;
; ;
;;
6,(0(16
;;
;
&
05(6
6723
581
Figure 5-2 Overview of the cable connecting the SIMOTION C to the servo drive (digital connection)
- example

Table of Contents

Related product manuals