EasyManua.ls Logo

Siemens SINAMICS S120 - Page 22

Siemens SINAMICS S120
28 pages
To Next Page IconTo Next Page
To Next Page IconTo Next Page
To Previous Page IconTo Previous Page
To Previous Page IconTo Previous Page
Loading...
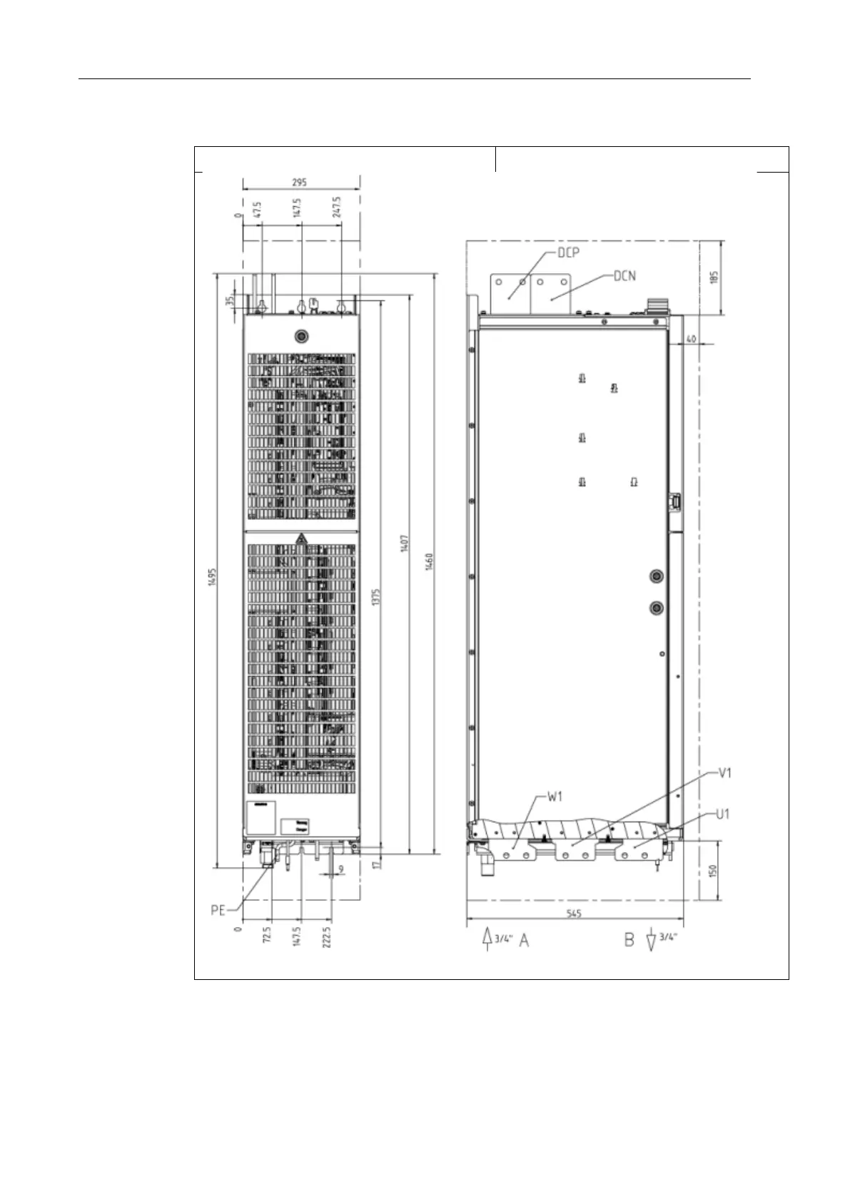
Dimensional diagrams of Active Line Modules
Instruction for installation of the liquid-cooled chassis of Sinamics S120 power units into cabinets for marine drive applications,
22 12/2016, 4BS0808-003
Table 9: Dimensional diagram of Active Line Module, Size JXL – Serial no. 6SL3335-7TE41-0AA3,
6SL3335-7TE41-4AA3, 6SL3335-7TG41-0AA3, 6SL3335-7TG41-3AA3
Front view
Side view
The ventilation clearances to be observed are characterized by the dotted line.

Other manuals for Siemens SINAMICS S120

Related product manuals