EasyManua.ls Logo

Siemens SINAMICS S120 - Dimensional Diagram of Diode Line Modules

Siemens SINAMICS S120
28 pages
To Next Page IconTo Next Page
To Next Page IconTo Next Page
To Previous Page IconTo Previous Page
To Previous Page IconTo Previous Page
Loading...
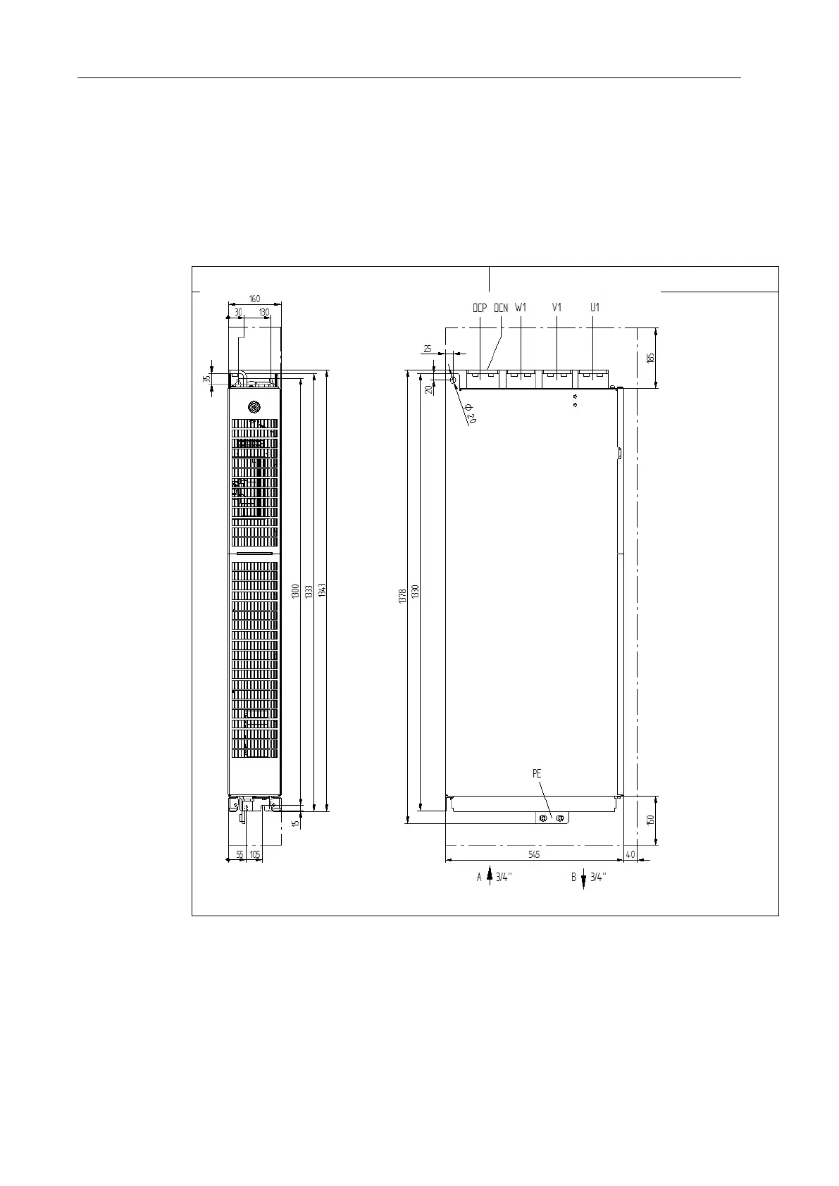
Dimensional diagrams of Diode Line Modules
Instruction for installation of the liquid-cooled chassis of Sinamics S120 power units into cabinets for marine drive applications,
24 12/2016, 4BS0808-003
9 Dimensional diagrams of Diode Line Modules
The here-following tables include the dimensional diagrams of the Diode Modules of
sizes GDL, HDL and JDL. Therefrom, also the position of the fastening holes can be
taken. More, and more detailed indications are found in the relevant equipment
manual Sinamics S120 Power units / Chassis / Liquid-cooled.
Table 11: Dimensional diagram of Diode Line Module, Size GDL
Front view
Side view
The ventilation clearances to be observed are characterized by the dotted line.

Other manuals for Siemens SINAMICS S120

Related product manuals