EasyManua.ls Logo

Siemens SINAMICS S120 - Page 26

Siemens SINAMICS S120
66 pages
To Next Page IconTo Next Page
To Next Page IconTo Next Page
To Previous Page IconTo Previous Page
To Previous Page IconTo Previous Page
Loading...
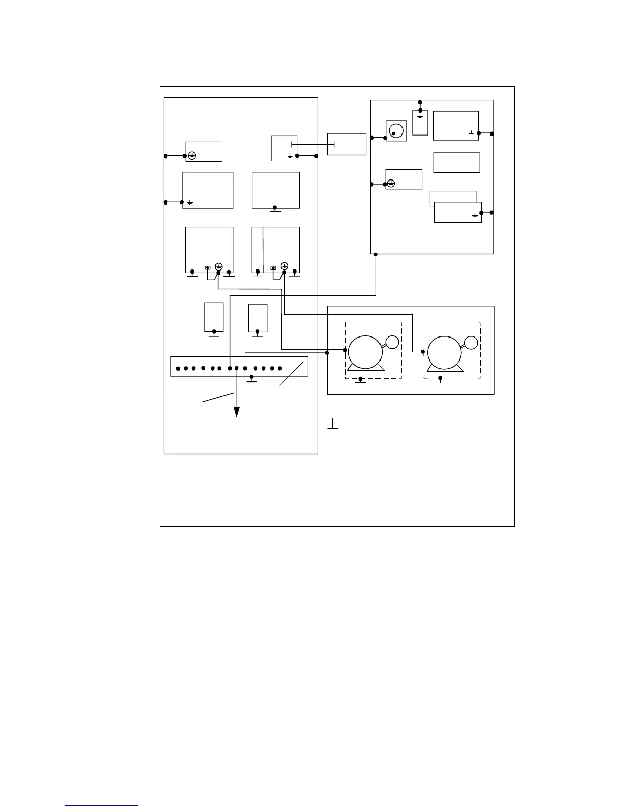
Equipotential Bonding
© Siemens AG, 2004. All rights reserved
4-26 EMC Installation Guideline – Planning Guide (EMV) – 03.2004 Edition
Metal cubicle
Hand-held
unit
Machine base
Fil-
ter
Filter
Fil-
ter
611
with anal.
control
611
with dig.
control
840C
Expansion
unit
Filter
Distr.
box
CNC full
keyboard
Operator
panel
el. handwheel
Operator panel
Central
earthing connector
Central
earthing bar
DMP
M
Enc.
M
Enc.
1), 4)
2)
Large-area, conductive connection to earthed housing
1) PE in motor cable
2) Grounding lead in cable
3) Lead required only if unit has a
frame connection
4) PE is also used as equipotential bonding
conductor
*) With I/RF module
**) With U/E module
*)
*)
**)
**)
Motor controlled by 611 A Motor controlled by 611D
DMP
3)
Mach. cont. p.
Floppy
drive
Keyboard
interface
1), 4)
X131
4)
4)
XXX
XXX
XXX
XXX
XXX
XXX
XXX
XXX
XXX
XXX
XXX
X131
Fig. 4-5 Equipotential bonding in the SINUMERIK 840C with SIMODRIVE 611

Other manuals for Siemens SINAMICS S120

Related product manuals