EasyManua.ls Logo

Siemens sinumerik fm-nc - Configuration of Components for Digitizing

Siemens sinumerik fm-nc
327 pages
Print Icon
To Next Page IconTo Next Page
To Next Page IconTo Next Page
To Previous Page IconTo Previous Page
To Previous Page IconTo Previous Page
Loading...
2
03.96
2.2 Electrical configuration
2-32
Siemens AG 2000 All Rights Reserved
SINUMERIK 840D Installation and Start-Up Guide (IAD) 04.00 Edition
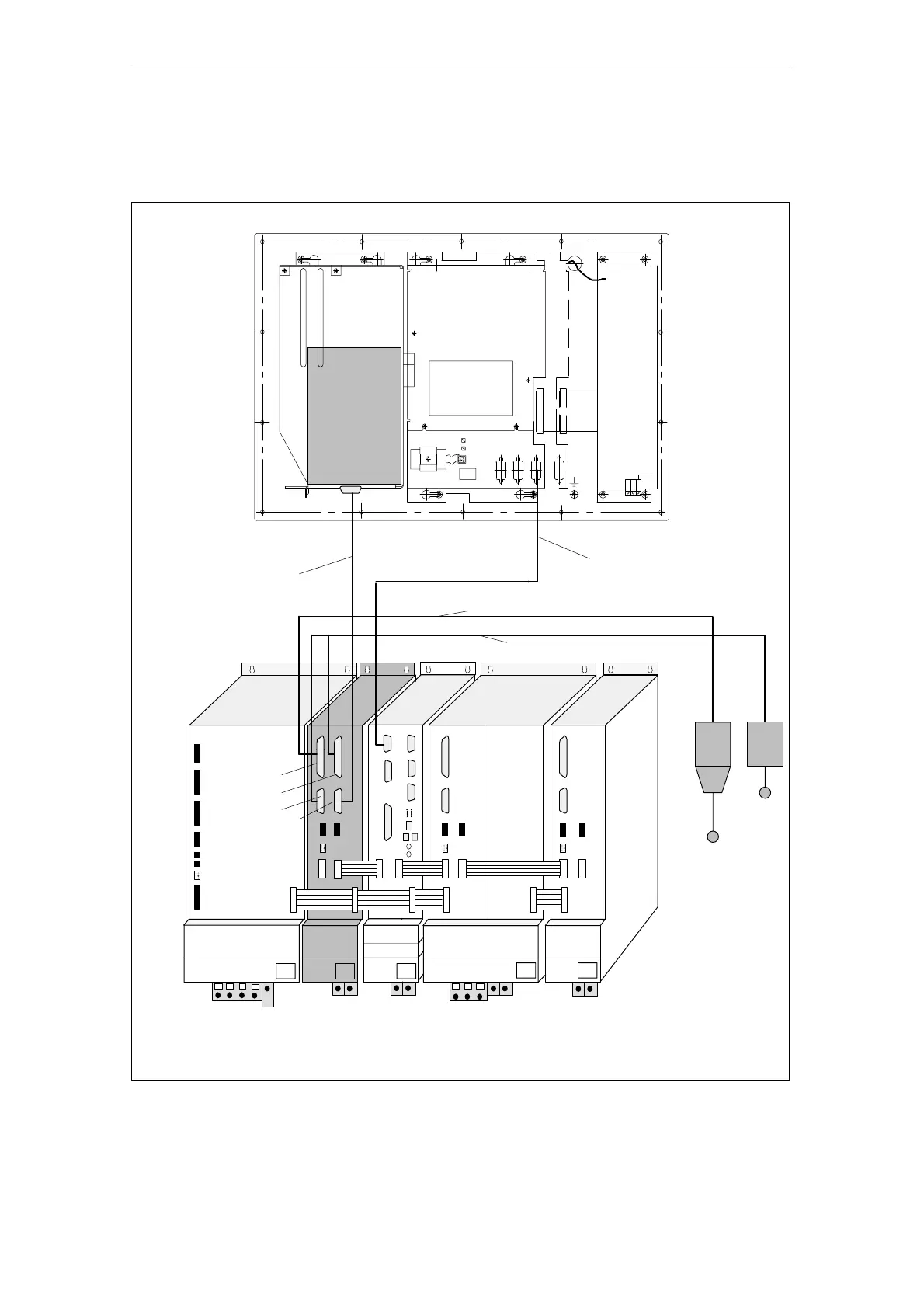
2.2.6 Configuration of components for digitizing
SIMODRIVE
NCU
MSD
FDD
SIEMENS
I/RF
Device bus
MMC
ISA
adapter
Hard disk
drive
Power supply
S1
X10
X6
X5 X4
X3
Chassis
S2
X11
Digitizing
module
Link interface
MPI cable to OP
Probe
Cable to probe
Cable from
digitizing
module to link
interface
X422
X411
X412
Laser
probe
Cable to laser probe
X421
Fig. 2-13 Configuration of components for digitizing
2 Confi
g
uration 04.95

Table of Contents

Related product manuals