EasyManua.ls Logo

Siemens SIRIUS 3RR224 Series - Dimensional Drawings; 3 RR2241 Series Dimensions; 3 RR2242 Series Dimensions

Siemens SIRIUS 3RR224 Series
14 pages
To Next Page IconTo Next Page
To Next Page IconTo Next Page
To Previous Page IconTo Previous Page
To Previous Page IconTo Previous Page
Loading...
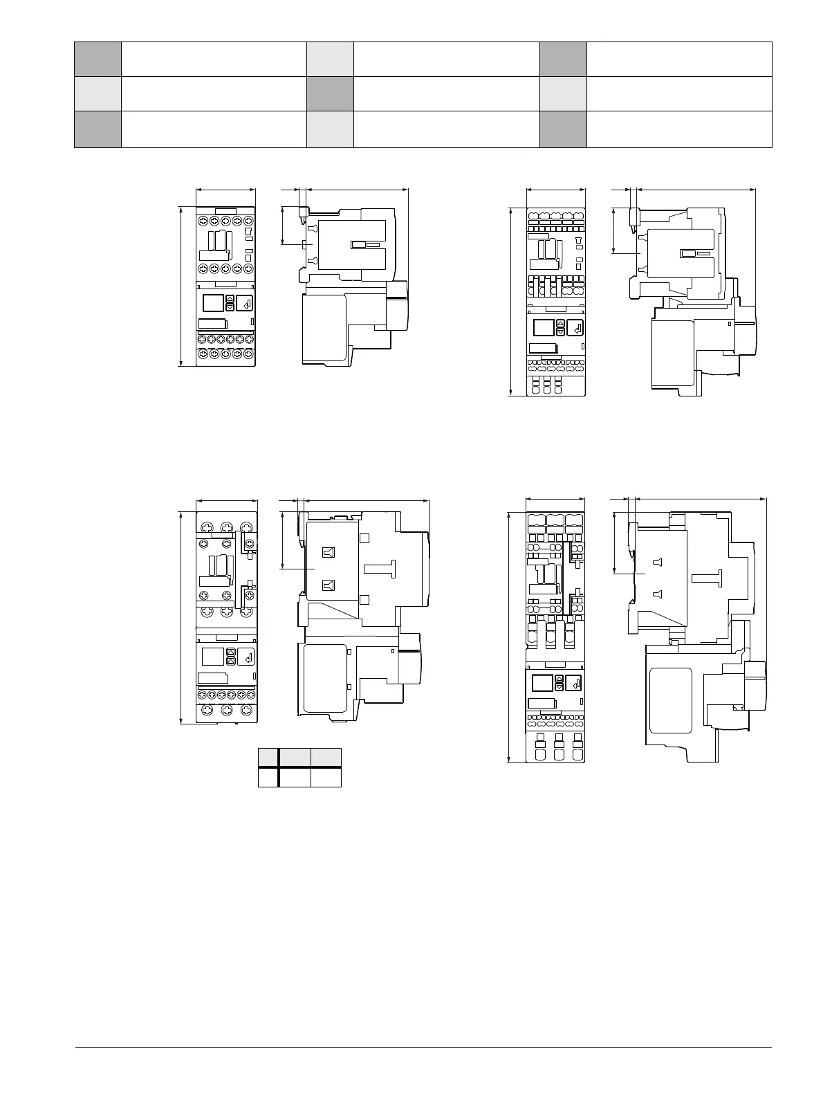
Bestell-Nr. / Order No.: 3ZX1012-0RR22-1AA1 13
DE
Maßzeichnungen
(Angaben in mm)
ES
Dibujos dimensionales
(medidas en mm)
TR
Ölçü resimleri
(Bilgiler mm olarak)
EN
Dimension drawings
(all dimensions in mm)
IT
Disegni quotati
(indicazioni in mm)
РУ
Размерные эскизы
(Данные в мм)
FR
Encombrements
(indications en mm)
PT
Desenhos cotados
(dimensões em mm)
中文
尺寸图
( 单位:mm)






D









3RR2242-2F.30
3RR2241-1F.30 3RR2241-2F.30
3RR2242-1F.30
AC DC
a 92 102

Related product manuals