EasyManua.ls Logo

SilverStone SG11 - Page 22

SilverStone SG11
44 pages
Print Icon
To Next Page IconTo Next Page
To Next Page IconTo Next Page
To Previous Page IconTo Previous Page
To Previous Page IconTo Previous Page
Loading...
Component Size Limitations
19
(2) PSU limitation
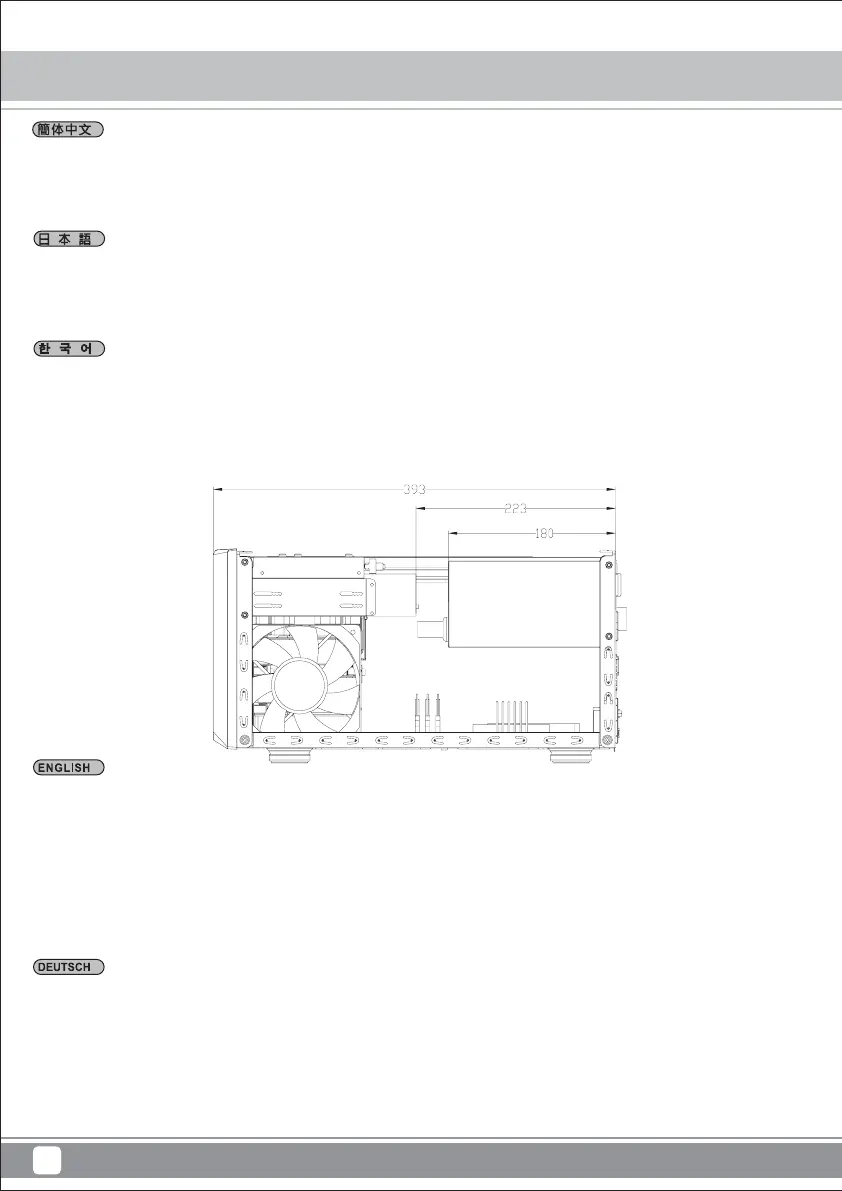
A: Length limitation
PSU and optical drive total length limit: Power supply and optical drive reside in the same plane in the SG11, so with total allowable length at
393mm, cabling room also needs to be considered. We recommend the maximum length of PSU to be 180mm with modular cables. For ultra-high
wattage model at this length, we recommend SilverStone’s ST1500-GS.
B: Recommended cable length
Since power supply is mounted in the middle of the case, no devices will be more than 250mm away from the power supply, so there should not be
any issues with insufficient cable length. If you feel cables from your power supplies are too long, we recommend purchasing a SilverStone modular
power supply with the PP05-E short cable kit.
A: Length limitation
Maximale Gesamtlänge von Netzteil und optischem Laufwerk: Netzteil und optisches Laufwerk befinden sich auf derselben Ebene im SG11; bei
einer erlaubten Gesamtlänge von 393 mm muss also auch der Platz zur Verkabelung berücksichtigt werden. Wir empfehlen eine maximale Netztei
llänge von 180 mm mit modularen Kabeln. Für ein Modell mit ultrahoher Wattzahl bei dieser Länge empfehlen wir das ST1500-GS von SilverStone.
B: Recommended cable length
Da das Netzteil in der Mitte des Gehäuses montiert ist, liegt keine Teil mehr als 250 mm vom Netzteil entfernt, sodass keine Probleme mit
unzureichender Kabellänge auftreten sollten. Falls Ihnen Kabel von Ihren Netzteilen zu lang vorkommen sollten, empfehlen wir ein modulares
Netzteil von SilverStone mit dem Kurzkabelset PP05-E.
SUGO Series SG11
A. 높이 제한:SG11은 CPU쿨러의 높이 제한이 82mm 입니다.
B. 단 경계:쿨러는 메인보드 가장자리로 부터 10mm 정도 나와도 무방합니다.
C. 전면 경계:쿨러는 마더보드 가장자리에서 3mm 정도 돌출될 수 있습니다.
D. 후면 경계:옵션인 크로스플로우 팬을 케이스 후면에 설치된 경우, 마더보드 가장자리에서 45mm 미만의 공간만 남습니다. 크로스플로우
팬이 설치되지 않은 경우, 마더보드 가장자리까지의 공간을 모두 사용할 수 있습니다.
A.高度限制:Cooler限高是82mm。
B.上边界:Cooler外缘允许超出主板上边界10mm。
C.前边界:Cooler允许超出主板前方3mm。
D.后边界:SG11后方的横流风扇(选购),为CPU Cooler的后边界,若额外加装FX121风扇时,后边界距离主板后端45mm,如果无加装横流扇,
则后边界与主板后边缘切齐。
A. 高さ制限:SG11はCPUクーラーを対照として82mmの高さ制限があります。
B. 上方の限界:クーラーはマザーボードエッジから10mm突出させることができます。
C. 正面の限界:クーラーはマザーボード端面から3mm程度はみ出し可能です。
D. 後部の限界:オプションのクロスフローファンがケース後部に装着された場合、マザーボード端面からの余地は45mm狭くなります
クロスフローファンが装着されていない場合は、マザーボード端面まで全部使用できます。

Related product manuals