EasyManua.ls Logo

SIMAG SPN 125 - Page 13

SIMAG SPN 125
42 pages
Print Icon
To Next Page IconTo Next Page
To Next Page IconTo Next Page
To Previous Page IconTo Previous Page
To Previous Page IconTo Previous Page
Loading...
SPN 1205 AS Air 1150*
SPN 1205 WS Water 8000*
Basic electr. Amps Watts Nr. of wires Amps fuse
230/50/3 7,1 56 4 x 2.5 mm 25
400/50/3 + N 3,4 28 5 x 2.5 mm 16
3600 80
SPECIFICATIONS
Start Electric power cons.
Amps Kwh per 24 HR
Water req.
lt/24 HR
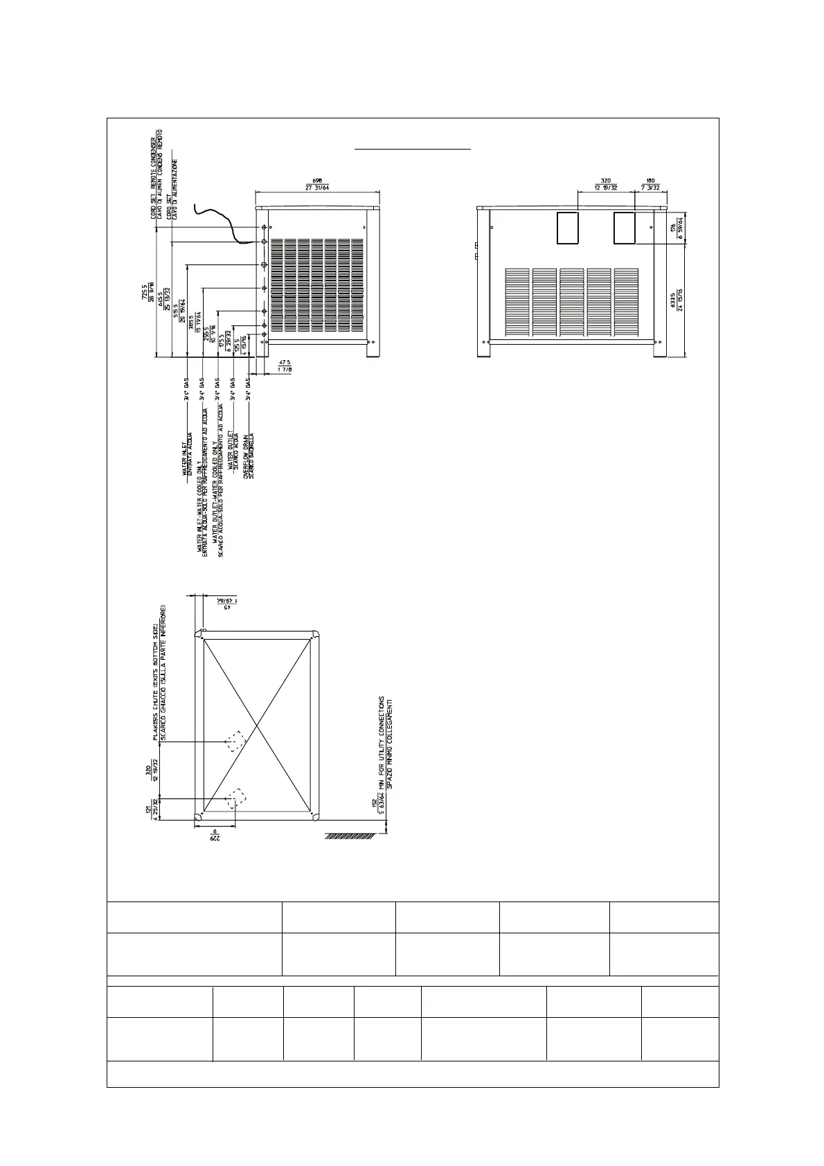
SPN 1205 - MACHINE SPECIFICATIONS
Dimensions:
HEIGHT 850 mm.
WIDTH 1065 mm.
DEPTH 698 mm.
WEIGHT 179 Kg.
Model
Finish
Cond. unit
Comp. HP
* A 15°C water temperature
S. Steel 2.5
2
2
Page 11

Related product manuals