EasyManua.ls Logo

SIMAG SPN 125 - Refrigerant and Operating Pressures

SIMAG SPN 125
42 pages
Print Icon
To Next Page IconTo Next Page
To Next Page IconTo Next Page
To Previous Page IconTo Previous Page
To Previous Page IconTo Previous Page
Loading...
tube connected to the liquid refrigerant line. As
pressure increases, the water regulating valve
opens to increase the flow of cooling water to the
condenser.
NOTE. In case the condenser temperature
probe senses that the condenser tempera-
ture has rised to 70
°
C on air cooled version
- or 60
°
C on water cooled version - for one of
the following abnormal reasons:
CLOGGED CONDENSER (Air cooled version)
INSUFFICIENT FLOW OF COOLING
WATER (Water cooled version)
FAN MOTOR OUT OF OPERATION (Air
cooled version)
AMBIENT TEMPERATURE HIGHER THEN
43
°
C (110
°
F)
it causes the total and immediate SHUT-OFF
of the machine (compressor first and gear
motor 3' later) in order to prevent the unit from
operating in abnormal and dangerous
conditions.
When the ice maker stops on account of this
protective device, there is a simultaneous
glowing of the RED LED, warning the user of
the Hi Temperature situation.
The machine will remain in OFF mode for
one hour then it will restart automatically.
In case the unit trips OFF again in alarm for
3 times in 3 hours, the machine SHUTS OFF
DEFINITIVELY.
After having eliminated the source of the
excessive condenser temperature, to restart
the ice machine it is necessary to unplug and
plug in again.
The RED LED starts blinking and three
minutes later the flaker unit resume its normal
operating mode. The condenser temperatu-
re sensor has a further safety function which
consist in preventing the unit from operating
in Lo-ambient conditions i.e. when the
condenser temperature - equivalent to the
ambient temperature - is lower then 1
°
C
34
°
F (Fig.6).
As soon as the ambient temperature rises up
to 5
°
C the P.C. Board restarts automatically
the machine on the three minutes starting
time.
The refrigerant suction or Lo-pressure sets - in
normal ambient conditions - on the value of
0.5 bar (7 psig) on SPN125 and of 2.4÷2.6 bar
(34÷36 psig) on SPN255, SPN 405- 605 and
SPN1205 after few minutes from the unit start-up.
This value can vary of 0.1 or 0.2 bar (1.5
÷
3 psig)
in relation to the water temperture varia-tions
influencing the freezer cylinder.
NOTE. If, after ten minutes from the unit start
up, no ice is made and the evaporating
temperature detected by the evaporator
sensor results to be higher than -1
°
C (30
°
F)
the ice maker stops (compressor first and
gear motor 3' later) and the 5th WARNING
YELLOW LED blinks.
The machine will remain in OFF mode for
one hour then it will restart automatically.
In case the unit trips OFF again in alarm for
3 times in 3 hours, the machine SHUTS OFF
DEFINITIVELY.
Page 23
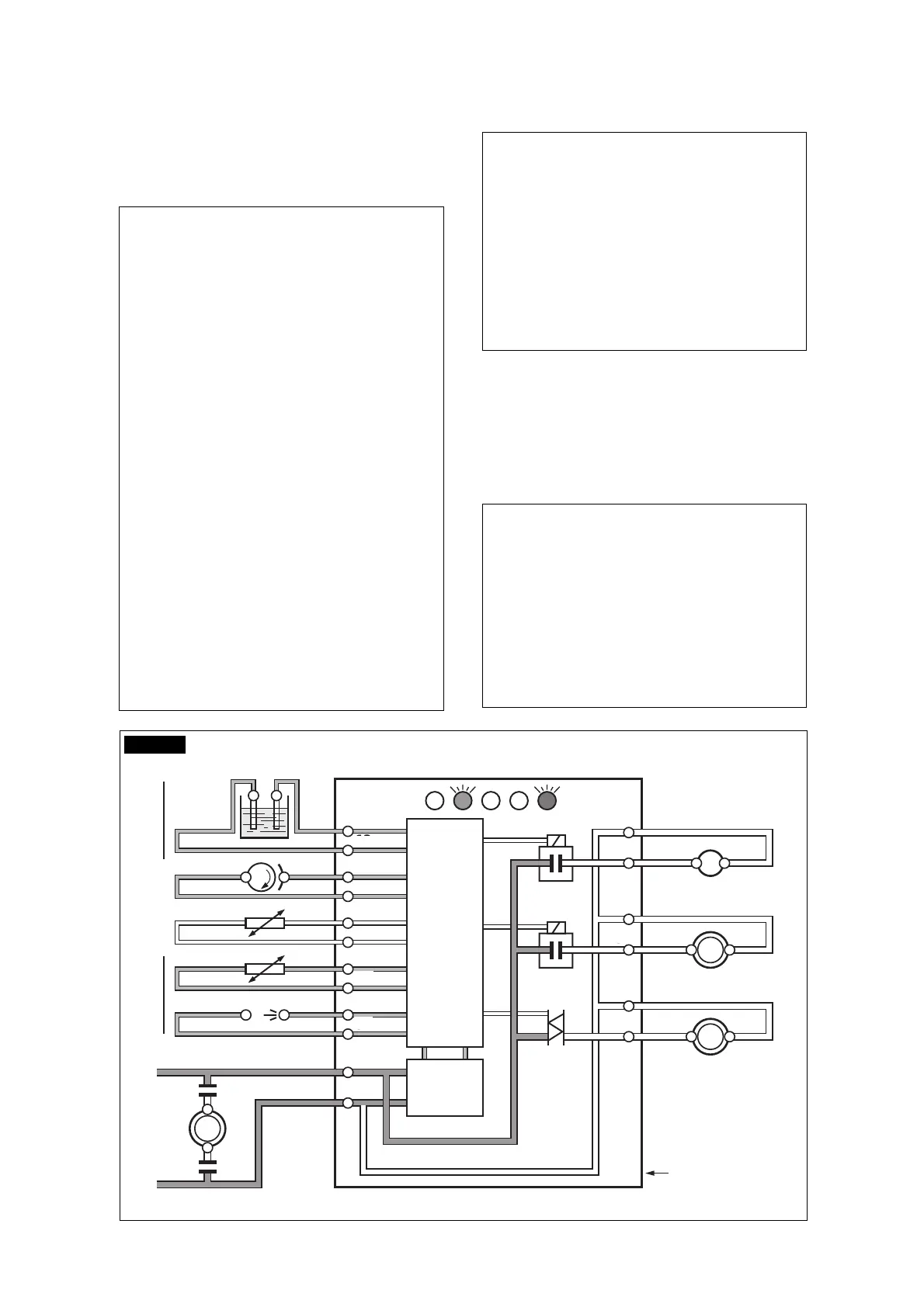
FIG. 6
2
1
L
N
COMPRESSOR
9
10
11
12
13
3
4
5
6
7
8
CONTACTOR COIL
GEAR MOTOR
FAN MOTOR
ELECTRONIC
CARD
RELAYS
TRIAC
RESET
S E N S O R S
WATER
LEVEL
GEAR MOTOR ROTATION
CONDENSER TEMP.
EVAPORATOR TEMP.
ICE LEVEL CONTROL
TRANSF.
T<1°C
DATA PROCESSOR
11
10
9
1
2
L
N
8
7
6
5
4
3
13
12

Related product manuals